Vinehall Road, Robertsbridge, TN32
By Campbell's
£ 1,750,000
Reviews
2 out of 5 stars
Campbell's says ..
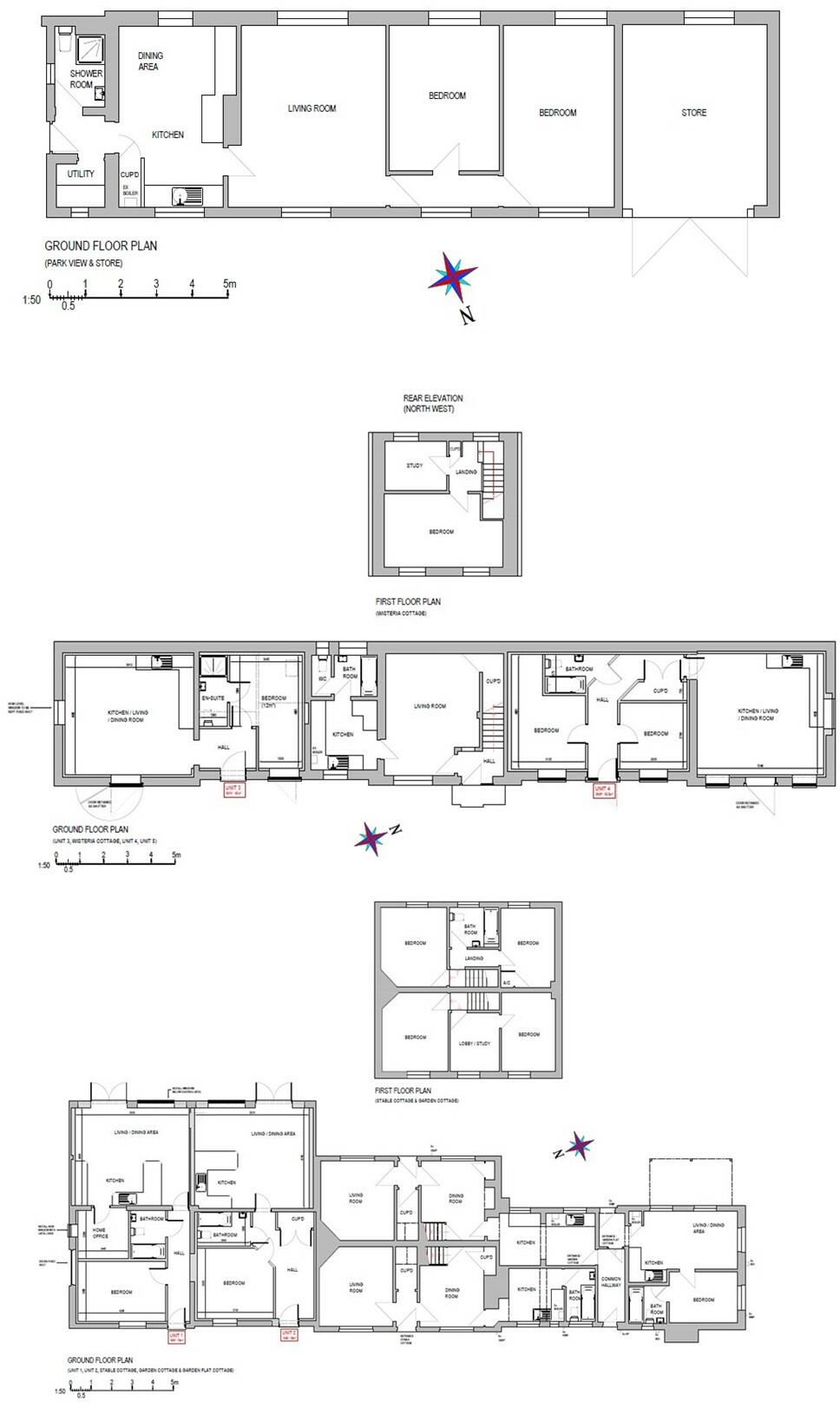
DEVELOPERS AND INVESTORS An interesting cluster of period buildings five converted and currently let with planning permission granted under reference RR/2022/2991/P to create four additional units with associated parking and gardens. In addition there is a large car park...
Property Oracle says ..
This property in Robertsbridge, East Sussex, presents a unique opportunity for a buyer seeking a project. The listing describes a cluster of period buildings, some of which are currently let. Planning permission is in place for additional units, suggesting potential for development and rental income.
The existing buildings show their age in the provided photographs. The brickwork displays signs of weathering, and the outbuildings appear in need of repair or refurbishment. The current state of the main house is unclear; the photos suggest it requires modernisation, at a minimum. While there is a small garden and parking area, the overall land size is limited. The layout suggests ample space for several dwellings, either as a self-contained compound or with potential for conversion into multiple units.
The location in Robertsbridge offers a compelling advantage. The proximity to a train station and several schools increases its attractiveness. However, the commercial aspects of the surrounding area should be considered. The asking price is substantial, making it crucial for any potential buyer to thoroughly assess the renovation costs before making an offer. Overall, this property is suitable for a buyer with experience in property development or those willing to commit to a substantial renovation project and willing to accept the potential risk that comes with that. Further investigation into the planning permission specifics, potential rental yields, and detailed structural surveys are highly recommended.
Therefore, we give this property 5 / 10. *Disclaimer: This is our option and does constitute a recommendation or financial advice. Do your own research. *
- Price
- 6
- Condition
- 4
- Location
- 7
- Land
- 3
- Bedrooms
- 0
- Bathrooms
- 0
- Sqft (est)
- 1,505.87
The heatmap indicates the level of crime in the area. The color of the heatmap indicates the crime severity and recency.
Metrics Year-on-Year
- Average area value
- 927,281.00 £Increased by 6.23 %
- Est sale value
- 716,794.12 £Decreased by 7.39 %
- Average area rental value
- 1,952.00 £/moIncreased by 12.18 %
- Est letting value
- 1,505.87 £/moUnchanged by 0.00 %
- Est rental Yield
- 2.53 %Increased by 5.86 %
- Crime Rate
- 0.00 %
Agent Activity
Campbell's created the listing.
Nearby Schools
| Name | Type | Ofsted | Distance |
|---|---|---|---|
| Vinehall School | Other Independent School | 0.09 KM | |
| Mountfield Heath School | Other Independent Special School | Good | 0.99 KM |
| Salehurst Church Of England Primary School | Voluntary Controlled School | Good | 3.48 KM |
| Darvell School | Other Independent School | Good | 4.29 KM |
| Robertsbridge Community College | Community School | Good | 4.56 KM |
Images
Nearby Streets
| Name | Average Price | Average Sqft | Distance |
|---|---|---|---|
| Solomon's Lane | £ 525,000 | 0 | 0.00 KM |
Nearby Transport
| Name | NLC | TLC | Distance |
|---|---|---|---|
| Robertsbridge | 5226 | RBR | 3.95 KM |
| Battle | 5215 | BAT | 5.04 KM |
| Crowhurst | 5233 | CWU | 7.81 KM |
| Etchingham | 5217 | ETC | 8.02 KM |
Nearby Listings
| Address | Price | Type | Score | Distance |
|---|---|---|---|---|
| Vinehall Road, Robertsbridge, TN32 | £ 1,750,000 | BUY | 5 / 10 | 0.00 KM |
| Vinehall Road, Mountfield, Robertsbridge | £ 625,000 | BUY | 8 / 10 | 0.09 KM |
| Vinehall Road, Mountfield, Robertsbridge | £ 418,750 | BUY | 8 / 10 | 0.21 KM |
| London Road, Mountfield, TN32 | £ 585,000 | BUY | 6 / 10 | 0.91 KM |
| London Road, Mountfield, TN32 | £ 599,950 | BUY | 6 / 10 | 0.92 KM |
Nearby Properties
| Address | Price | Distance |
|---|---|---|
| The Laurels | £ 240,000 | 0.18 KM |
| Vinehall Cottage | £ 247,500 | 0.18 KM |
| Woodside | £ 535,000 | 0.18 KM |
| Bell Lodge | £ 363,000 | 0.18 KM |
| Carpenters Cottage | £ 525,000 | 0.18 KM |