Mill Road, Dunton Green, TN13 2UZ
By McCarthy Stone
£ 285,000
Reviews
3 out of 5 stars
McCarthy Stone says ..
In a peaceful setting with views over lush, landscaped gardens, Apartment 14 is a beautiful apartment. This lovely property is designed with comfort and independence in mind with clever features to support you as you age.
Property Oracle says ..
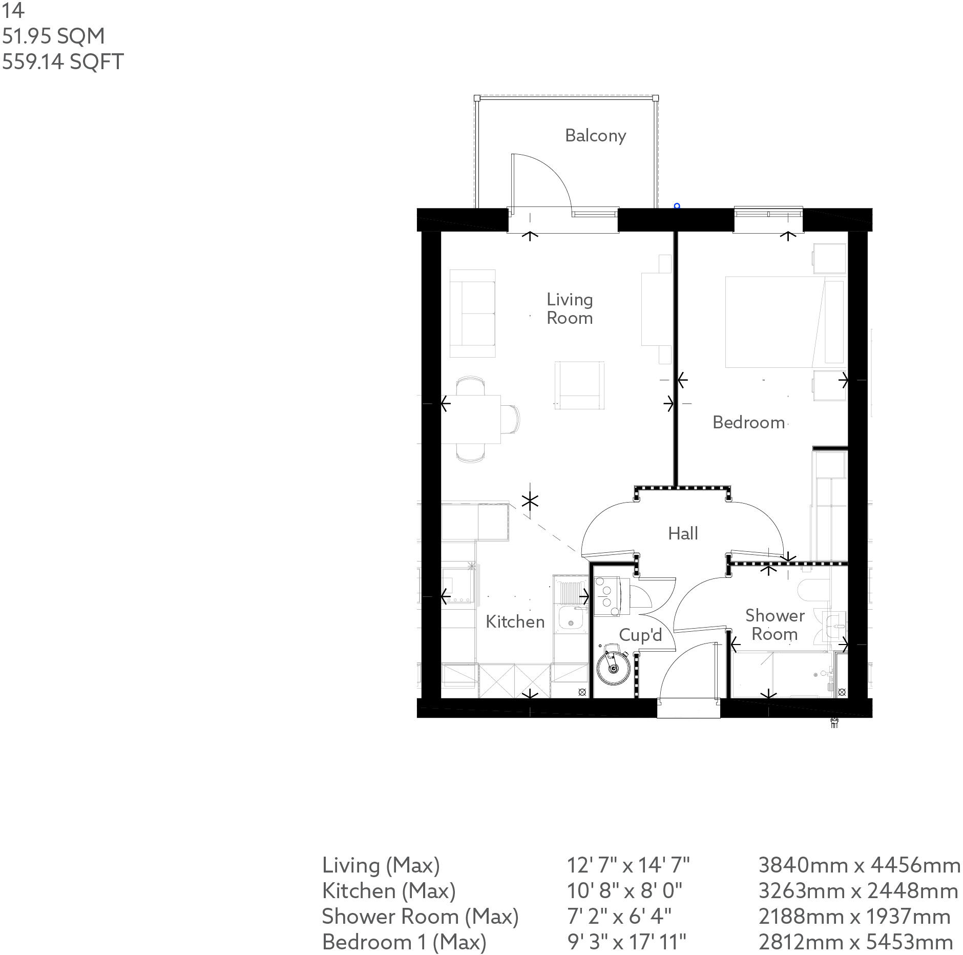
This is a modern retirement property located in Dunton Green, Kent. The apartment is well-presented and appears to be in excellent condition. It benefits from communal gardens and is located close to local amenities, including schools and transport links. The price is reasonable for the area and the size of the property. The property is specifically designed for retirement living and may not be suitable for all buyers. The apartment has one bedroom and no bathrooms listed, which may be a misprint. The square footage is 480.35 sq ft.
Therefore, we give this property 7 / 10. *Disclaimer: This is our option and does constitute a recommendation or financial advice. Do your own research. *
- Price
- 7
- Condition
- 9
- Location
- 7
- Land
- 5
- Bedrooms
- 1
- Bathrooms
- 0
- Sqft (est)
- 480.35
The heatmap indicates the level of crime in the area. The color of the heatmap indicates the crime severity and recency.
Metrics Year-on-Year
- Average area value
- 506,750.00 £Decreased by 8.90 %
- Est sale value
- 222,402.05 £Decreased by 16.27 %
- Average area rental value
- 2,066.00 £/moDecreased by 4.04 %
- Est letting value
- 480.35 £/moDecreased by 50.00 %
- Est rental Yield
- 4.89 %Increased by 5.39 %
- Crime Rate
- 7.00 %Unchanged by 0.00 %
Agent Activity
McCarthy Stone created the listing.
Nearby Schools
| Name | Type | Ofsted | Distance |
|---|---|---|---|
| Dunton Green Primary School | Community School | Good | 0.57 KM |
| Riverhead Infants' School | Community School | Outstanding | 0.89 KM |
| Amherst School | Academy Converter | Good | 1.10 KM |
| Knole Academy | Academy Sponsor Led | Good | 1.99 KM |
| Chevening, St Botolph'S Church Of England Voluntary Aided Primary School | Voluntary Aided School | Good | 2.18 KM |
Images
Nearby Streets
| Name | Average Price | Average Sqft | Distance |
|---|---|---|---|
| Lusted Road | £ 0 | 0 | 0.00 KM |
| Station Approach | £ 0 | 0 | 0.00 KM |
| Nicholson Road | £ 512,500 | 0 | 0.00 KM |
| Church Field | £ 0 | 0 | 0.00 KM |
| The Terrace | £ 0 | 0 | 0.00 KM |
Nearby Transport
| Name | NLC | TLC | Distance |
|---|---|---|---|
| Dunton Green | 5102 | DNG | 0.81 KM |
| Sevenoaks | 5124 | SEV | 2.32 KM |
| Bat And Ball | 5090 | BBL | 3.10 KM |
| Otford | 5071 | OTF | 4.19 KM |
| Shoreham (Kent) | 5074 | SEH | 5.24 KM |
Nearby Listings
| Address | Price | Type | Score | Distance |
|---|---|---|---|---|
| Mill Road, Dunton Green, TN13 2UZ | £ 420,000 | BUY | 7 / 10 | 0.00 KM |
| Mill Road, Dunton Green, TN13 2UZ | £ 307,500 | BUY | 7 / 10 | 0.00 KM |
| Mill Road, Dunton Green, TN13 2UZ | £ 595,000 | BUY | 5 / 10 | 0.00 KM |
| Mill Road, Dunton Green, TN13 2UZ | £ 445,000 | BUY | Unknown | 0.00 KM |
| Mill Road, Dunton Green, TN13 2UZ | £ 420,000 | BUY | 7 / 10 | 0.00 KM |
Nearby Properties
| Address | Price | Distance |
|---|---|---|
| 33 Mill Road | £ 515,000 | 0.00 KM |
| 22 Mill Road | £ 690,000 | 0.00 KM |
| 6 Mill Road | £ 780,000 | 0.00 KM |
| 18 Mill Road | £ 475,000 | 0.00 KM |
| 36 Mill Road | £ 560,000 | 0.00 KM |