Cow & Co says ..
Presented in excellent condition throughout, this spacious and bright two bedroom property is arranged over two floors of a period terrace on a quiet tree lined residential street.
Property Oracle says ..
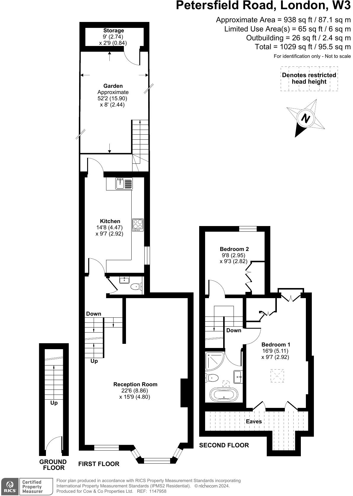
This two-bedroom maisonette located on Petersfield Road in South Acton, Ealing, presents a well-maintained and stylishly presented home. The property boasts a modern, updated interior with features including a recently renovated kitchen and bathroom. The interior is bright and airy, benefiting from ample natural light. The location offers a good balance between a residential feel and convenient access to transportation links and schools. The property’s proximity to Acton Central and South Acton Overground stations provides easy connectivity to other parts of London. The presence of well-regarded primary schools nearby increases the property’s appeal to families. The small, but present garden, provides some outdoor space for the owners. Overall, the property is a potentially strong offering for those seeking a well-maintained and attractive home in a family-friendly location close to transport. The lack of information on precise plot size or comparison properties with similar sqft and plot sizes impacts a full, precise evaluation of market value. However, based on the provided data, the listing price appears reasonable in the context of the area.
Therefore, we give this property 6 / 10. *Disclaimer: This is our option and does constitute a recommendation or financial advice. Do your own research. *
- Price
- 7
- Condition
- 8
- Location
- 7
- Land
- 4
- Bedrooms
- 2
- Bathrooms
- 2
- Sqft (est)
- 1,029.00
The heatmap indicates the level of crime in the area. The color of the heatmap indicates the crime severity and recency.
Metrics Year-on-Year
- Average area value
- 719,207.00 £Increased by 15.99 %
- Est sale value
- 725,445.00 £Increased by 12.80 %
- Average area rental value
- 2,260.00 £/moIncreased by 12.16 %
- Est letting value
- 2,058.00 £/moUnchanged by 0.00 %
- Est rental Yield
- 3.77 %Decreased by 3.33 %
- Crime Rate
- 7.00 %Unchanged by 0.00 %
Agent Activity
Cow & Co marked this listing as sold.
Cow & Co created the listing.
Nearby Schools
| Name | Type | Ofsted | Distance |
|---|---|---|---|
| Ark Priory Primary Academy | Academy Sponsor Led | Outstanding | 0.11 KM |
| Ark Byron Primary Academy | Free Schools | Good | 0.43 KM |
| Maples Children'S Centre | Children's Centre Linked Site | 0.68 KM | |
| Maples Nursery School And Children'S Centre | Local Authority Nursery School | Good | 0.69 KM |
| Derwentwater Primary School | Community School | Good | 0.77 KM |
Images
Nearby Streets
| Name | Average Price | Average Sqft | Distance |
|---|---|---|---|
| Acton Lane | £ 0 | 0 | 0.00 KM |
| Clovelly Road | £ 774,433 | 0 | 0.00 KM |
| Graham Road | £ 762,778 | 0 | 0.00 KM |
| Somerset Road | £ 911,663 | 0 | 0.00 KM |
| Vale Grove | £ 425,000 | 0 | 0.00 KM |
Nearby Transport
| Name | NLC | TLC | Distance |
|---|---|---|---|
| Acton Central | 1404 | ACC | 0.56 KM |
| South Acton | 1452 | SAT | 0.73 KM |
| Acton Main Line | 3000 | AML | 1.43 KM |
| Gunnersbury | 5588 | GUN | 1.78 KM |
| Chiswick | 5583 | CHK | 2.60 KM |
Nearby Listings
| Address | Price | Type | Score | Distance |
|---|---|---|---|---|
| Petersfield Road, London, W3 | £ 650,000 | BUY | 6 / 10 | 0.00 KM |
| Petersfield Road, Acton | £ 575,000 | BUY | 6 / 10 | 0.02 KM |
| Petersfield Road, W3 | £ 410,000 | BUY | 8 / 10 | 0.03 KM |
| Petersfield Road, London | £ 495,000 | BUY | Unknown | 0.05 KM |
| Petersfield Road, Acton | £ 425,000 | BUY | 6 / 10 | 0.05 KM |
Nearby Properties
| Address | Price | Distance |
|---|---|---|
| 8 Petersfield Road | £ 410,000 | 0.02 KM |
| 16 Petersfield Road | £ 390,000 | 0.02 KM |
| 17a Petersfield Road | £ 510,000 | 0.02 KM |
| 15a Petersfield Road | £ 385,000 | 0.02 KM |
| 47a Petersfield Road | £ 520,000 | 0.02 KM |