Victoria Street, Englefield Green
By Aspen Estate Agents Limited
£ 499,000
Reviews
3 out of 5 stars
Aspen Estate Agents Limited says ..
We are pleased to bring to the market one of these pretty townhouses, situated in the heart of the village, within a short walk to the various shops, pubs, restaurants and schools. This could be ideal for a family with its excellent accommodation, or an 'investment buyer' with the property previo...
Property Oracle says ..
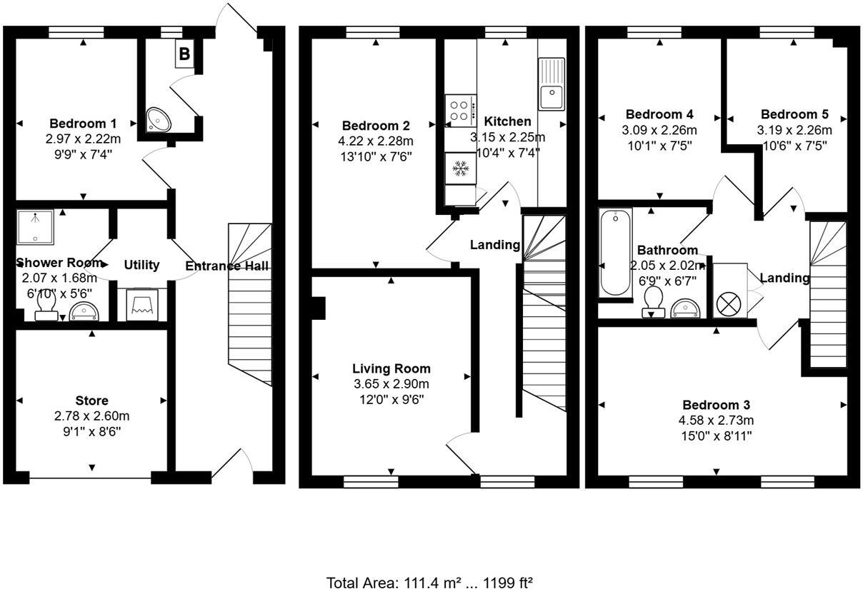
This is a 5-bedroom terraced house located on Victoria Street, Englefield Green East, Runnymede, Surrey. The property is listed for £499,000. It has 2 bathrooms. The property is located within a reasonable distance of schools and transportation links. The property includes a garden. The interior photos show some wear and tear, particularly in the bathrooms and kitchen. While the rooms are generally clean and functional, some areas could benefit from updating. The asking price seems reasonable, especially considering it is a 5 bedroom terraced house.
Therefore, we give this property 7 / 10. *Disclaimer: This is our option and does constitute a recommendation or financial advice. Do your own research. *
- Price
- 8
- Condition
- 6
- Location
- 7
- Land
- 7
- Bedrooms
- 5
- Bathrooms
- 2
The heatmap indicates the level of crime in the area. The color of the heatmap indicates the crime severity and recency.
Metrics Year-on-Year
- Average area value
- 497,268.00 £Increased by 4.06 %
- Average area rental value
- 2,350.00 £/moIncreased by 60.19 %
- Est rental Yield
- 5.67 %Increased by 54.08 %
- Crime Rate
- 35.00 %Unchanged by 0.00 %
Agent Activity
Aspen Estate Agents Limited created the listing.
Nearby Schools
| Name | Type | Ofsted | Distance |
|---|---|---|---|
| St Jude'S Cofe Infant School | Voluntary Aided School | 0.27 KM | |
| St Jude'S Church Of England Junior School | Voluntary Aided School | Good | 0.47 KM |
| St Cuthbert'S Catholic Primary School, Englefield Green | Voluntary Aided School | Outstanding | 0.60 KM |
| Royal Holloway And Bedford New College | Higher Education Institutions | 0.61 KM | |
| St Peter'S Centre | Pupil Referral Unit | Outstanding | 0.70 KM |
Images
Nearby Streets
| Name | Average Price | Average Sqft | Distance |
|---|---|---|---|
| Clarence Street | £ 0 | 0 | 0.00 KM |
| Clarence Street | £ 0 | 0 | 0.00 KM |
| The Green | £ 0 | 0 | 0.00 KM |
| Magna Carta Park | £ 0 | 0 | 0.00 KM |
| Kinburn Drive | £ 0 | 0 | 0.00 KM |
Nearby Transport
| Name | NLC | TLC | Distance |
|---|---|---|---|
| Egham | 5669 | EGH | 2.72 KM |
| Virginia Water | 5676 | VIR | 3.21 KM |
| Wraysbury | 5673 | WRY | 4.53 KM |
| Sunnymeads | 5675 | SNY | 4.75 KM |
| Longcross | 5674 | LNG | 5.54 KM |
Nearby Listings
| Address | Price | Type | Score | Distance |
|---|---|---|---|---|
| Victoria Street, Englefield Green | £ 499,000 | BUY | 7 / 10 | 0.00 KM |
| Victoria Street, Egham | £ 575,000 | BUY | 5 / 10 | 0.09 KM |
| Englefield Close, Englefield Green, Egham | £ 425,000 | BUY | 6 / 10 | 0.10 KM |
| Englefield Green, Surrey | £ 585,000 | BUY | Unknown | 0.10 KM |
| Alexandra Road, Englefield Green, Surrey, TW20 | £ 465,000 | BUY | Unknown | 0.10 KM |
Nearby Properties
| Address | Price | Distance |
|---|---|---|
| 38a Victoria Street | £ 317,500 | 0.08 KM |
| 39 Victoria Street | £ 320,000 | 0.08 KM |
| 39a Victoria Street | £ 340,000 | 0.08 KM |
| 67 Victoria Street | £ 247,500 | 0.08 KM |
| 40 Victoria Street | £ 475,000 | 0.08 KM |