Woodlark Road, St. Marys Island, Chatham, Kent. ME4
By Moxy Property Consultants
£ 440,000
Reviews
3 out of 5 stars
Moxy Property Consultants says ..
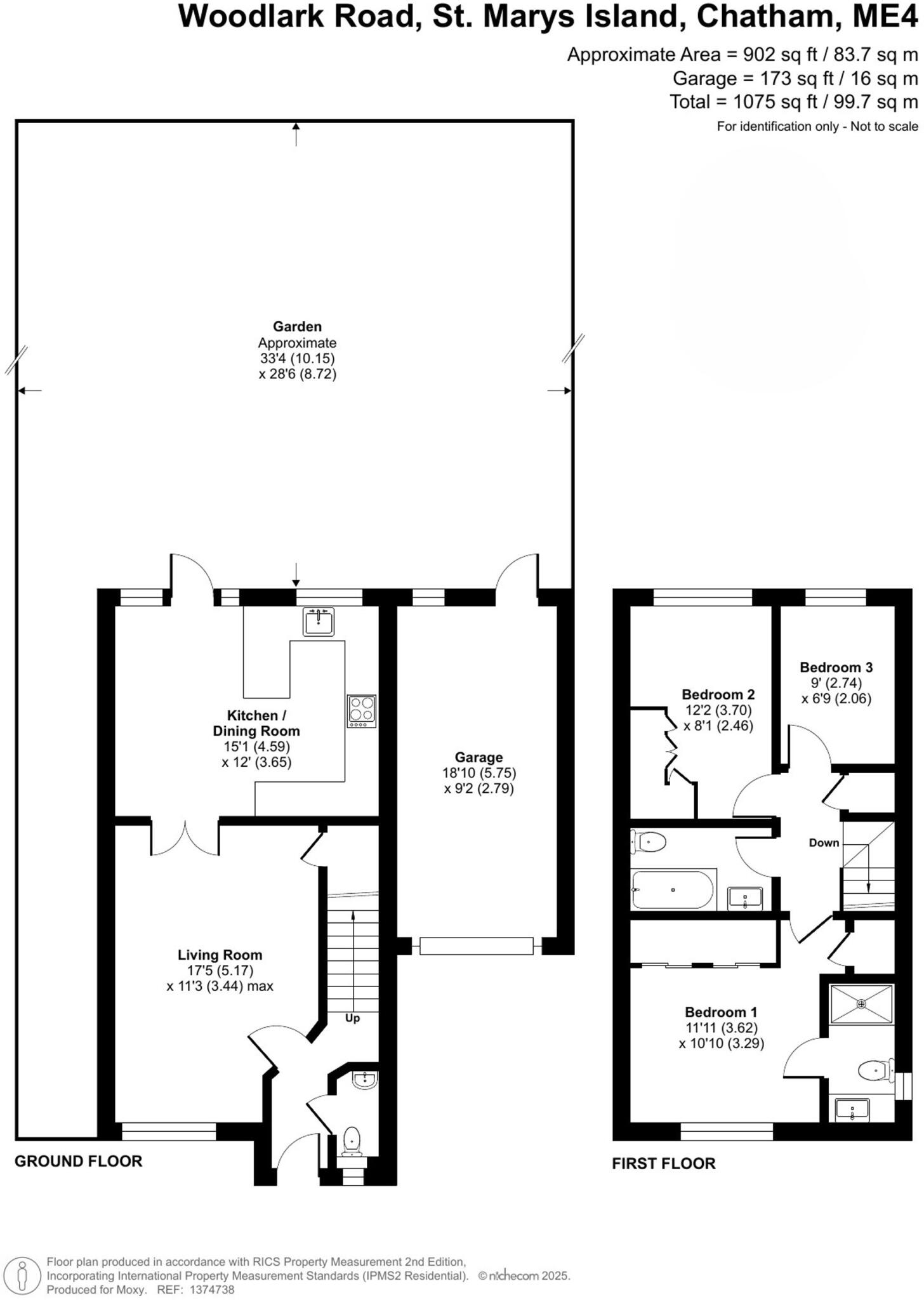
Beautifully presented three bed detached home close to the marina, riverside walks and school. With garage, driveway, stylish kitchen/diner, en-suite, large garden, and close to shops restaurants.
Property Oracle says ..
This is a well-presented detached property on St. Marys Island, offering a blend of modern living and a pleasant outdoor space. The house benefits from updated interiors, including modern bathrooms and a well-equipped kitchen. Its location near a reputable primary school makes it attractive for families. While the price is above the local average, the property’s condition, detached status, and desirable location justify the premium. The inclusion of a garage and parking is a definite plus. Commuters should note the distance to the nearest train station.
Therefore, we give this property 7 / 10. *Disclaimer: This is our option and does constitute a recommendation or financial advice. Do your own research. *
- Price
- 7
- Condition
- 9
- Location
- 7
- Land
- 7
- Bedrooms
- 3
- Bathrooms
- 2
- Sqft (est)
- 1,075.00
- Lot (est)
- 902.00
The heatmap indicates the level of crime in the area. The color of the heatmap indicates the crime severity and recency.
Metrics Year-on-Year
- Average area value
- 348,276.00 £Increased by 7.74 %
- Est sale value
- 379,475.00 £Unchanged by 0.00 %
- Average area rental value
- 1,393.00 £/moDecreased by 3.26 %
- Est letting value
- 1,075.00 £/moUnchanged by 0.00 %
- Est rental Yield
- 4.80 %Decreased by 10.28 %
- Crime Rate
- 11.00 %Unchanged by 0.00 %
Agent Activity
Moxy Property Consultants created the listing.
Nearby Schools
| Name | Type | Ofsted | Distance |
|---|---|---|---|
| St Mary'S Island Church Of England (Aided) Primary School | Voluntary Aided School | Good | 0.24 KM |
| Midkent College | Further Education | Good | 1.45 KM |
| Forward2 Employment Limited | Special Post 16 Institution | 1.54 KM | |
| Waterfront Utc | University Technical College | 1.55 KM | |
| Chattenden Primary School | Academy Converter | Good | 1.82 KM |
Images
Nearby Streets
| Name | Average Price | Average Sqft | Distance |
|---|---|---|---|
| Ripple Waters | £ 0 | 0 | 0.00 KM |
| The Crescent | £ 0 | 0 | 0.00 KM |
| Augustus Way | £ 359,373 | 0 | 0.00 KM |
| Quayside | £ 0 | 0 | 0.00 KM |
| Maritime Way | £ 0 | 0 | 0.00 KM |
Nearby Transport
| Name | NLC | TLC | Distance |
|---|---|---|---|
| Gillingham (Kent) | 5169 | GLM | 2.55 KM |
| Chatham | 5199 | CTM | 3.33 KM |
| Rochester | 5203 | RTR | 3.73 KM |
| Strood (Kent) | 5191 | SOO | 4.22 KM |
| Higham | 5202 | HGM | 8.18 KM |
Nearby Listings
| Address | Price | Type | Score | Distance |
|---|---|---|---|---|
| Woodlark Road, St. Marys Island, Chatham, Kent. ME4 | £ 440,000 | BUY | 7 / 10 | 0.00 KM |
| Woodlark Road, St Marys Island | £ 450,000 | BUY | Unknown | 0.04 KM |
| Redshank Road, St. Marys Island, Chatham, ME4 3RE | £ 190,000 | BUY | 7 / 10 | 0.09 KM |
| Redshank Road, St. Marys Island, Chatham, ME4 3RE | £ 180,000 | BUY | 7 / 10 | 0.09 KM |
| Samphire Way, St. Marys Island | £ 350,000 | BUY | 6 / 10 | 0.10 KM |
Nearby Properties
| Address | Price | Distance |
|---|---|---|
| 7 Woodlark Road | £ 250,000 | 0.04 KM |
| 3 Woodlark Road | £ 245,000 | 0.04 KM |
| 2 Woodlark Road | £ 459,995 | 0.04 KM |
| 10 Egret Close | £ 190,000 | 0.04 KM |
| 14 Woodlark Road | £ 162,950 | 0.04 KM |