Galloways says ..
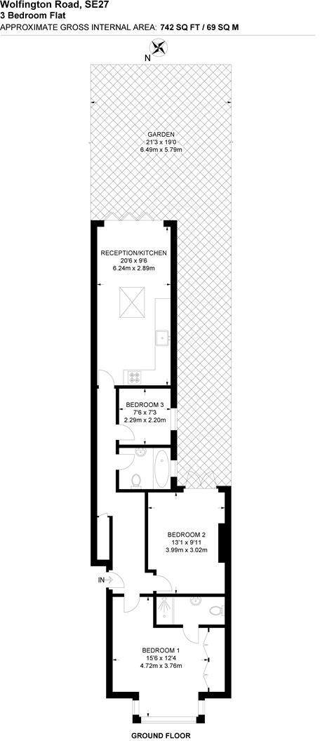
A stunning three-bedroom ground-floor period conversion featuring two bathrooms and a delightful private garden. Situated on Wolfington Road in the heart of West Norwood, this home is perfectly positioned near the bustling High Street, known for its range of independent shops, inviting c...
Property Oracle says ..
Therefore, we give this property 7 / 10. *Disclaimer: This is our option and does constitute a recommendation or financial advice. Do your own research. *
- Price
- 8
- Condition
- 8
- Location
- 8
- Land
- 7
- Bedrooms
- 3
- Bathrooms
- 2
- Sqft (est)
- 974.78
The heatmap indicates the level of crime in the area. The color of the heatmap indicates the crime severity and recency.
Metrics Year-on-Year
- Average area value
- 696,167.00 £Decreased by 17.95 %
- Est sale value
- 607,287.94 £Decreased by 14.42 %
- Average area rental value
- 2,133.00 £/moDecreased by 1.25 %
- Est letting value
- 974.78 £/moUnchanged by 0.00 %
- Est rental Yield
- 3.68 %Increased by 20.26 %
- Crime Rate
- 6.00 %Unchanged by 0.00 %
from 848,431.00 £
from 709,639.84 £
from 2,160.00 £/mo
from 974.78 £/mo
from 3.06 %
from 6.00 %
Agent Activity
Galloways created the listing.
Nearby Schools
| Name | Type | Ofsted | Distance |
|---|---|---|---|
| Julian'S School | Foundation School | Good | 0.23 KM |
| Crown Lane Primary School | Community School | Good | 0.83 KM |
| Crown Lane Primary School & Children'S Centre | Children's Centre | 0.85 KM | |
| The Elmgreen School | Academy Converter | Good | 0.95 KM |
| St Luke'S Church Of England Primary School | Academy Converter | 0.96 KM |
Images
Nearby Streets
| Name | Average Price | Average Sqft | Distance |
|---|---|---|---|
| Yeomans Close | £ 0 | 0 | 0.00 KM |
| Tredwell Road | £ 0 | 0 | 0.00 KM |
| Church Road | £ 0 | 0 | 0.00 KM |
| Auckland Hill | £ 0 | 0 | 0.00 KM |
| Eden Road | £ 0 | 0 | 0.00 KM |
Nearby Transport
| Name | NLC | TLC | Distance |
|---|---|---|---|
| West Norwood | 5438 | WNW | 0.42 KM |
| Tulse Hill | 5390 | TUH | 1.04 KM |
| West Dulwich | 5086 | WDU | 2.10 KM |
| Streatham Hill | 5435 | SRH | 2.32 KM |
| Herne Hill | 5066 | HNH | 2.56 KM |
Nearby Listings
| Address | Price | Type | Score | Distance |
|---|---|---|---|---|
| Wolfington Road, London | £ 600,000 | BUY | 7 / 10 | 0.00 KM |
| Wolfington Road, West Norwood, SE27 | £ 495,000 | BUY | Unknown | 0.02 KM |
| Wolfington Road, West Norwood, London, SE27 | £ 525,000 | BUY | 7 / 10 | 0.03 KM |
| Wolfington Road, West Norwood, London, SE27 | £ 1,150,000 | BUY | 7 / 10 | 0.05 KM |
| Hainthorpe Road, Streatham | £ 310,000 | BUY | 5 / 10 | 0.06 KM |
Nearby Properties
| Address | Price | Distance |
|---|---|---|
| 86 Wolfington Road | £ 798,500 | 0.03 KM |
| 70 Wolfington Road | £ 138,000 | 0.03 KM |
| 66a Wolfington Road | £ 380,000 | 0.03 KM |
| 74a Wolfington Road | £ 500,000 | 0.03 KM |
| 78a Wolfington Road | £ 840,000 | 0.03 KM |