MA
Oakleigh Road North, Whetsone N20
By Mantlestates
£ 345,000
Reviews
3 out of 5 stars
Mantlestates says ..
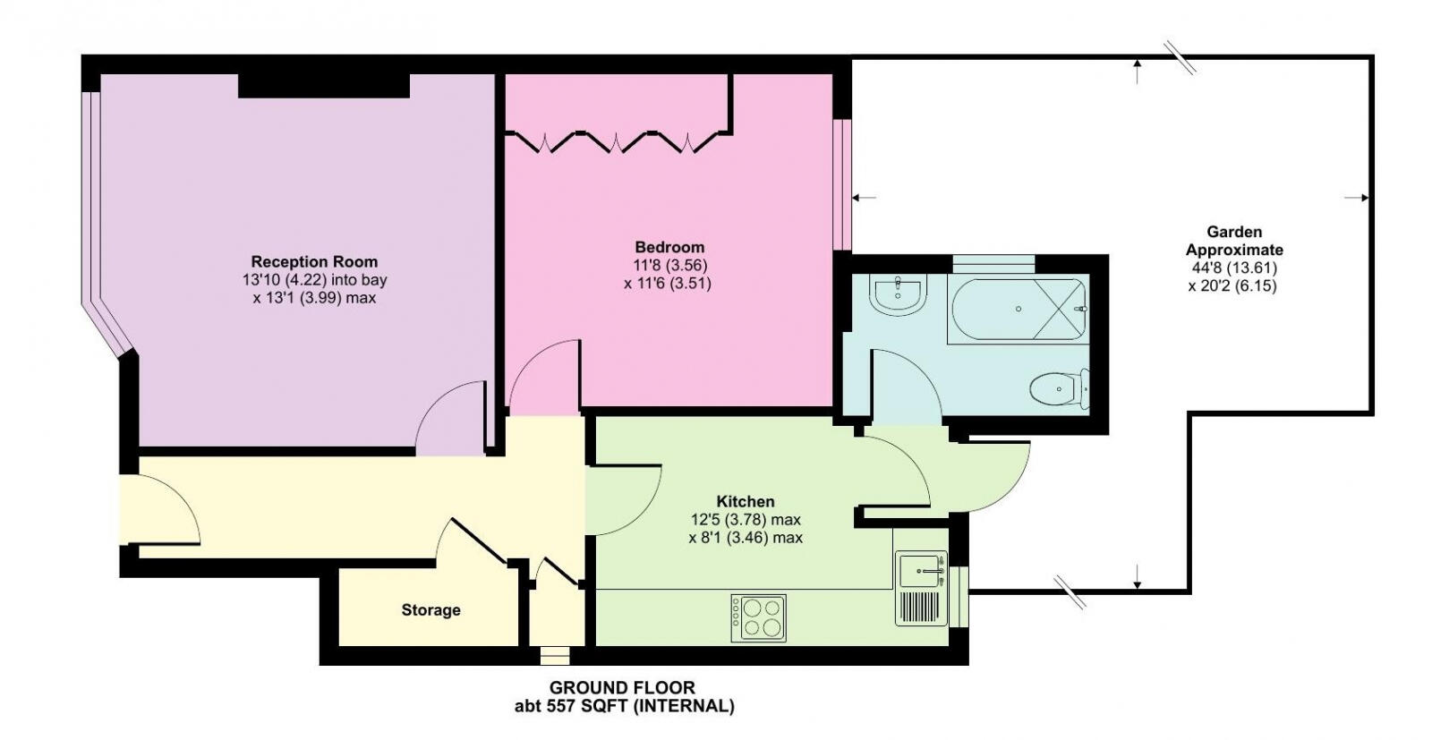
Well-presented Ground Floor ONE BEDROOM GARDEN MAISONETTE. Own Front Garden. SHARE OF FREEHOLD, zero ground rent, and service charges. Easy Access to New Southgate Train Station & Local Shopping Facilities. Fitted Kitchen.
Property Oracle says ..
Therefore, we give this property 6 / 10. *Disclaimer: This is our option and does constitute a recommendation or financial advice. Do your own research. *
- Price
- 7
- Condition
- 6
- Location
- 7
- Land
- 7
- Bedrooms
- 1
- Bathrooms
- 1
- Sqft (est)
- 557.00
- Lot (est)
- 898.67
The heatmap indicates the level of crime in the area. The color of the heatmap indicates the crime severity and recency.
Metrics Year-on-Year
- Average area value
- 1,302,500.00 £Increased by 43.07 %
- Est sale value
- 300,780.00 £Decreased by 5.10 %
- Average area rental value
- 2,439.00 £/moIncreased by 4.59 %
- Est letting value
- 557.00 £/moUnchanged by 0.00 %
- Est rental Yield
- 2.25 %Decreased by 26.71 %
- Crime Rate
- 8.00 %Unchanged by 0.00 %
from 910,395.00 £
from 316,933.00 £
from 2,332.00 £/mo
from 557.00 £/mo
from 3.07 %
from 8.00 %
Agent Activity
Mantlestates created the listing.
Nearby Schools
| Name | Type | Ofsted | Distance |
|---|---|---|---|
| St Andrew The Apostle Greek Orthodox School | Free Schools | Good | 0.26 KM |
| Oakleigh School & Acorn Assessment Centre | Community Special School | Outstanding | 0.42 KM |
| St John'S Cofe Junior Mixed And Infant School | Voluntary Aided School | Outstanding | 0.84 KM |
| Friern Barnet School | Community School | Good | 0.94 KM |
| Holly Park Primary School | Community School | Good | 0.94 KM |
Images
Nearby Streets
| Name | Average Price | Average Sqft | Distance |
|---|---|---|---|
| St Ninian's Court | £ 302,500 | 0 | 0.00 KM |
| Church Close | £ 0 | 0 | 0.00 KM |
| Leadbeaters Close | £ 0 | 0 | 0.00 KM |
| Queen's Parade Close | £ 0 | 0 | 0.00 KM |
| Beaconsfield Close | £ 0 | 0 | 0.00 KM |
Nearby Transport
| Name | NLC | TLC | Distance |
|---|---|---|---|
| New Southgate | 6019 | NSG | 1.76 KM |
| Oakleigh Park | 6020 | OKL | 1.92 KM |
| New Barnet | 6018 | NBA | 3.34 KM |
| Bowes Park | 6027 | BOP | 4.28 KM |
| Alexandra Palace | 6025 | AAP | 4.85 KM |
Nearby Listings
| Address | Price | Type | Score | Distance |
|---|---|---|---|---|
| Oakleigh Road North, Whetsone N20 | £ 345,000 | BUY | 6 / 10 | 0.00 KM |
| Oakleigh Road North, London | £ 475,000 | BUY | 6 / 10 | 0.02 KM |
| Oakleigh Road North, London N20 | £ 300,000 | BUY | 7 / 10 | 0.06 KM |
| Oakleigh Road North, London, N20, N20 | £ 335,000 | BUY | Unknown | 0.07 KM |
| Oakleigh Road North, London | £ 325,000 | BUY | 7 / 10 | 0.07 KM |
Nearby Properties
| Address | Price | Distance |
|---|---|---|
| 367 Oakleigh Road North | £ 260,000 | 0.02 KM |
| 379 Oakleigh Road North | £ 300,000 | 0.02 KM |
| 407 Oakleigh Road North | £ 145,000 | 0.02 KM |
| 371 Oakleigh Road North | £ 300,000 | 0.02 KM |
| 405 Oakleigh Road North | £ 250,000 | 0.02 KM |