Dexters says ..
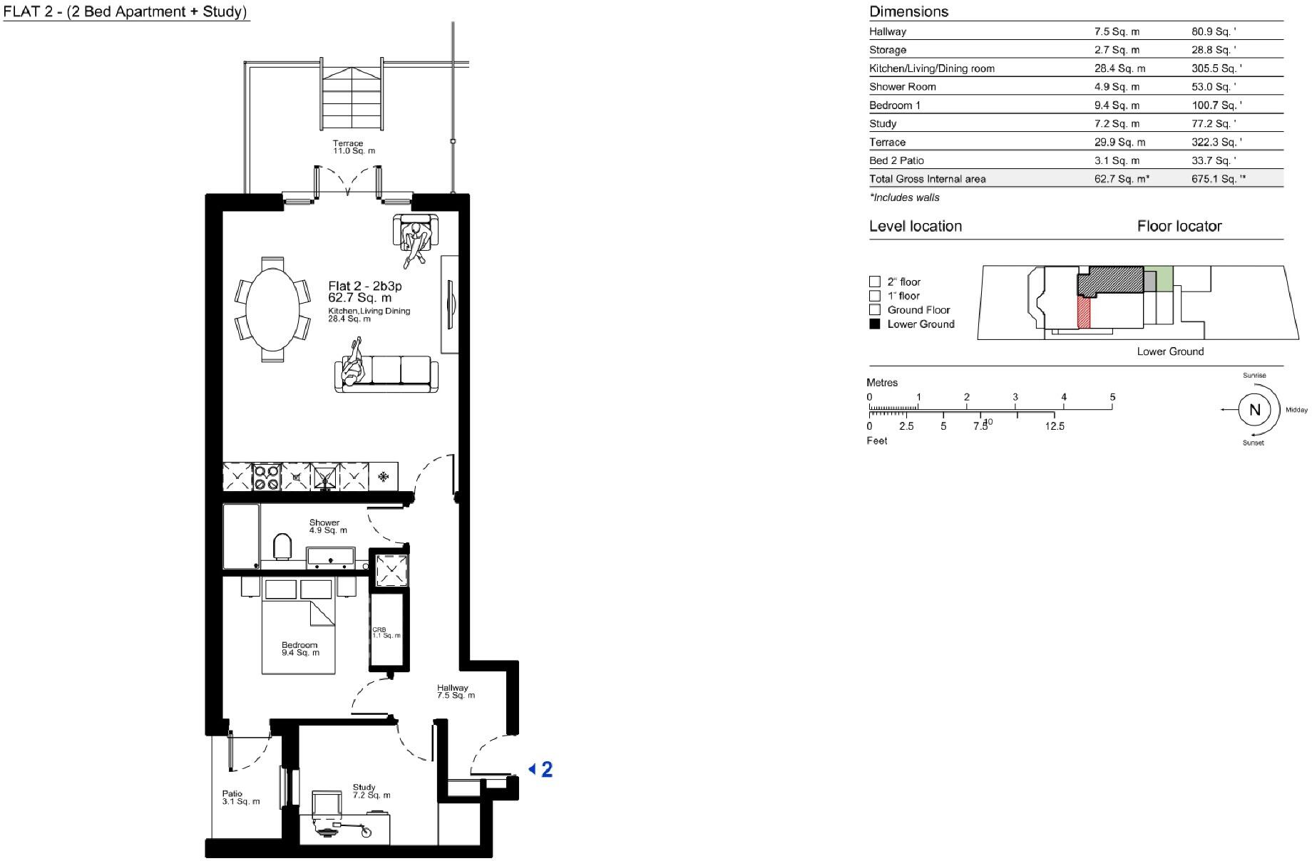
Apartment Two is one of the highlights of 14 Sutherland Place is a modern one bed and study apartment, spanning 675sq. Ft., and located on the lower ground floor. The apartment boasts an open-plan kitchen and living area, providing access to a large terrace and patio that enhances the overall liv...
Property Oracle says ..
Therefore, we give this property 7 / 10. *Disclaimer: This is our option and does constitute a recommendation or financial advice. Do your own research. *
- Price
- 6
- Condition
- 9
- Location
- 8
- Land
- 7
- Bedrooms
- 2
- Bathrooms
- 1
- Sqft (est)
- 674.90
The heatmap indicates the level of crime in the area. The color of the heatmap indicates the crime severity and recency.
Metrics Year-on-Year
- Average area value
- 696,869.00 £Decreased by 12.42 %
- Est sale value
- 444,084.20 £Increased by 0.61 %
- Average area rental value
- 2,517.00 £/moIncreased by 17.73 %
- Est letting value
- 1,349.80 £/moIncreased by 100.00 %
- Est rental Yield
- 4.33 %Increased by 34.47 %
- Crime Rate
- 1.00 %Unchanged by 0.00 %
from 795,708.00 £
from 441,384.60 £
from 2,138.00 £/mo
from 674.90 £/mo
from 3.22 %
from 1.00 %
Agent Activity
Dexters created the listing.
Nearby Schools
| Name | Type | Ofsted | Distance |
|---|---|---|---|
| Drayton Green Primary School | Community School | Good | 0.14 KM |
| St John'S Primary School | Community School | Good | 0.45 KM |
| Ealing Alternative Provision | Pupil Referral Unit | Good | 0.45 KM |
| Jubilee Hall Children'S Centre | Children's Centre Linked Site | 0.46 KM | |
| Insights Independent School | Other Independent Special School | Good | 0.55 KM |
Images
Nearby Streets
| Name | Average Price | Average Sqft | Distance |
|---|---|---|---|
| Sutherland Avenue | £ 484,950 | 0 | 0.00 KM |
| College Road | £ 700,000 | 0 | 0.00 KM |
| Sutherland Avenue | £ 0 | 0 | 0.00 KM |
| Colebrooke Avenue | £ 0 | 0 | 0.00 KM |
| St Stephen's Avenue | £ 1,850,000 | 0 | 0.00 KM |
Nearby Transport
| Name | NLC | TLC | Distance |
|---|---|---|---|
| West Ealing | 3188 | WEA | 0.51 KM |
| Drayton Green | 3099 | DRG | 0.69 KM |
| Castle Bar Park | 3098 | CBP | 1.14 KM |
| Hanwell | 3191 | HAN | 1.68 KM |
| South Greenford | 3138 | SGN | 2.42 KM |
Nearby Listings
| Address | Price | Type | Score | Distance |
|---|---|---|---|---|
| Sutherland Road, West Ealing | £ 625,000 | BUY | 7 / 10 | 0.00 KM |
| Sutherland Road, West Ealing | £ 350,000 | BUY | 6 / 10 | 0.02 KM |
| Sutherland Road, Ealing, W13 | £ 760,000 | BUY | 7 / 10 | 0.02 KM |
| Sutherland Road, Ealing, W13 | £ 575,000 | BUY | 8 / 10 | 0.02 KM |
| Sutherland Road, Ealing, W13 | £ 760,000 | BUY | 7 / 10 | 0.02 KM |
Nearby Properties
| Address | Price | Distance |
|---|---|---|
| 17 Sutherland Road | £ 860,000 | 0.03 KM |
| 3 Sutherland Road | £ 1,200,000 | 0.03 KM |
| 35 Sutherland Road | £ 485,000 | 0.03 KM |
| 6 Sutherland Road | £ 305,000 | 0.03 KM |
| 5 Sutherland Road | £ 535,000 | 0.06 KM |