Ellerslie Drive, Malvern, Worcestershire, WR14
By Audley Estates
£ 395,000
Reviews
3 out of 5 stars
Audley Estates says ..
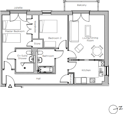
A fabulous two-bedroom apartment with double balcony.The apartment boasts an open plan kitchen/dining/living room with a private balcony, two double bedrooms with the main bedroom featuring a Juliet balcony and ensuite shower room. A further main bathroom is located off the spacious hallway.
Property Oracle says ..
Therefore, we give this property 7 / 10. *Disclaimer: This is our option and does constitute a recommendation or financial advice. Do your own research. *
- Price
- 6
- Condition
- 9
- Location
- 8
- Land
- 6
- Bedrooms
- 2
- Bathrooms
- 2
- Sqft (est)
- 696.00
The heatmap indicates the level of crime in the area. The color of the heatmap indicates the crime severity and recency.
Metrics Year-on-Year
- Average area value
- 456,240.00 £Increased by 13.67 %
- Est sale value
- 256,824.00 £Decreased by 7.29 %
- Average area rental value
- 1,149.00 £/moDecreased by 10.09 %
- Est letting value
- 0.00 £/moDecreased by 100.00 %
- Est rental Yield
- 3.02 %Decreased by 20.94 %
- Crime Rate
- 1.00 %Unchanged by 0.00 %
from 401,367.00 £
from 277,008.00 £
from 1,278.00 £/mo
from 696.00 £/mo
from 3.82 %
from 1.00 %
Agent Activity
Audley Estates created the listing.
Nearby Schools
| Name | Type | Ofsted | Distance |
|---|---|---|---|
| Malvern College | Other Independent School | 0.28 KM | |
| Malvern Parish Cofe Primary School | Academy Converter | Good | 1.21 KM |
| Malvern Wyche Cofe Primary School | Voluntary Controlled School | Good | 1.35 KM |
| Malvern St James | Other Independent School | 1.38 KM | |
| The Chase | Academy Converter | Good | 2.05 KM |
Images
Nearby Streets
| Name | Average Price | Average Sqft | Distance |
|---|---|---|---|
| Wells Road | £ 416,857 | 0 | 0.00 KM |
| Priory Road | £ 379,983 | 0 | 0.00 KM |
| Swan Pool Walk | £ 0 | 0 | 0.00 KM |
| 99 Steps | £ 400,000 | 0 | 0.00 KM |
| Lawnside | £ 380,000 | 0 | 0.00 KM |
Nearby Transport
| Name | NLC | TLC | Distance |
|---|---|---|---|
| Great Malvern | 4892 | GMV | 1.22 KM |
| Malvern Link | 4884 | MVL | 2.47 KM |
| Colwall | 4876 | CWL | 4.22 KM |
Nearby Listings
| Address | Price | Type | Score | Distance |
|---|---|---|---|---|
| Ellerslie Drive, Malvern, Worcestershire, WR14 | £ 395,000 | BUY | 7 / 10 | 0.00 KM |
| Vines Court, Ellerslie Drive, Malvern, WR14 | £ 300,000 | BUY | Unknown | 0.03 KM |
| Southlands, Wells Road, Malvern, WR14 | £ 248,000 | BUY | 6 / 10 | 0.10 KM |
| Abbey Road, Malvern | £ 215,000 | BUY | 7 / 10 | 0.12 KM |
| Hardwicke House, Abbey Road, Malvern, Worcestershire, WR14 3HH | £ 250,000 | BUY | 6 / 10 | 0.13 KM |
Nearby Properties
| Address | Price | Distance |
|---|---|---|
| 47 Abbey Road | £ 640,000 | 0.13 KM |
| 47a Abbey Road | £ 625,000 | 0.13 KM |
| 41a Wells Road | £ 330,000 | 0.17 KM |
| 41c Wells Road | £ 275,000 | 0.18 KM |
| 32a Abbey Road | £ 124,000 | 0.20 KM |