Golf Links Road, Ferndown, Dorset, BH22
By BrightWater
£ 495,000
Reviews
3 out of 5 stars
BrightWater says ..
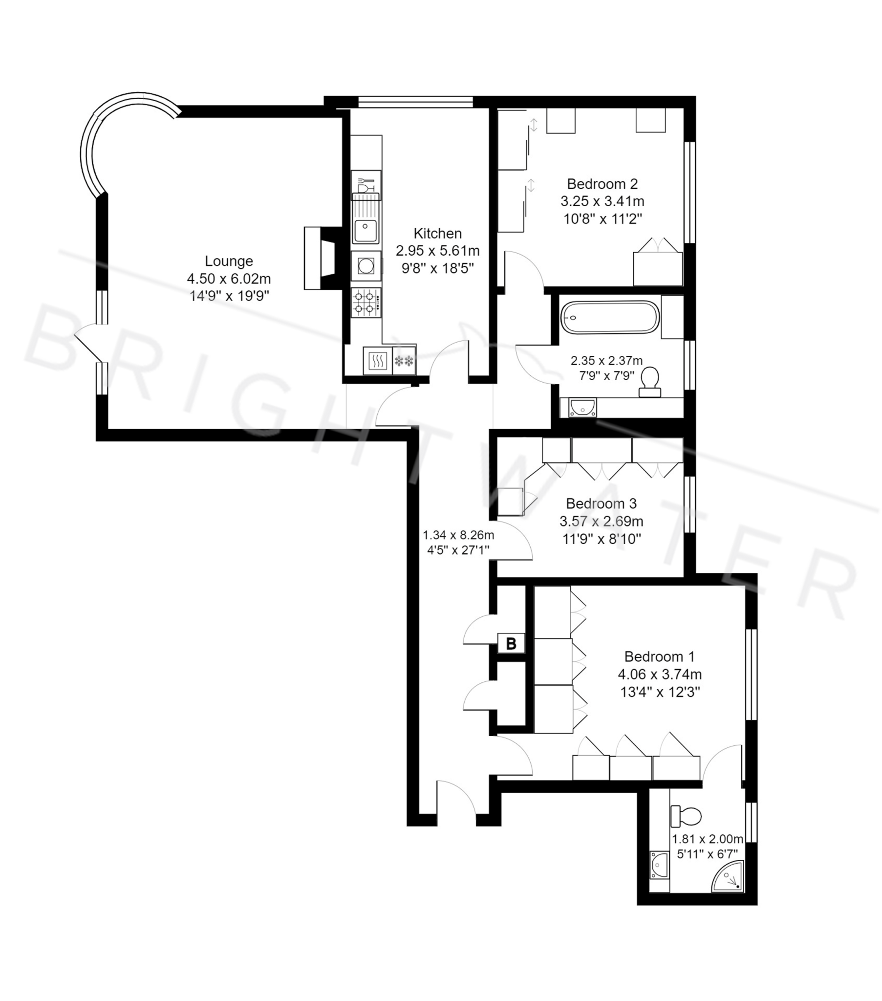
BrightWater are delighted to bring to the sales market this stunning ground floor apartment, situated in a prestigious location of Golf Links Road in Ferndown. This modern property, constructed in 2006, offers luxurious living spaces and beautiful communal gardens accessed through electric ...
Property Oracle says ..
This property is a three bedroom, two bathroom apartment located in Ferndown, Dorset. The apartment is in good condition and benefits from a private garden. The location is convenient, with nearby transportation links and schools. The list price of £495,000 is slightly higher than the average price for the area, but considering the condition, location, and included garden, it could be considered reasonable. More information on the size of the plot would be helpful in providing a more complete analysis.
Therefore, we give this property 7 / 10. *Disclaimer: This is our option and does constitute a recommendation or financial advice. Do your own research. *
- Price
- 6
- Condition
- 8
- Location
- 7
- Land
- 7
- Bedrooms
- 3
- Bathrooms
- 2
- Sqft (est)
- 956.76
The heatmap indicates the level of crime in the area. The color of the heatmap indicates the crime severity and recency.
Metrics Year-on-Year
- Average area value
- 604,286.00 £Increased by 16.63 %
- Est sale value
- 500,385.48 £Increased by 59.94 %
- Average area rental value
- 1,400.00 £/moDecreased by 5.79 %
- Est letting value
- 956.76 £/mo
- Est rental Yield
- 2.78 %Decreased by 19.19 %
- Crime Rate
- 3.00 %Unchanged by 0.00 %
Agent Activity
BrightWater created the listing.
Nearby Schools
| Name | Type | Ofsted | Distance |
|---|---|---|---|
| Parley First School | Academy Converter | 1.17 KM | |
| Ferndown First School | Academy Converter | 1.84 KM | |
| Ferndown Children'S Centre | Children's Centre | 1.97 KM | |
| Ferndown Middle School | Academy Converter | 1.99 KM | |
| Ferndown Upper School | Community School | Good | 2.43 KM |
Images
Nearby Streets
| Name | Average Price | Average Sqft | Distance |
|---|---|---|---|
| Aldridge Road | £ 687,500 | 0 | 0.00 KM |
| Drake's Road | £ 260,707 | 0 | 0.00 KM |
| Fairies Drive | £ 89,950 | 0 | 0.00 KM |
| Aldridge Way | £ 237,500 | 0 | 0.00 KM |
| Worley Way | £ 125,000 | 0 | 0.00 KM |
Nearby Transport
| Name | NLC | TLC | Distance |
|---|---|---|---|
| Bournemouth | 5876 | BMH | 7.93 KM |
| Branksome | 5875 | BSM | 8.72 KM |
| Pokesdown | 5885 | POK | 9.65 KM |
Nearby Listings
| Address | Price | Type | Score | Distance |
|---|---|---|---|---|
| Golf Links Road, Ferndown, Dorset, BH22 | £ 475,000 | BUY | Unknown | 0.00 KM |
| Golf Links Road, Ferndown, Dorset, BH22 | £ 495,000 | BUY | 7 / 10 | 0.00 KM |
| Golf Links Road, Ferndown, BH22 | £ 339,950 | BUY | 7 / 10 | 0.03 KM |
| Golf Links Road, Ferndown, BH22 | £ 275,000 | BUY | 6 / 10 | 0.07 KM |
| Flat 8, Hartshill Court, 104 Golf Links Road, Ferndown, Dorset | £ 340,000 | BUY | Unknown | 0.07 KM |
Nearby Properties
| Address | Price | Distance |
|---|---|---|
| 364 New Road | £ 480,000 | 0.13 KM |
| 362a New Road | £ 475,000 | 0.13 KM |
| 374 New Road | £ 360,000 | 0.13 KM |
| 358 New Road | £ 505,000 | 0.13 KM |
| 68 Golf Links Road | £ 300,000 | 0.15 KM |