Southcroft Farm, Ulgham, NE61
By Northumberland Properties (Alnwick)
£ 630,000
Reviews
3 out of 5 stars
Northumberland Properties (Alnwick) says ..
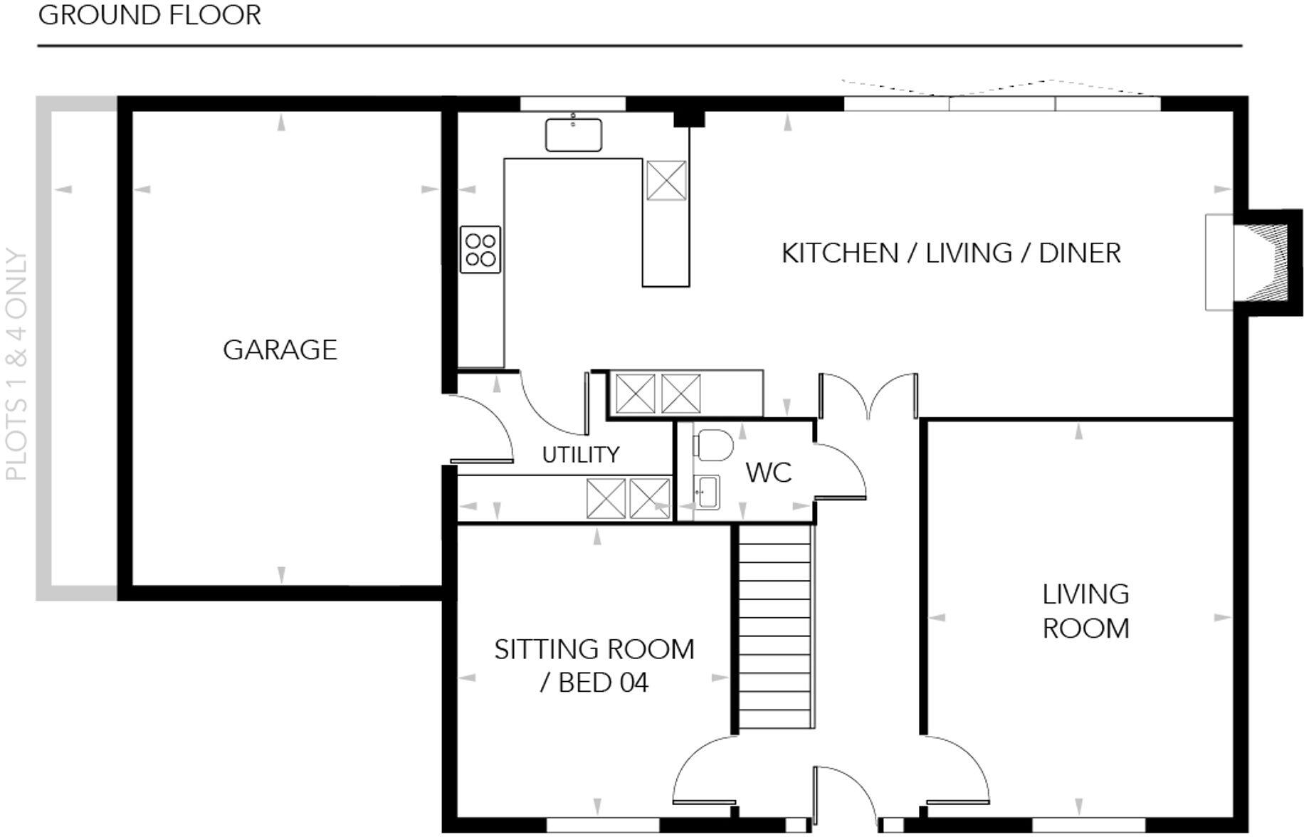
Ulgham | Coastal Collection | 4-Bedroom HomesSet in the picturesque village of Ulgham, these four thoughtfully designed homes blend countryside character with modern living.
Property Oracle says ..
Southcroft Farm is a new build detached bungalow located in the village of Ulgham, Northumberland. The property is situated in a rural location with good access to nearby towns such as Morpeth. While the immediate surroundings appear tranquil, the proximity to nearby towns offers convenient access to amenities and transportation. The property itself is modern in design, and the images suggest it is finished to a high standard. The lack of plot size information makes it difficult to comment on the amount of land included. However, the images show a small garden area. The list price of £630,000 is higher than the average price for the area (£549,545), but comparable to other properties in the area. Given the modern build and apparent high-quality finish, the price may be justified.
Therefore, we give this property 6 / 10. *Disclaimer: This is our option and does constitute a recommendation or financial advice. Do your own research. *
- Price
- 7
- Condition
- 9
- Location
- 7
- Land
- 4
- Bedrooms
- 4
- Bathrooms
- 2
- Sqft (est)
- 925.00
The heatmap indicates the level of crime in the area. The color of the heatmap indicates the crime severity and recency.
Metrics Year-on-Year
- Average area value
- 625,000.00 £Increased by 9.15 %
- Est sale value
- 612,350.00 £Increased by 24.67 %
- Average area rental value
- 1,525.00 £/moIncreased by 1.26 %
- Est letting value
- 925.00 £/moUnchanged by 0.00 %
- Est rental Yield
- 2.93 %Decreased by 7.28 %
- Crime Rate
- 0.00 %
Agent Activity
Northumberland Properties (Alnwick) created the listing.
Nearby Schools
| Name | Type | Ofsted | Distance |
|---|---|---|---|
| Grange View Church Of England Voluntary Controlled First School | Voluntary Controlled School | Good | 2.71 KM |
| Pegswood Primary School | Community School | Good | 4.12 KM |
| Linton Primary School | Community School | Good | 4.20 KM |
| Bothal Primary School | Foundation School | Good | 5.66 KM |
| Buzz Learning Independent Specialist School | Other Independent Special School | Good | 5.79 KM |
Images
Nearby Streets
| Name | Average Price | Average Sqft | Distance |
|---|---|---|---|
| Old Moor Shaft | £ 0 | 0 | 0.00 KM |
| Manor Court | £ 431,650 | 0 | 0.00 KM |
| The Croft | £ 497,500 | 0 | 0.00 KM |
| Woodlands | £ 0 | 0 | 0.00 KM |
| Station Cottages | £ 0 | 0 | 0.00 KM |
Nearby Transport
| Name | NLC | TLC | Distance |
|---|---|---|---|
| Widdrington | 7695 | WDD | 3.13 KM |
| Pegswood | 7685 | PEG | 4.57 KM |
| Morpeth | 7680 | MPT | 8.65 KM |
Nearby Listings
| Address | Price | Type | Score | Distance |
|---|---|---|---|---|
| Southcroft Farm, Ulgham, NE61 | £ 650,000 | BUY | 7 / 10 | 0.00 KM |
| Southcroft Farm, Ulgham, NE61 | £ 630,000 | BUY | 6 / 10 | 0.00 KM |
| The Farmhouse, Crowden Hill Farm, Ulgham, Morpeth, Northumberland | £ 750,000 | BUY | 7 / 10 | 0.00 KM |
| The Goat Barn, Crowden Hill Farm, Ulgham, Morpeth, Northumberland | £ 575,000 | BUY | 7 / 10 | 0.05 KM |
| Ulgham Lane, Longhirst, Morpeth, Northumberland, NE61 | £ 695,000 | BUY | 8 / 10 | 0.94 KM |
Nearby Properties
| Address | Price | Distance |
|---|---|---|
| 8 Manor Court | £ 200,000 | 1.40 KM |
| 6 Manor Court | £ 240,000 | 1.40 KM |
| 9 Manor Court | £ 250,000 | 1.40 KM |
| 4 Manor Court | £ 102,000 | 1.40 KM |
| 2 Manor Farm | £ 350,000 | 1.43 KM |