Waters & Co. says ..
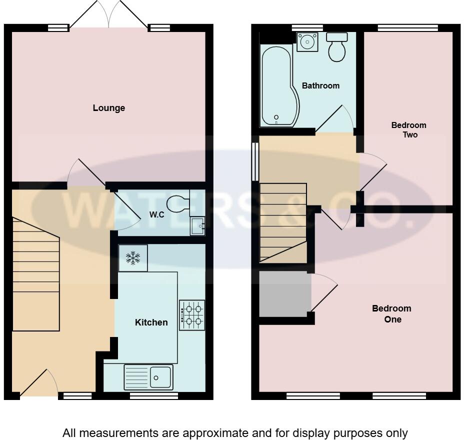
*** NEW INSTRUCTION *** Waters & Co are proud to present for sale this superbly maintained two bedroom end-terraced property situated in a much sought after cul-de-sac within Coleshill. The property has accommodation comprising hall, lounge, fitted kitchen, guest cloakroom, two bedrooms and (cont.)
Property Oracle says ..
Therefore, we give this property 6 / 10. *Disclaimer: This is our option and does constitute a recommendation or financial advice. Do your own research. *
- Price
- 5
- Condition
- 8
- Location
- 7
- Land
- 7
- Bedrooms
- 2
- Bathrooms
- 1
- Sqft (est)
- 602.00
The heatmap indicates the level of crime in the area. The color of the heatmap indicates the crime severity and recency.
Metrics Year-on-Year
- Average area value
- 306,316.00 £Increased by 32.78 %
- Est sale value
- 210,700.00 £Increased by 28.21 %
- Average area rental value
- 1,226.00 £/moDecreased by 2.93 %
- Est letting value
- 602.00 £/moUnchanged by 0.00 %
- Est rental Yield
- 4.80 %Decreased by 26.94 %
- Crime Rate
- 9.00 %Unchanged by 0.00 %
from 230,688.00 £
from 164,346.00 £
from 1,263.00 £/mo
from 602.00 £/mo
from 6.57 %
from 9.00 %
Agent Activity
Waters & Co. created the listing.
Nearby Schools
| Name | Type | Ofsted | Distance |
|---|---|---|---|
| Coleshill Church Of England Primary School | Academy Converter | 0.75 KM | |
| High Meadow Community School | Community School | Outstanding | 0.90 KM |
| St Edward'S Catholic Primary School | Academy Converter | 1.16 KM | |
| Woodlands | Academy Special Converter | 1.68 KM | |
| The Coleshill School | Academy Converter | Good | 1.69 KM |
Images
Nearby Streets
| Name | Average Price | Average Sqft | Distance |
|---|---|---|---|
| Park Avenue | £ 0 | 0 | 0.00 KM |
| Wood Close | £ 0 | 0 | 0.00 KM |
| Orchard Close | £ 0 | 0 | 0.00 KM |
| High Street | £ 0 | 0 | 0.00 KM |
| Station Road | £ 250,000 | 0 | 0.00 KM |
Nearby Transport
| Name | NLC | TLC | Distance |
|---|---|---|---|
| Coleshill Parkway | 9882 | CEH | 2.06 KM |
| Water Orton | 1121 | WTO | 4.04 KM |
| Birmingham International | 1215 | BHI | 5.51 KM |
| Marston Green | 1034 | MGN | 5.89 KM |
| Hampton-In-Arden | 1033 | HIA | 7.87 KM |
Nearby Listings
| Address | Price | Type | Score | Distance |
|---|---|---|---|---|
| Lawnsdale Close, Coleshill | £ 260,000 | BUY | 6 / 10 | 0.00 KM |
| Birmingham Road, Birmingham | £ 500,000 | BUY | 6 / 10 | 0.09 KM |
| Colemeadow Road, Coleshill, B46 1BL | £ 170,000 | BUY | 7 / 10 | 0.14 KM |
| Colemeadow Road, Coleshill | £ 290,000 | BUY | 7 / 10 | 0.21 KM |
| Park Court, Birmingham Road, Coleshill | £ 165,000 | BUY | 6 / 10 | 0.26 KM |
Nearby Properties
| Address | Price | Distance |
|---|---|---|
| 51 Lawnsdale Close | £ 147,500 | 0.01 KM |
| 1 Lawnsdale Close | £ 195,000 | 0.01 KM |
| 45 Lawnsdale Close | £ 90,000 | 0.01 KM |
| 4 Lawnsdale Close | £ 166,500 | 0.01 KM |
| 14 Lawnsdale Close | £ 200,000 | 0.01 KM |