Barnfield Road, Harpenden, Hertfordshire, AL5
By Frost's Estate Agents
£ 850,000
Reviews
3 out of 5 stars
Frost's Estate Agents says ..
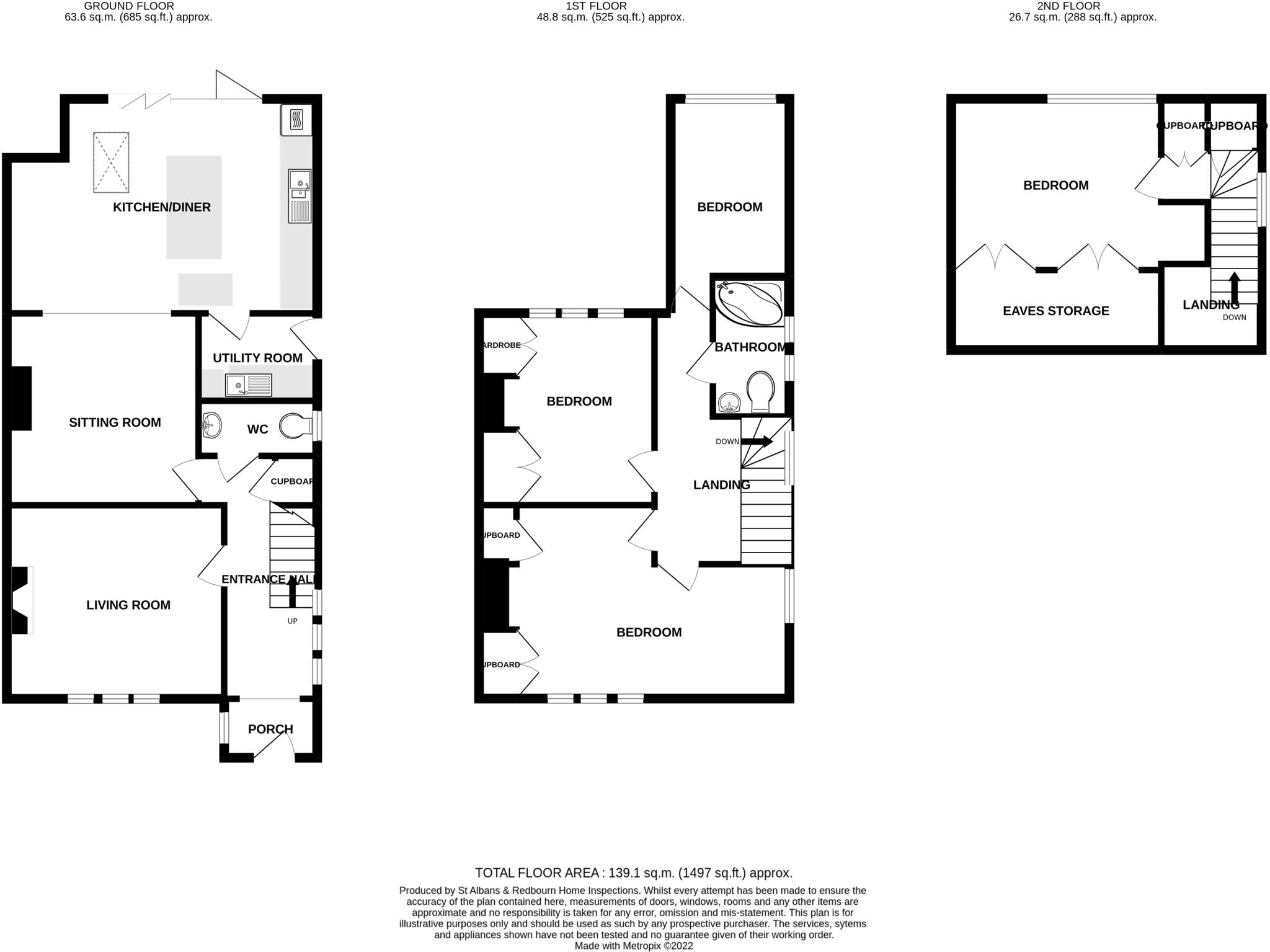
An extended four bedroom semi detached family home situated in a sought after location less than a mile from Harpenden town centre and within easy reach of several outstanding local schools. Barnfield Road is situated between Crabtree Lane and Piggottshill Lane less than a mile from Harpenden tow...
Property Oracle says ..
This semi-detached property on Barnfield Road, Harpenden, presents a solid opportunity for potential buyers. The house offers ample living space with four bedrooms and two bathrooms, making it suitable for families. The modern kitchen is a definite highlight, and the garden provides a valuable outdoor area. While some areas of the property could benefit from cosmetic updates, the overall condition appears good. The location in Harpenden is a major selling point, with proximity to schools and transportation links. Considering the size, location, and features, the asking price of £850,000 seems justified.
Therefore, we give this property 7 / 10. *Disclaimer: This is our option and does constitute a recommendation or financial advice. Do your own research. *
- Price
- 7
- Condition
- 7
- Location
- 8
- Land
- 7
- Bedrooms
- 4
- Bathrooms
- 2
- Sqft (est)
- 1,949.34
The heatmap indicates the level of crime in the area. The color of the heatmap indicates the crime severity and recency.
Metrics Year-on-Year
- Average area value
- 1,268,750.00 £Increased by 29.81 %
- Est sale value
- 3,089,703.90 £Increased by 115.35 %
- Average area rental value
- 2,317.00 £/moIncreased by 19.00 %
- Est letting value
- 3,898.68 £/moIncreased by 100.00 %
- Est rental Yield
- 2.19 %Decreased by 8.37 %
- Crime Rate
- 11.00 %Unchanged by 0.00 %
Agent Activity
Frost's Estate Agents created the listing.
Nearby Schools
| Name | Type | Ofsted | Distance |
|---|---|---|---|
| Sa3 Southdown Family Centre | Children's Centre | 0.41 KM | |
| The Grove Junior School | Community School | Good | 0.52 KM |
| The Grove Infant And Nursery School | Community School | Outstanding | 0.63 KM |
| Crabtree Infants' School | Academy Converter | 0.72 KM | |
| High Beeches Primary School | Community School | Outstanding | 0.77 KM |
Images
Nearby Streets
| Name | Average Price | Average Sqft | Distance |
|---|---|---|---|
| Gordon's Walk | £ 660,000 | 0 | 0.00 KM |
| Cosne Mews | £ 275,000 | 0 | 0.00 KM |
| Saint Johns Road | £ 0 | 0 | 0.00 KM |
| Spenser Road | £ 1,400,000 | 0 | 0.00 KM |
| Alzey Gardens | £ 0 | 0 | 0.00 KM |
Nearby Transport
| Name | NLC | TLC | Distance |
|---|---|---|---|
| Harpenden | 1543 | HPD | 1.18 KM |
| St Albans City | 1548 | SAC | 6.75 KM |
| St Albans Abbey | 1562 | SAA | 7.19 KM |
| Luton Airport Parkway | 3645 | LTN | 9.20 KM |
| Park Street | 1561 | PKT | 9.34 KM |
Nearby Listings
| Address | Price | Type | Score | Distance |
|---|---|---|---|---|
| Barnfield Road, Harpenden, Hertfordshire, AL5 | £ 850,000 | BUY | 7 / 10 | 0.00 KM |
| Barnfield Road, Harpenden, Hertfordshire, AL5 | £ 875,000 | BUY | 7 / 10 | 0.00 KM |
| Churchfield, Harpenden, Hertfordshire, AL5 | £ 1,000,000 | BUY | 8 / 10 | 0.08 KM |
| Churchfield, Harpenden, Hertfordshire, AL5 | £ 995,000 | BUY | 8 / 10 | 0.09 KM |
| Barnfield Road, Harpenden, Hertfordshire, AL5 | £ 1,100,000 | BUY | 8 / 10 | 0.12 KM |
Nearby Properties
| Address | Price | Distance |
|---|---|---|
| 37 Barnfield Road | £ 965,000 | 0.03 KM |
| 67 Barnfield Road | £ 790,000 | 0.03 KM |
| 25 Barnfield Road | £ 875,000 | 0.03 KM |
| 43 Barnfield Road | £ 685,000 | 0.03 KM |
| 59 Barnfield Road | £ 548,500 | 0.03 KM |