Land Adjacent to 101 Shroggs Road, Halifax
By EweMove
£ 75,000
Reviews
2 out of 5 stars
EweMove says ..
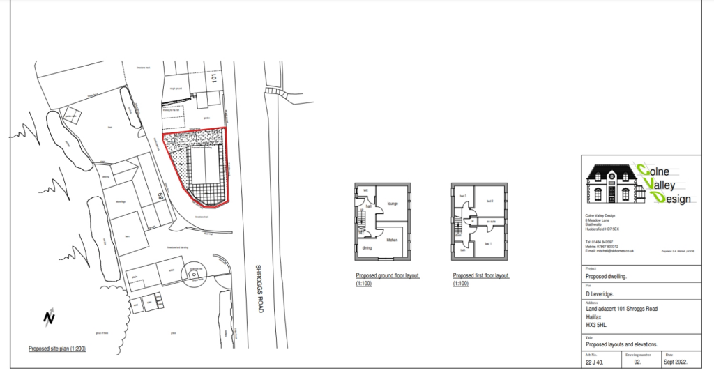
**LAND FOR SALE **Permission for a 3 Bedroom Detached ** CALL TO ARRANGE YOUR VIEWING ** Wheatley area of Halifax.
Property Oracle says ..
This listing presents a plot of land adjacent to 101 Shroggs Road, Ovenden, Halifax. The land is currently overgrown and requires significant preparation before any construction can begin. The listing highlights the potential to build a three-bedroom detached house, subject to obtaining planning permission, a crucial factor that significantly impacts the land’s overall value. The photos show the land to be undeveloped, with an existing dilapidated wooden fence. There is evidence of some established vegetation, suggesting work will be required to clear the site and prepare it for development. The location in Ovenden offers proximity to local amenities, schools, and transport links, including nearby train stations. However, the specific positioning on Shroggs Road might have implications for desirability depending on individual buyer preferences. The provided nearby property listings show a wide range of prices, highlighting the variability in property values in the area, depending on size, style, and condition. The asking price should be considered in relation to planning costs, construction costs, and the potential resale value after the development is completed. A thorough survey and cost analysis should be performed before purchasing this property, factoring in potential challenges and costs associated with land clearance, planning approvals, and construction. The lack of specifics regarding the plot size further complicates any precise valuation. While the price might seem relatively low, the considerable time, effort and financial investment required to transform the land into a usable property should be carefully assessed.
Therefore, we give this property 5 / 10. *Disclaimer: This is our option and does constitute a recommendation or financial advice. Do your own research. *
- Price
- 7
- Condition
- 3
- Location
- 6
- Land
- 4
- Bedrooms
- 0
- Bathrooms
- 0
The heatmap indicates the level of crime in the area. The color of the heatmap indicates the crime severity and recency.
Metrics Year-on-Year
- Average area value
- 143,077.00 £Decreased by 16.59 %
- Average area rental value
- 723.00 £/moIncreased by 2.70 %
- Est rental Yield
- 6.06 %Increased by 23.17 %
- Crime Rate
- 0.00 %
Agent Activity
EweMove created the listing.
Nearby Schools
| Name | Type | Ofsted | Distance |
|---|---|---|---|
| Lee Mount Primary School | Community School | Requires improvement | 0.46 KM |
| Mount Pellon Primary Academy | Academy Sponsor Led | Good | 0.87 KM |
| Sunshine Childrens Centre | Children's Centre | 0.88 KM | |
| Kevin Pearce Childrens Centre | Children's Centre | 0.92 KM | |
| St Augustine'S Cofe Va Junior And Infant School | Voluntary Aided School | Special Measures | 1.06 KM |
Images
Nearby Streets
| Name | Average Price | Average Sqft | Distance |
|---|---|---|---|
| Ashfield Close | £ 0 | 0 | 0.00 KM |
| Rosebery Terrace | £ 0 | 0 | 0.00 KM |
| Grove Park | £ 0 | 0 | 0.00 KM |
| Hartley Street | £ 0 | 0 | 0.00 KM |
| Turney Street | £ 0 | 0 | 0.00 KM |
Nearby Transport
| Name | NLC | TLC | Distance |
|---|---|---|---|
| Halifax | 8411 | HFX | 3.39 KM |
| Sowerby Bridge | 8527 | SOW | 4.05 KM |
Nearby Listings
| Address | Price | Type | Score | Distance |
|---|---|---|---|---|
| Land Adjacent to 101 Shroggs Road, Halifax | £ 75,000 | BUY | 5 / 10 | 0.00 KM |
| Shroggs Road, Halifax, West Yorkshire, HX3 | £ 130,000 | BUY | 7 / 10 | 0.00 KM |
| Shroggs Stables, Halifax | £ 650,000 | BUY | 6 / 10 | 0.00 KM |
| Field Close, Halifax | £ 240,000 | BUY | 7 / 10 | 0.13 KM |
| Field View, Halifax | £ 200,000 | BUY | 7 / 10 | 0.17 KM |
Nearby Properties
| Address | Price | Distance |
|---|---|---|
| 15 Field Close | £ 120,000 | 0.13 KM |
| 9 Field Close | £ 137,000 | 0.13 KM |
| 11 Field Close | £ 170,000 | 0.13 KM |
| 18 Field Close | £ 137,000 | 0.13 KM |
| 29 Field Close | £ 40,185 | 0.13 KM |