Church Paddock Court, Wallington, SM6
By James Bailey Sales & Lettings
£ 425,000
Reviews
3 out of 5 stars
James Bailey Sales & Lettings says ..
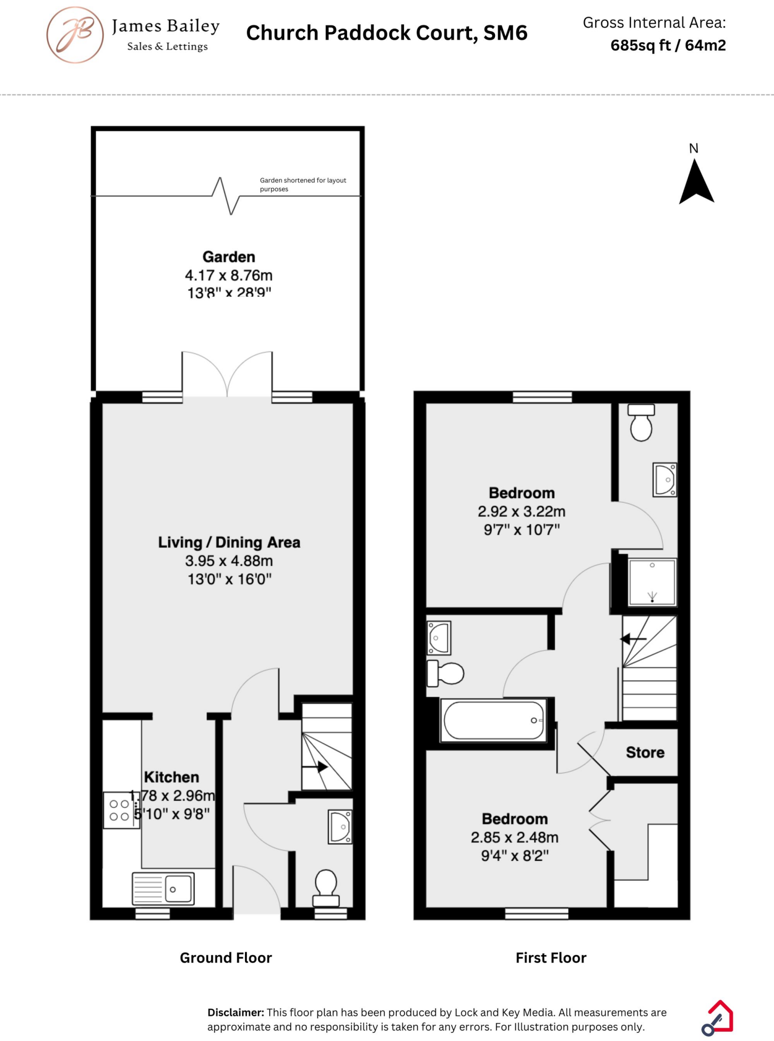
James Bailey is proud to present this wonderful two double bedroom mid-terrace family home. On the ground floor is a gorgeous open plan reception room with doors leading out to the low maintenance private garden, a fitted modern kitchen and downstairs WC. On the first floor are two double bedroom...
Property Oracle says ..
This property is a two bedroom, two bathroom terraced house located in Wallington, SM6. The property is presented in excellent decorative condition and benefits from a private rear garden. The location is convenient, with nearby schools (Sherwood Park School and Carew Academy are both rated as ‘Good’ or ‘Outstanding’), and transport links (Wallington train station is approximately 2km away). The property is smaller than the average property in the area (688 sqft vs 1073 sqft) and is listed at a price below the average price per sqft. However, given its excellent condition and desirable location, the list price of £425,000 could be considered reasonable. Further research into comparable properties in the immediate vicinity would be beneficial to confirm this.
Therefore, we give this property 7 / 10. *Disclaimer: This is our option and does constitute a recommendation or financial advice. Do your own research. *
- Price
- 7
- Condition
- 9
- Location
- 8
- Land
- 7
- Bedrooms
- 2
- Bathrooms
- 2
- Sqft (est)
- 688.89
The heatmap indicates the level of crime in the area. The color of the heatmap indicates the crime severity and recency.
Metrics Year-on-Year
- Average area value
- 393,750.00 £Decreased by 16.75 %
- Est sale value
- 438,134.04 £Increased by 10.03 %
- Average area rental value
- 2,150.00 £/moIncreased by 26.03 %
- Est letting value
- 2,066.67 £/moIncreased by 50.00 %
- Est rental Yield
- 6.55 %Increased by 51.27 %
- Crime Rate
- 7.00 %Unchanged by 0.00 %
Agent Activity
James Bailey Sales & Lettings created the listing.
Nearby Schools
| Name | Type | Ofsted | Distance |
|---|---|---|---|
| Sherwood Park School | Foundation Special School | Good | 0.19 KM |
| Carew Academy | Academy Special Sponsor Led | Outstanding | 0.28 KM |
| Beddington Park Academy | Academy Sponsor Led | 0.38 KM | |
| Beddington Park Primary Children'S Centre | Children's Centre | 0.49 KM | |
| Link Primary School | Academy Special Converter | Outstanding | 0.96 KM |
Images
Nearby Streets
| Name | Average Price | Average Sqft | Distance |
|---|---|---|---|
| Queen Elizabeth's Walk | £ 0 | 0 | 0.00 KM |
| Plough Lane | £ 0 | 0 | 0.00 KM |
| Paston Close | £ 0 | 0 | 0.00 KM |
| Clifford Avenue | £ 0 | 0 | 0.00 KM |
| Sandy Lane North | £ 575,000 | 0 | 0.00 KM |
Nearby Transport
| Name | NLC | TLC | Distance |
|---|---|---|---|
| Wallington | 5394 | WLT | 2.00 KM |
| Hackbridge | 5364 | HCB | 2.03 KM |
| Waddon | 5392 | WDO | 2.19 KM |
| Carshalton | 5405 | CSH | 3.30 KM |
| Mitcham Junction | 5427 | MIJ | 3.33 KM |
Nearby Listings
| Address | Price | Type | Score | Distance |
|---|---|---|---|---|
| Church Paddock Court, Wallington, SM6 | £ 425,000 | BUY | 7 / 10 | 0.00 KM |
| Church Paddock Court, Wallington, SM6 | £ 425,000 | BUY | 6 / 10 | 0.06 KM |
| Barons court, Whelan Way, Wallington | £ 200,000 | BUY | 6 / 10 | 0.12 KM |
| Church Lane, Wallington | £ 425,000 | BUY | 6 / 10 | 0.15 KM |
| Guy Road, Wallington, SM6 | £ 549,950 | BUY | Unknown | 0.22 KM |
Nearby Properties
| Address | Price | Distance |
|---|---|---|
| 10 Church Paddock Court | £ 139,950 | 0.07 KM |
| 2 Church Paddock Court | £ 147,950 | 0.07 KM |
| 8 Church Paddock Court | £ 228,000 | 0.07 KM |
| 19 Church Paddock Court | £ 324,000 | 0.07 KM |
| 18 Church Paddock Court | £ 365,000 | 0.07 KM |