Mill Road, Gillingham, Kent, ME7
By Robinson Michael & Jackson
£ 250,000
Reviews
3 out of 5 stars
Robinson Michael & Jackson says ..
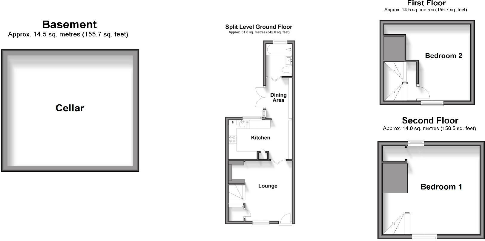
Robinson Michael & Jackson present this 2 bedroom immaculate terraced cottage built in approximately the 1790's. This home bursts with character throughout its four levels.
Property Oracle says ..
This is a two-bedroom terraced house on Mill Road, Gillingham North. The property offers a blend of traditional and modern features, with a recently updated kitchen and a garden. It is located within a reasonable distance of schools and transportation links, making it suitable for families and commuters. The asking price of £250,000 appears competitive, given the size of the property and the average price per square foot in the area. While the property is in generally good condition, some areas may benefit from cosmetic improvements. Overall, this property presents a good opportunity for potential buyers.
Therefore, we give this property 6 / 10. *Disclaimer: This is our option and does constitute a recommendation or financial advice. Do your own research. *
- Price
- 7
- Condition
- 7
- Location
- 7
- Land
- 6
- Bedrooms
- 2
- Bathrooms
- 1
- Sqft (est)
- 1,489.73
The heatmap indicates the level of crime in the area. The color of the heatmap indicates the crime severity and recency.
Metrics Year-on-Year
- Average area value
- 258,294.00 £Increased by 3.99 %
- Est sale value
- 555,669.29 £Increased by 24.75 %
- Average area rental value
- 1,321.00 £/moDecreased by 18.41 %
- Est letting value
- 1,489.73 £/moUnchanged by 0.00 %
- Est rental Yield
- 6.14 %Decreased by 21.48 %
- Crime Rate
- 16.00 %Unchanged by 0.00 %
Agent Activity
Robinson Michael & Jackson created the listing.
Nearby Schools
| Name | Type | Ofsted | Distance |
|---|---|---|---|
| Oasis Academy Skinner Street | Academy Sponsor Led | Good | 0.43 KM |
| Midkent College | Further Education | Good | 0.45 KM |
| Burnt Oak Primary School & Children'S Centre | Children's Centre | 0.86 KM | |
| Burnt Oak Primary School | Community School | Requires improvement | 0.86 KM |
| Brompton Academy | Academy Sponsor Led | Good | 0.89 KM |
Images
Nearby Streets
| Name | Average Price | Average Sqft | Distance |
|---|---|---|---|
| Katherine Court | £ 0 | 0 | 0.00 KM |
| Pheonix Court | £ 0 | 0 | 0.00 KM |
| Kestrel House | £ 0 | 0 | 0.00 KM |
| Park View | £ 0 | 0 | 0.00 KM |
| Khyber Road | £ 0 | 0 | 0.00 KM |
Nearby Transport
| Name | NLC | TLC | Distance |
|---|---|---|---|
| Gillingham (Kent) | 5169 | GLM | 0.89 KM |
| Chatham | 5199 | CTM | 2.61 KM |
| Rochester | 5203 | RTR | 3.61 KM |
| Strood (Kent) | 5191 | SOO | 4.74 KM |
| Rainham (Kent) | 5177 | RAI | 8.05 KM |
Nearby Listings
| Address | Price | Type | Score | Distance |
|---|---|---|---|---|
| Mill Road, Gillingham, Kent, ME7 | £ 250,000 | BUY | 6 / 10 | 0.00 KM |
| Mill Road, Gillingham, Kent, ME7 | £ 200,000 | BUY | 6 / 10 | 0.01 KM |
| Mill Road, Brompton, Gillingham, ME7 | £ 450,000 | BUY | 7 / 10 | 0.01 KM |
| Mill Road, Gillingham, Kent, ME7 | £ 350,000 | BUY | Unknown | 0.04 KM |
| Mill Road, Gillingham, Kent | £ 550,000 | BUY | 6 / 10 | 0.11 KM |
Nearby Properties
| Address | Price | Distance |
|---|---|---|
| 19 Mill Road | £ 171,500 | 0.00 KM |
| 18 Mill Road | £ 173,000 | 0.00 KM |
| 12 Mill Road | £ 137,500 | 0.01 KM |
| 10 Mill Road | £ 115,000 | 0.01 KM |
| 13 Mill Road | £ 48,000 | 0.01 KM |