Dropmore Road, Burnham, Buckinghamshire, SL1
By The Frost Partnership
£ 600,000
Reviews
2 out of 5 stars
The Frost Partnership says ..
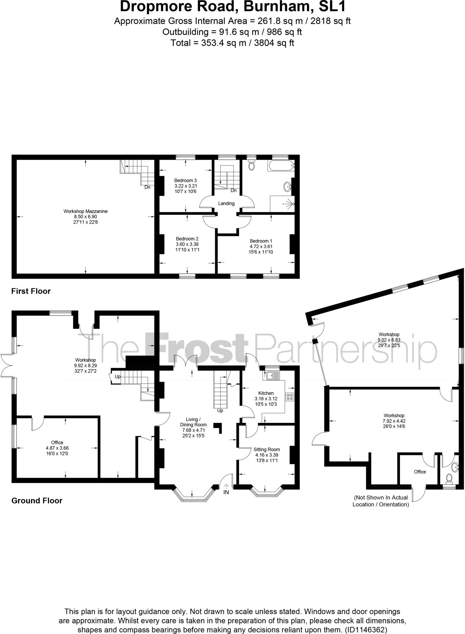
A unique & very rare opportunity to purchase this spacious detached period home with adjoining commercial premises & yard found in the heart of Burnham with easy access to the High Street with its variety of shops and eateries.
Property Oracle says ..
This property in Burnham, Buckinghamshire presents a unique opportunity for a buyer seeking a residential property with an attached commercial space. The three-bedroom house is situated conveniently close to local amenities such as schools and the high street. Burnham Grammar School, a ‘Good’-rated Ofsted school, is within walking distance, making this a potentially attractive option for families. Transport links are also relatively well-situated with reasonable proximity to train stations. However, the property itself requires significant updating. The interior finishes appear dated, and the kitchen may need a complete renovation. The small yard and adjoining commercial property add to the unique nature of this listing but should be regarded as needing attention and adding to potential cost considerations. The existing commercial unit is in considerable need of renovation. Overall, this property needs significant investment to reach its full potential, but the location and the combined residential/commercial opportunity could make it worthwhile for the right buyer. The provided information doesn’t fully explain what the commercial units would be suited for. Additional due diligence should be undertaken to asses the true potential of the unit and cost implications of any intended redevelopment.
Therefore, we give this property 4 / 10. *Disclaimer: This is our option and does constitute a recommendation or financial advice. Do your own research. *
- Price
- 6
- Condition
- 4
- Location
- 7
- Land
- 2
- Bedrooms
- 3
- Bathrooms
- 1
- Sqft (est)
- 3,803.97
The heatmap indicates the level of crime in the area. The color of the heatmap indicates the crime severity and recency.
Metrics Year-on-Year
- Average area value
- 1,040,385.00 £Decreased by 1.22 %
- Est sale value
- 2,677,994.88 £Increased by 7.15 %
- Average area rental value
- 2,075.00 £/moDecreased by 10.13 %
- Est letting value
- 3,803.97 £/moUnchanged by 0.00 %
- Est rental Yield
- 2.39 %Decreased by 9.13 %
- Crime Rate
- 36.00 %Unchanged by 0.00 %
Agent Activity
The Frost Partnership marked this listing as sold.
The Frost Partnership created the listing.
Nearby Schools
| Name | Type | Ofsted | Distance |
|---|---|---|---|
| St Peter'S Church Of England Primary School | Voluntary Aided School | Good | 0.49 KM |
| Burnham Family Centre | Children's Centre | 0.49 KM | |
| Burnham Grammar School | Academy Converter | Good | 0.85 KM |
| Our Lady Of Peace Catholic Primary And Nursery School | Voluntary Aided School | Good | 1.17 KM |
| Priory School | Foundation School | Good | 1.22 KM |
Images
Nearby Streets
| Name | Average Price | Average Sqft | Distance |
|---|---|---|---|
| High Street | £ 0 | 0 | 0.00 KM |
| Baldwin Road | £ 450,000 | 0 | 0.00 KM |
| Hall Meadow | £ 0 | 0 | 0.00 KM |
| Hamilton Gardens | £ 883,750 | 0 | 0.00 KM |
| St. Michael's Court | £ 458,333 | 0 | 0.00 KM |
Nearby Transport
| Name | NLC | TLC | Distance |
|---|---|---|---|
| Burnham | 3176 | BNM | 1.99 KM |
| Taplow | 3151 | TAP | 2.92 KM |
| Bourne End | 3018 | BNE | 7.29 KM |
| Maidenhead | 3147 | MAI | 7.37 KM |
| Cookham | 3019 | COO | 7.40 KM |
Nearby Listings
| Address | Price | Type | Score | Distance |
|---|---|---|---|---|
| Dropmore Road, Burnham, Buckinghamshire, SL1 | £ 600,000 | BUY | 4 / 10 | 0.00 KM |
| Fairfield Road, Burnham | £ 400,000 | BUY | 7 / 10 | 0.04 KM |
| Britwell Gardens Burnham, Buckinghamshire, SL1 8DG | £ 1,100,000 | BUY | 7 / 10 | 0.07 KM |
| Gore Road, Burnham, Slough | £ 325,000 | BUY | 6 / 10 | 0.09 KM |
| Beeches Lodge, Burnham | £ 349,950 | BUY | 6 / 10 | 0.13 KM |
Nearby Properties
| Address | Price | Distance |
|---|---|---|
| 21 Fairfield Road | £ 378,000 | 0.08 KM |
| 8 Fairfield Road | £ 182,500 | 0.08 KM |
| 7 Fairfield Road | £ 280,000 | 0.08 KM |
| 29 Fairfield Road | £ 335,000 | 0.08 KM |
| 16 Fairfield Road | £ 390,000 | 0.08 KM |