Oakleigh Road North, London
By Barnard Marcus
£ 550,000
Reviews
2 out of 5 stars
Barnard Marcus says ..
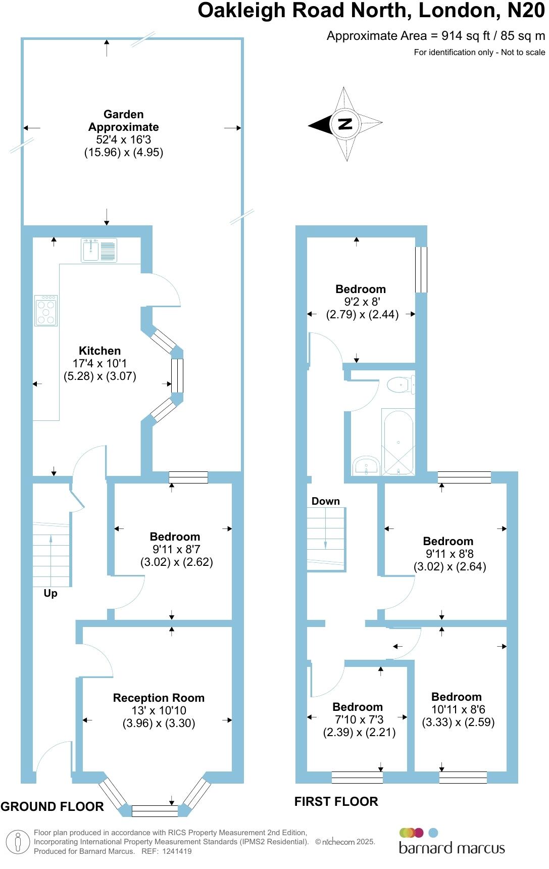
OPEN HOUSE - Saturday 15th February 10:00 - 12:00, contact us for details. A 3-bedroom (currently laid out as four bedrooms) terraced home located 0.9 miles from Oakleigh Park Station with local and popular schools just 0.2miles away from this residence.
Property Oracle says ..
This three-bedroom property in Barnet, London, presents a mixed bag. Its location is a strong point, with proximity to well-regarded schools and train stations. The convenience of public transport is a definite advantage for commuters. The property itself is habitable but shows its age. The kitchen and bathroom are functional but dated, needing some updating. Some minor repairs are also evident. While the garden provides some outdoor space, it’s relatively small and requires considerable work. The asking price of £550,000 is somewhat challenging to assess definitively due to a lack of detailed comparable sales data in the immediate vicinity. However, considering the location, size, and condition, the price might be slightly higher than the average for similar properties in the area. A potential buyer should factor in the cost of modernisation and garden improvements into their overall budget. Overall, this property offers a decent living space in a convenient location but requires investment to reach its full potential.
Therefore, we give this property 5 / 10. *Disclaimer: This is our option and does constitute a recommendation or financial advice. Do your own research. *
- Price
- 7
- Condition
- 6
- Location
- 7
- Land
- 3
- Bedrooms
- 3
- Bathrooms
- 1
- Sqft (est)
- 914.93
The heatmap indicates the level of crime in the area. The color of the heatmap indicates the crime severity and recency.
Metrics Year-on-Year
- Average area value
- 1,302,500.00 £Increased by 43.07 %
- Est sale value
- 494,062.20 £Decreased by 5.10 %
- Average area rental value
- 2,439.00 £/moIncreased by 4.59 %
- Est letting value
- 914.93 £/moUnchanged by 0.00 %
- Est rental Yield
- 2.25 %Decreased by 26.71 %
- Crime Rate
- 12.00 %Unchanged by 0.00 %
Agent Activity
Barnard Marcus created the listing.
Nearby Schools
| Name | Type | Ofsted | Distance |
|---|---|---|---|
| Oakleigh School & Acorn Assessment Centre | Community Special School | Outstanding | 0.24 KM |
| St Andrew The Apostle Greek Orthodox School | Free Schools | Good | 0.43 KM |
| St John'S Cofe Junior Mixed And Infant School | Voluntary Aided School | Outstanding | 0.86 KM |
| Sacred Heart Roman Catholic Primary School | Voluntary Aided School | Good | 0.97 KM |
| Friern Barnet School | Community School | Good | 0.97 KM |
Images
Nearby Streets
| Name | Average Price | Average Sqft | Distance |
|---|---|---|---|
| St Ninian's Court | £ 302,500 | 0 | 0.00 KM |
| Church Close | £ 0 | 0 | 0.00 KM |
| Leadbeaters Close | £ 0 | 0 | 0.00 KM |
| Queen's Parade Close | £ 0 | 0 | 0.00 KM |
| Lawrence Campe Close | £ 0 | 0 | 0.00 KM |
Nearby Transport
| Name | NLC | TLC | Distance |
|---|---|---|---|
| Oakleigh Park | 6020 | OKL | 1.80 KM |
| New Southgate | 6019 | NSG | 1.91 KM |
| New Barnet | 6018 | NBA | 3.23 KM |
| Bowes Park | 6027 | BOP | 4.45 KM |
| Alexandra Palace | 6025 | AAP | 5.01 KM |
Nearby Listings
| Address | Price | Type | Score | Distance |
|---|---|---|---|---|
| Porch Way, London, N20 | £ 450,000 | BUY | Unknown | 0.02 KM |
| Porch Way, Whetstone, N20 | £ 350,000 | BUY | 7 / 10 | 0.05 KM |
| London, N20 | £ 365,000 | BUY | 6 / 10 | 0.09 KM |
| Oakleigh Road North, London, N20, N20 | £ 335,000 | BUY | Unknown | 0.12 KM |
| Bawtry Road, Whetstone, N20 | £ 550,000 | BUY | 7 / 10 | 0.12 KM |
Nearby Properties
| Address | Price | Distance |
|---|---|---|
| 364 Oakleigh Road North | £ 482,500 | 0.00 KM |
| 318 Oakleigh Road North | £ 152,500 | 0.00 KM |
| 322 Oakleigh Road North | £ 320,000 | 0.00 KM |
| 358 Oakleigh Road North | £ 485,000 | 0.00 KM |
| 320a Oakleigh Road North | £ 59,000 | 0.00 KM |