Andrew Pearce says ..
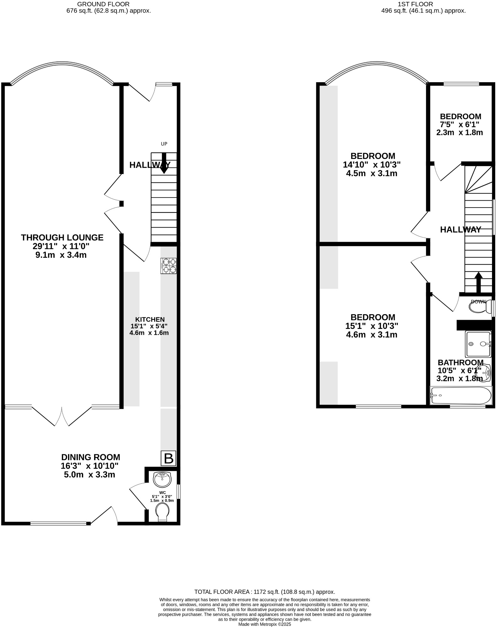
A very well presented, larger style three bedroom, extended end terrace family home, occupying a quiet residential location on a pleasant tree lined road.
Property Oracle says ..
This three-bedroom terraced house in Harrow is located on Lynton Road, in the Rayners Lane area. The property benefits from a good-sized rear garden, and is within proximity to several schools and transport links. While the property shows signs of age, it appears to be well-maintained and in reasonable condition. The list price of £575,000 is slightly above the average price for the area, however, given the size of the property and the inclusion of a garden, it may represent good value for money. More information on the property’s condition and the specifics of the garden would be helpful to provide a more precise assessment.
Therefore, we give this property 7 / 10. *Disclaimer: This is our option and does constitute a recommendation or financial advice. Do your own research. *
- Price
- 6
- Condition
- 7
- Location
- 7
- Land
- 8
- Bedrooms
- 3
- Bathrooms
- 1
- Sqft (est)
- 1,008.00
- Lot (est)
- 1,172.00
The heatmap indicates the level of crime in the area. The color of the heatmap indicates the crime severity and recency.
Metrics Year-on-Year
- Average area value
- 341,429.00 £Increased by 9.95 %
- Est sale value
- 315,504.00 £Decreased by 25.65 %
- Average area rental value
- 875.00 £/moDecreased by 18.53 %
- Est letting value
- 0.00 £/moDecreased by 100.00 %
- Est rental Yield
- 3.08 %Decreased by 25.78 %
- Crime Rate
- 3.00 %Unchanged by 0.00 %
Agent Activity
Andrew Pearce created the listing.
Nearby Schools
| Name | Type | Ofsted | Distance |
|---|---|---|---|
| Roxbourne Primary School | Community School | Good | 0.55 KM |
| Newton Farm Nursery, Infant And Junior School | Community School | Outstanding | 0.61 KM |
| Rooks Heath School | Academy Converter | Good | 0.94 KM |
| Harrow Independent College | Other Independent School | Good | 0.95 KM |
| Gesher School | Other Independent School | Outstanding | 0.98 KM |
Images
Nearby Streets
| Name | Average Price | Average Sqft | Distance |
|---|---|---|---|
| Lynton Road | £ 0 | 0 | 0.00 KM |
| Kenilworth Avenue | £ 0 | 0 | 0.00 KM |
| The Fairway | £ 708,333 | 0 | 0.00 KM |
| Newton Close | £ 282,500 | 0 | 0.00 KM |
| Essex Close | £ 0 | 0 | 0.00 KM |
Nearby Transport
| Name | NLC | TLC | Distance |
|---|---|---|---|
| Northolt Park | 1478 | NLT | 2.40 KM |
| South Ruislip | 3057 | SRU | 2.45 KM |
| Greenford | 3136 | GFD | 4.57 KM |
| Headstone Lane | 1434 | HDL | 4.71 KM |
| Harrow-On-The-Hill | 598 | HOH | 4.86 KM |
Nearby Listings
| Address | Price | Type | Score | Distance |
|---|---|---|---|---|
| Lynton Road, Harrow | £ 575,000 | BUY | 7 / 10 | 0.00 KM |
| Lynton Road, Harrow, Middlesex | £ 540,000 | BUY | 6 / 10 | 0.01 KM |
| Lynton Road, Rayners Lane, Harrow, HA2 | £ 675,000 | BUY | 6 / 10 | 0.03 KM |
| Lynton Road, Harrow | £ 750,000 | BUY | 7 / 10 | 0.13 KM |
| Lulworth Gardens, Harrow, Middlesex | £ 725,000 | BUY | Unknown | 0.14 KM |
Nearby Properties
| Address | Price | Distance |
|---|---|---|
| 55 Lynton Road | £ 470,000 | 0.02 KM |
| 11 Lynton Road | £ 278,500 | 0.02 KM |
| 53 Lynton Road | £ 176,950 | 0.02 KM |
| 119 Lynton Road | £ 435,000 | 0.02 KM |
| 33 Lynton Road | £ 470,000 | 0.02 KM |