Chancellors says ..
One bedroom coach house. Recently refurbished & benefits from allocated parking. Freehold and no onward chain
Property Oracle says ..
This maisonette is located in Cippenham Meadows, Slough, an area with good transport links and schools nearby. The property itself is modern and appears to be in excellent condition, freshly decorated and with new carpets. However, the plot size is zero, meaning there is no garden. The list price of £220,000 is below the average price for the area (£316,596), but it is important to note that the average sqft is significantly larger at 726 sqft compared to this property’s 595 sqft. Considering the condition and location, the price may represent reasonable value for money, but further investigation into comparable properties of similar size is recommended.
Therefore, we give this property 6 / 10. *Disclaimer: This is our option and does constitute a recommendation or financial advice. Do your own research. *
- Price
- 7
- Condition
- 10
- Location
- 7
- Land
- 1
- Bedrooms
- 1
- Bathrooms
- 1
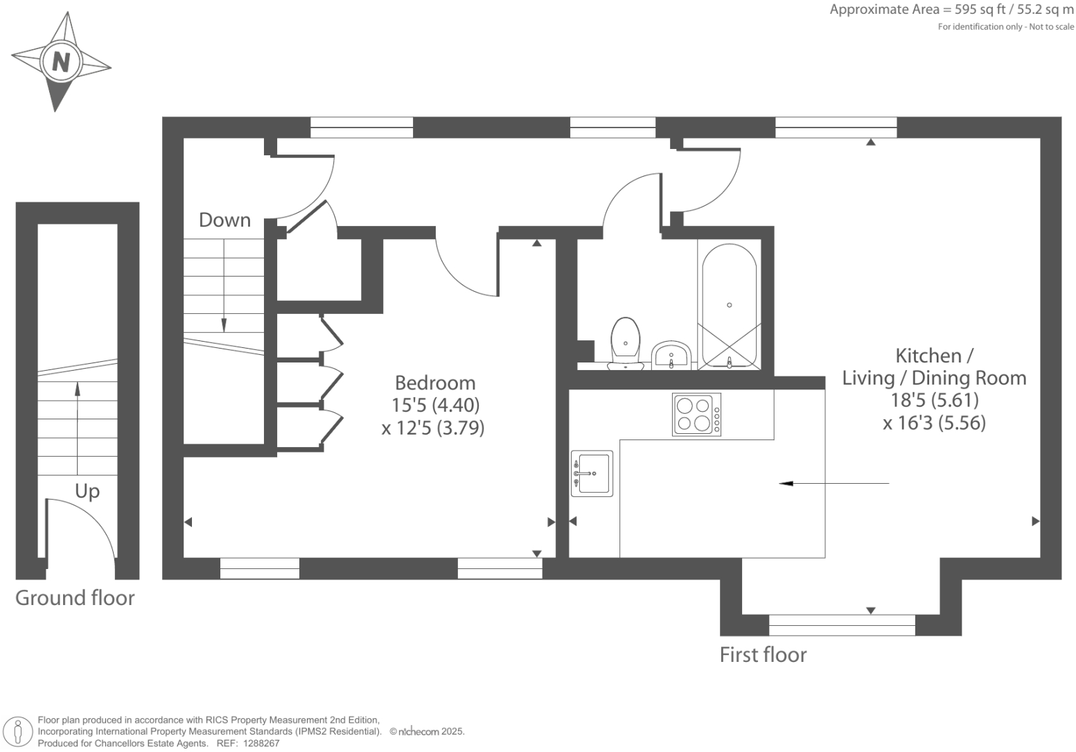
- Sqft (est)
- 595.00
The heatmap indicates the level of crime in the area. The color of the heatmap indicates the crime severity and recency.
Metrics Year-on-Year
- Average area value
- 304,967.00 £Decreased by 8.76 %
- Est sale value
- 275,485.00 £Increased by 1.76 %
- Average area rental value
- 1,680.00 £/moIncreased by 3.51 %
- Est letting value
- 1,190.00 £/moUnchanged by 0.00 %
- Est rental Yield
- 6.61 %Increased by 13.38 %
- Crime Rate
- 21.00 %Unchanged by 0.00 %
Agent Activity
Chancellors created the listing.
Nearby Schools
| Name | Type | Ofsted | Distance |
|---|---|---|---|
| Western House Academy | Academy Sponsor Led | Good | 0.36 KM |
| The Westgate School | Academy Converter | Outstanding | 0.97 KM |
| Al-Madani Girls School | Other Independent School | Good | 1.08 KM |
| Islamic Shakhsiyah Foundation | Other Independent School | 1.31 KM | |
| Cippenham School | Academy Converter | Good | 1.32 KM |
Images
Nearby Streets
| Name | Average Price | Average Sqft | Distance |
|---|---|---|---|
| Grimsby Road | £ 370,000 | 0 | 0.00 KM |
| Little Chapel Way | £ 0 | 0 | 0.00 KM |
| Roxwell Close | £ 0 | 0 | 0.00 KM |
| Milltington Close | £ 0 | 0 | 0.00 KM |
| Bentley Road | £ 0 | 0 | 0.00 KM |
Nearby Transport
| Name | NLC | TLC | Distance |
|---|---|---|---|
| Burnham | 3176 | BNM | 1.80 KM |
| Windsor And Eton Central | 3175 | WNC | 4.20 KM |
| Windsor And Eton Riverside | 5672 | WNR | 4.33 KM |
| Slough | 3172 | SLO | 4.96 KM |
| Taplow | 3151 | TAP | 5.18 KM |
Nearby Listings
| Address | Price | Type | Score | Distance |
|---|---|---|---|---|
| Slough, SL1, SL1 | £ 220,000 | BUY | 6 / 10 | 0.00 KM |
| Palace Close, Cippenham | £ 424,950 | BUY | Unknown | 0.05 KM |
| Bantry Road, Cippenham, Slough | £ 439,950 | BUY | 7 / 10 | 0.07 KM |
| Bantry Road, Cippenham, Slough | £ 400,000 | BUY | 6 / 10 | 0.07 KM |
| Bantry Road, Slough | £ 450,000 | BUY | 5 / 10 | 0.07 KM |
Nearby Properties
| Address | Price | Distance |
|---|---|---|
| 17c Palace Close | £ 382,000 | 0.05 KM |
| 12 Palace Close | £ 263,000 | 0.05 KM |
| 15a Palace Close | £ 220,000 | 0.05 KM |
| 15b Palace Close | £ 179,950 | 0.05 KM |
| 11 Palace Close | £ 300,000 | 0.05 KM |