Gascoigne Halman says ..
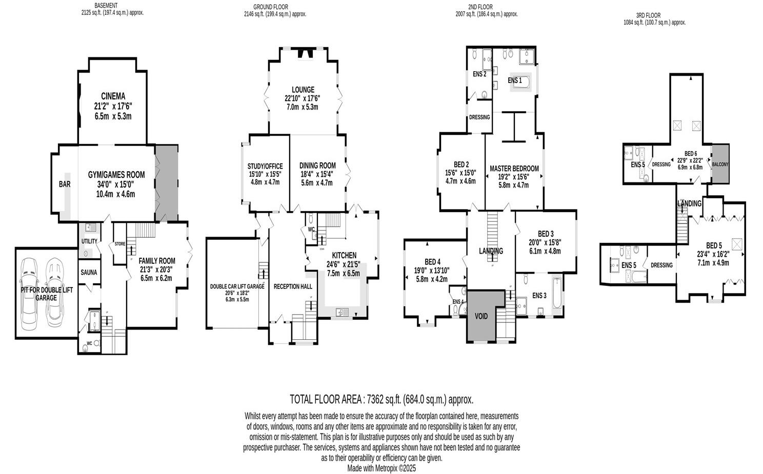
Built by award-winning Altin Homes of Altrincham, Danewood is a meticulously designed six-bedroom, six-bathroom residence spanning four floors. This exceptional home seamlessly combines luxurious contemporary living with distinctive architectural character, offering a rare opportunity to reside i...
Property Oracle says ..
The property is a large family home located in Bowdon, Altrincham. Bowdon is known for being a desirable and affluent area, with good schools and transport links. The proximity to highly-rated primary schools like Bowdon Cofe Primary School (rated Outstanding by Ofsted) is a significant advantage, making it attractive to families. The relatively close proximity to several train stations, including Hale and Altrincham, provides convenient access to Manchester and other areas. From the photographs, the property appears to be in excellent condition. It’s modern, well-maintained, and boasts high-quality fixtures and fittings throughout. The interior is spacious and well-designed, suggesting a recent build or extensive renovation. The external appearance is also impressive, with a well-maintained garden and landscaping. The property includes a substantial garden, providing ample outdoor space. The garden appears well-maintained and landscaped, adding to the overall appeal of the property. Considering the property’s size (7,362.52 sqft), location in Bowdon, excellent condition, and the inclusion of a garden, the list price of £3,500,000 requires further analysis against comparable properties. Unfortunately, the provided data on nearby properties lacks square footage information, making a direct price per square foot comparison impossible. However, given the property’s apparent high quality and desirable location, the price, while high, may be justifiable within the context of the luxury housing market in Bowdon. More detailed comparable data would be needed to make a definitive statement on the price’s reasonableness.
Therefore, we give this property 8 / 10. *Disclaimer: This is our option and does constitute a recommendation or financial advice. Do your own research. *
- Price
- 7
- Condition
- 10
- Location
- 10
- Land
- 8
- Bedrooms
- 6
- Bathrooms
- 6
- Sqft (est)
- 7,362.52
The heatmap indicates the level of crime in the area. The color of the heatmap indicates the crime severity and recency.
Metrics Year-on-Year
- Average area value
- 546,111.00 £Decreased by 52.29 %
- Est sale value
- 3,629,722.36 £Decreased by 13.20 %
- Average area rental value
- 4,629.00 £/moIncreased by 47.94 %
- Est letting value
- 29,450.08 £/moIncreased by 300.00 %
- Est rental Yield
- 10.17 %Increased by 210.06 %
- Crime Rate
- 0.00 %
Agent Activity
Gascoigne Halman created the listing.
Nearby Schools
| Name | Type | Ofsted | Distance |
|---|---|---|---|
| Bowdon Cofe Primary School | Voluntary Aided School | Outstanding | 0.30 KM |
| Altrincham Preparatory School | Other Independent School | 0.40 KM | |
| Altrincham Grammar School For Boys | Academy Converter | 0.66 KM | |
| Altrincham Grammar School For Girls | Academy Converter | 0.78 KM | |
| Bowdon Preparatory School For Girls | Other Independent School | 0.80 KM |
Images
Nearby Streets
| Name | Average Price | Average Sqft | Distance |
|---|---|---|---|
| Marlborough Road | £ 1,500,000 | 0 | 0.00 KM |
| Holly Grange | £ 0 | 0 | 0.00 KM |
| The Lawns | £ 0 | 0 | 0.00 KM |
| Primrose Bank | £ 0 | 0 | 0.00 KM |
| Sunny Bank Road | £ 699,950 | 0 | 0.00 KM |
Nearby Transport
| Name | NLC | TLC | Distance |
|---|---|---|---|
| Hale (Manchester) | 2845 | HAL | 1.14 KM |
| Altrincham | 2806 | ALT | 1.79 KM |
| Navigation Road | 2940 | NVR | 2.71 KM |
| Ashley | 2850 | ASY | 2.76 KM |
| Mobberley | 2849 | MOB | 5.73 KM |
Nearby Listings
| Address | Price | Type | Score | Distance |
|---|---|---|---|---|
| Bowdon, Altrincham | £ 3,500,000 | BUY | 8 / 10 | 0.00 KM |
| Nields Brow, Bowdon, WA14 | £ 3,200,000 | BUY | 7 / 10 | 0.02 KM |
| Nields Croft, Nields Brow, Bowdon, WA14 | £ 775,000 | BUY | 6 / 10 | 0.03 KM |
| Langham Road, Bowdon | £ 700,000 | BUY | 8 / 10 | 0.12 KM |
| South Downs Road, Bowdon | £ 1,200,000 | BUY | Unknown | 0.13 KM |
Nearby Properties
| Address | Price | Distance |
|---|---|---|
| Veryan | £ 451,050 | 0.12 KM |
| 3 Heald Close | £ 1,045,000 | 0.12 KM |
| 79 South Downs Road | £ 795,000 | 0.13 KM |
| 85 South Downs Road | £ 715,000 | 0.13 KM |
| 87 South Downs Road | £ 745,000 | 0.13 KM |