Cawston Lane Dunchurch, Rugby, CV22 6QE
By Fine & Country
£ 425,000
Reviews
4 out of 5 stars
Fine & Country says ..
Launch Event - Saturday 20th July - 1.30pm - 3.30pm, By Appointment Only, please call to book your viewing. A charming detached 3 bedroom house in the sought after village of Dunchurch with no onward chain
Property Oracle says ..
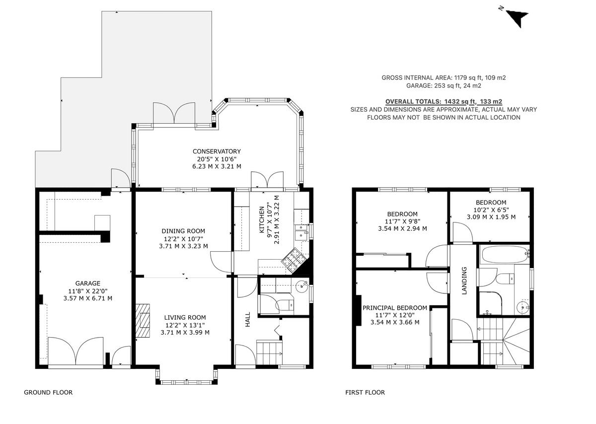
This property is located in the desirable village of Dunchurch, Warwickshire, and is within easy reach of excellent local schools such as Dunchurch Infant School and Dunchurch Boughton Cofe Junior School, both rated as Outstanding by Ofsted. The property itself is a 3-bedroom house with a well-maintained garden and a conservatory. The interior appears to be in good condition and has a traditional style with some modern updates. The kitchen is modern and well-equipped. While the provided plot size is 0.00 sqft, the images clearly show a substantial garden. The list price of £425,000 is slightly below the average price for the area (£468,092), and considering the property’s condition, location, and garden, it appears to be reasonably priced, although further information on the plot size would help to confirm this. The proximity to Rugby and its train station (Avanti West Coast) provides convenient access to other locations.
Therefore, we give this property 8 / 10. *Disclaimer: This is our option and does constitute a recommendation or financial advice. Do your own research. *
- Price
- 7
- Condition
- 8
- Location
- 9
- Land
- 8
- Bedrooms
- 3
- Bathrooms
- 1
- Sqft (est)
- 1,432.00
The heatmap indicates the level of crime in the area. The color of the heatmap indicates the crime severity and recency.
Metrics Year-on-Year
- Average area value
- 388,748.00 £Decreased by 20.77 %
- Est sale value
- 789,032.00 £Increased by 57.88 %
- Average area rental value
- 650.00 £/moDecreased by 36.89 %
- Est letting value
- 0.00 £/mo
- Est rental Yield
- 2.01 %Decreased by 20.24 %
- Crime Rate
- 16.00 %Unchanged by 0.00 %
Agent Activity
Fine & Country created the listing.
Nearby Schools
| Name | Type | Ofsted | Distance |
|---|---|---|---|
| Dunchurch Infant School | Foundation School | Outstanding | 0.59 KM |
| Dunchurch Boughton Cofe (Voluntary Aided) Junior School | Voluntary Aided School | Outstanding | 0.60 KM |
| Rugby High School | Academy Converter | 1.32 KM | |
| Bilton Grange School | Other Independent School | 1.33 KM | |
| Bilton Cofe Junior School | Voluntary Controlled School | Good | 1.54 KM |
Images
Nearby Streets
| Name | Average Price | Average Sqft | Distance |
|---|---|---|---|
| The Square | £ 0 | 0 | 0.00 KM |
| Homefield Lane | £ 0 | 0 | 0.00 KM |
| Arden Close | £ 240,000 | 0 | 0.00 KM |
| Dunchurch Road | £ 0 | 0 | 0.00 KM |
| Lime Tree Avenue | £ 0 | 0 | 0.00 KM |
Nearby Transport
| Name | NLC | TLC | Distance |
|---|---|---|---|
| Rugby | 1087 | RUG | 6.13 KM |
Nearby Listings
| Address | Price | Type | Score | Distance |
|---|---|---|---|---|
| Cawston Lane Dunchurch, Rugby, CV22 6QE | £ 425,000 | BUY | 8 / 10 | 0.00 KM |
| Cox Crescent, Dunchurch, Rugby | £ 725,000 | BUY | 7 / 10 | 0.07 KM |
| Cawston Lane, Dunchurch, Rugby | £ 450,000 | BUY | 7 / 10 | 0.09 KM |
| Cawston Lane, Dunchurch, Rugby | £ 345,000 | BUY | 8 / 10 | 0.09 KM |
| Cawston Lane, Dunchurch, Rugby | £ 625,000 | BUY | 7 / 10 | 0.09 KM |
Nearby Properties
| Address | Price | Distance |
|---|---|---|
| 8 Cox Crescent | £ 327,500 | 0.07 KM |
| 10 Cox Crescent | £ 375,000 | 0.07 KM |
| 62 Cawston Lane | £ 530,000 | 0.09 KM |
| 2 Cawston Lane | £ 89,000 | 0.09 KM |
| 10 Cawston Lane | £ 855,000 | 0.09 KM |