Southgate Estates says ..
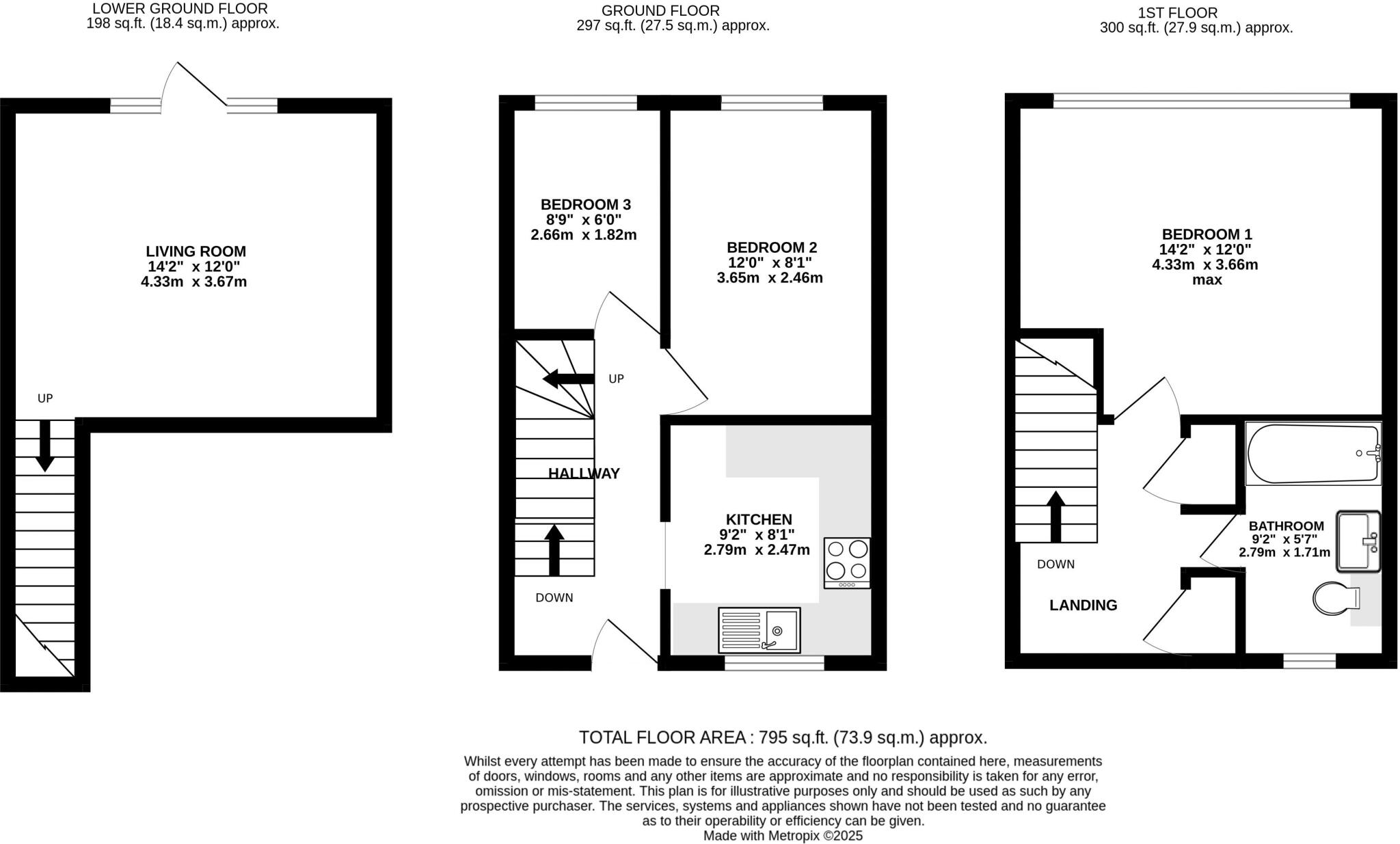
A three bedroom family home located in the popular area of Exwick. The property enjoys far-reaching views to the rear, and also features an enclosed garden, along with an off-road parking space. The internal accommodation is split over three floors and briefly consists of an entrance hallway with...
Property Oracle says ..
The property is a 3-bedroom, 1-bathroom terraced house located in Exwick, Exeter, Devon. It has a list price of £220,000 and is 795 sqft. The property benefits from a garden, as shown in the provided images. The kitchen and bathroom appear to be recently updated and in good condition. The overall condition of the property seems to be good, with no obvious signs of disrepair or the need for major renovations. The average house price in the area is £270,907, with an average price per sqft of £293. Considering the property’s size (795 sqft), a rough estimate of its value based on average price per sqft would be approximately £232,785. However, this is just an estimate and doesn’t take into account the specific condition of the property, or the fact that it has a garden. The list price of £220,000 is slightly below the estimated value based on average price per sqft, and considering the seemingly good condition and presence of a garden, it appears to be a reasonable price. The location is positive; Exwick Heights Primary School is within a short distance (0.49km), and other schools are within a 2km radius. Several train stations are also within reasonable proximity, offering convenient transportation links.
Therefore, we give this property 7 / 10. *Disclaimer: This is our option and does constitute a recommendation or financial advice. Do your own research. *
- Price
- 8
- Condition
- 8
- Location
- 7
- Land
- 7
- Bedrooms
- 3
- Bathrooms
- 1
- Sqft (est)
- 795.00
The heatmap indicates the level of crime in the area. The color of the heatmap indicates the crime severity and recency.
Metrics Year-on-Year
- Average area value
- 237,000.00 £Decreased by 16.10 %
- Est sale value
- 283,020.00 £Increased by 5.01 %
- Average area rental value
- 1,204.00 £/moIncreased by 6.36 %
- Est letting value
- 795.00 £/moUnchanged by 0.00 %
- Est rental Yield
- 6.10 %Increased by 26.82 %
- Crime Rate
- 7.00 %Unchanged by 0.00 %
Agent Activity
Southgate Estates created the listing.
Nearby Schools
| Name | Type | Ofsted | Distance |
|---|---|---|---|
| Exwick Heights Primary School | Academy Converter | 0.49 KM | |
| Redhills Primary School | Academy Converter | Good | 1.51 KM |
| Avanti Hall School | Free Schools | 1.63 KM | |
| Torlands Academy | Academy Alternative Provision Converter | 1.97 KM | |
| Exeter College | Further Education | Outstanding | 2.10 KM |
Images
Nearby Streets
| Name | Average Price | Average Sqft | Distance |
|---|---|---|---|
| Gibbs Meadow | £ 0 | 0 | 0.00 KM |
| Chester Close | £ 0 | 0 | 0.00 KM |
| St Andrew's Road | £ 0 | 0 | 0.00 KM |
| Cleve Road | £ 300,000 | 0 | 0.00 KM |
| Opal One | £ 0 | 0 | 0.00 KM |
Nearby Transport
| Name | NLC | TLC | Distance |
|---|---|---|---|
| Exeter St David'S | 3410 | EXD | 1.56 KM |
| Exeter St Thomas | 3414 | EXT | 2.69 KM |
| Exeter Central | 5755 | EXC | 2.71 KM |
| St James Park (Exeter) | 5751 | SJP | 3.85 KM |
| Polsloe Bridge | 3422 | POL | 6.06 KM |
Nearby Listings
| Address | Price | Type | Score | Distance |
|---|---|---|---|---|
| Farm Hill, Exeter | £ 220,000 | BUY | 7 / 10 | 0.00 KM |
| Farm Hill, Exeter | £ 160,000 | BUY | 5 / 10 | 0.01 KM |
| Exeter | £ 190,000 | BUY | 7 / 10 | 0.01 KM |
| Farm Hill, Exwick, EX4 | £ 200,000 | BUY | 7 / 10 | 0.03 KM |
| Farm Hill, Exwick, EX4 | £ 230,000 | BUY | 7 / 10 | 0.03 KM |
Nearby Properties
| Address | Price | Distance |
|---|---|---|
| 234 Farm Hill | £ 182,500 | 0.04 KM |
| 222 Farm Hill | £ 165,000 | 0.04 KM |
| 185 Farm Hill | £ 138,000 | 0.04 KM |
| 233 Farm Hill | £ 195,000 | 0.04 KM |
| 212 Farm Hill | £ 156,000 | 0.04 KM |