Dalwood, Axminster, Devon
HU

Dalwood, Axminster, Devon

By Humberts

£ 975,000

Reviews

3 out of 5 stars

Humberts says ..

A superb and beautifully presented barn conversion set amongst glorious gardens and grounds with a paddock and useful outbuilding

Property Oracle says ..

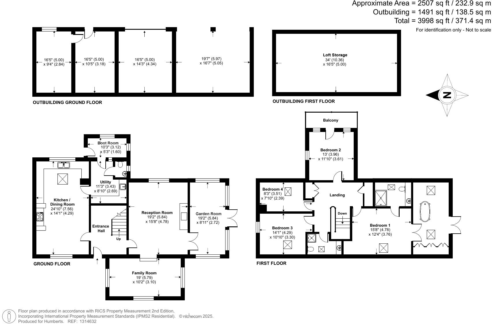
This barn conversion, located in Dalwood, Axminster, offers a blend of rural charm and modern living. The property features four bedrooms and two bathrooms, with a generous square footage of 3,997.72. The interior showcases a mix of traditional and modern elements, with exposed beams and updated fixtures. The property is in excellent condition. The property is situated in a rural location, approximately 7.03 KM from Axminster train station. The surrounding area is primarily residential, with a mix of detached and terraced houses. The property benefits from a large, well-maintained garden, providing ample outdoor space. Overall, this property is well-suited for those seeking a spacious, well-maintained home in a tranquil rural setting.

Therefore, we give this property 7 / 10. *Disclaimer: This is our option and does constitute a recommendation or financial advice. Do your own research. *

Price
6
Condition
9
Location
7
Land
9
Bedrooms
4
Bathrooms
2
Sqft (est)
3,997.72

The heatmap indicates the level of crime in the area. The color of the heatmap indicates the crime severity and recency.

Metrics Year-on-Year

Average area value
579,091.00 £
Increased by 13.92 %
from 508,333.00 £
Est sale value
1,531,126.76 £
Decreased by 34.42 %
from 2,334,668.48 £
Average area rental value
964.00 £/mo
Decreased by 19.53 %
from 1,198.00 £/mo
Est letting value
0.00 £/mo
Decreased by 100.00 %
from 3,997.72 £/mo
Est rental Yield
2.00 %
Decreased by 29.33 %
from 2.83 %
Crime Rate
0.00 %
from 0.00 %

Agent Activity

  • Humberts created the listing.

Nearby Schools

NameTypeOfstedDistance
Shute Community Primary SchoolCommunity SchoolGood3.09 KM
Stockland Church Of England Primary AcademyAcademy ConverterRequires improvement3.95 KM
Kilmington Primary SchoolCommunity SchoolOutstanding4.42 KM
Membury Primary AcademyAcademy ConverterGood4.70 KM
Colyton Primary AcademyAcademy Sponsor Led6.75 KM

Images

Picture No. 26 Picture No. 37 Picture No. 35 Picture No. 36 Picture No. 38 Picture No. 33 Picture No. 22 Picture No. 30 Picture No. 31 Picture No. 29 Picture No. 16 Picture No. 18 Picture No. 24 Picture No. 17 Picture No. 34 Picture No. 20 Picture No. 23 Picture No. 25 Picture No. 21 Picture No. 32 Picture No. 28 Picture No. 27 Picture No. 39 Picture No. 19

Nearby Streets

NameAverage PriceAverage SqftDistance
Ham Road £ 000.00 KM
Loughwood Lane £ 000.00 KM
Green Lane £ 000.00 KM

Nearby Transport

NameNLCTLCDistance
Axminster5714AXM7.03 KM

Nearby Listings

AddressPriceTypeScoreDistance
Dalwood, Axminster, Devon £ 975,000BUY7 / 100.00 KM
Town Court, Dalwood, Axminster, Devon, EX13 £ 625,000BUYUnknown0.13 KM
Hillview, Dalwood, Axminster £ 350,000BUY7 / 100.35 KM
Lower Lane, Dalwood £ 470,000BUYUnknown0.49 KM
Dalwood, Axminster, Devon, EX13 £ 550,000BUY7 / 100.54 KM

Nearby Properties

AddressPriceDistance
4 Town Court £ 290,0000.14 KM
2 Town Court £ 350,0000.14 KM
5 Town Court £ 355,0000.14 KM
1 Town Court £ 300,0000.14 KM
3 Danes Hill £ 149,9500.18 KM