A
High Street, Kinver, Staffordshire, DY7
By A P Morgan Estate Agents
£ 225,000
Reviews
3 out of 5 stars
A P Morgan Estate Agents says ..
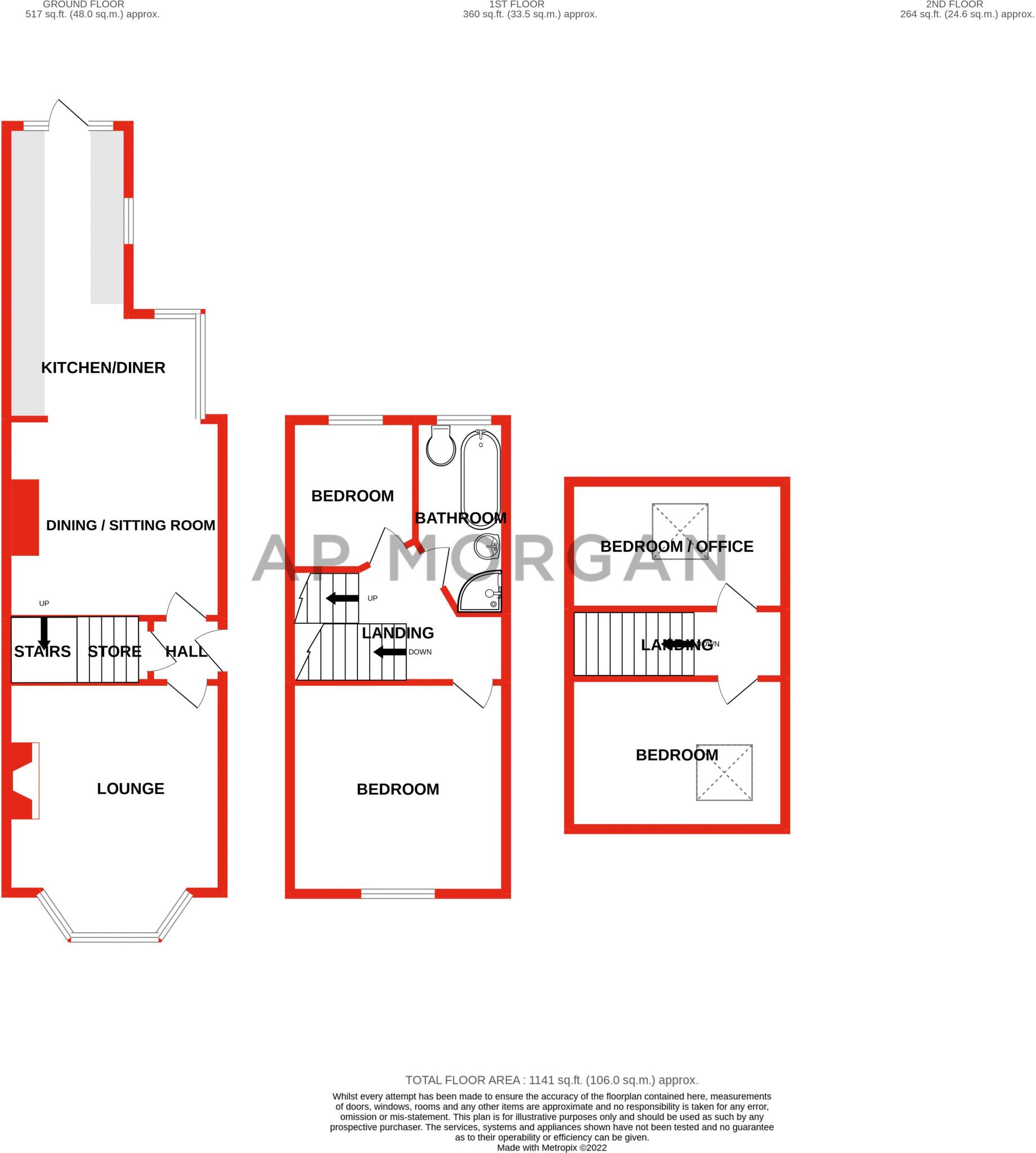
A spacious, four bedroom, mid terrace period property, situated on High street in Kinver, offering a convenient setting.
Property Oracle says ..
Therefore, we give this property 6 / 10. *Disclaimer: This is our option and does constitute a recommendation or financial advice. Do your own research. *
- Price
- 9
- Condition
- 7
- Location
- 7
- Land
- 3
- Bedrooms
- 4
- Bathrooms
- 1
- Sqft (est)
- 1,141.00
The heatmap indicates the level of crime in the area. The color of the heatmap indicates the crime severity and recency.
Metrics Year-on-Year
- Average area value
- 514,147.00 £Increased by 9.27 %
- Est sale value
- 403,914.00 £Decreased by 30.31 %
- Average area rental value
- 1,052.00 £/moDecreased by 29.30 %
- Est letting value
- 0.00 £/moDecreased by 100.00 %
- Est rental Yield
- 2.46 %Decreased by 35.09 %
- Crime Rate
- 47.00 %Unchanged by 0.00 %
from 470,536.00 £
from 579,628.00 £
from 1,488.00 £/mo
from 1,141.00 £/mo
from 3.79 %
from 47.00 %
Agent Activity
A P Morgan Estate Agents created the listing.
Nearby Schools
| Name | Type | Ofsted | Distance |
|---|---|---|---|
| Foley Infant School Academy | Academy Converter | 0.71 KM | |
| Kinver High School And Sixth Form | Academy Sponsor Led | Requires improvement | 0.75 KM |
| Brindley Heath Junior School Academy | Academy Converter | 0.99 KM | |
| Cookley Sebright Primary School | Voluntary Controlled School | Requires improvement | 3.13 KM |
| Wolverley Cofe Secondary School | Voluntary Controlled School | Good | 4.48 KM |
Images
Nearby Streets
| Name | Average Price | Average Sqft | Distance |
|---|---|---|---|
| The Burgesses | £ 425,000 | 0 | 0.00 KM |
| The Cliff | £ 420,000 | 0 | 0.00 KM |
| Vicarage Drive | £ 0 | 0 | 0.00 KM |
| White Harte Caravan Park | £ 0 | 0 | 0.00 KM |
| White Harte Caravan Site | £ 150,000 | 0 | 0.00 KM |
Nearby Transport
| Name | NLC | TLC | Distance |
|---|---|---|---|
| Kidderminster | 4581 | KID | 7.11 KM |
| Blakedown | 4574 | BKD | 7.24 KM |
| Hagley | 4577 | HAG | 9.40 KM |
| Stourbridge Town | 4643 | SBT | 9.53 KM |
Nearby Listings
| Address | Price | Type | Score | Distance |
|---|---|---|---|---|
| High Street, Kinver, Staffordshire, DY7 | £ 225,000 | BUY | 6 / 10 | 0.00 KM |
| High Street, Kinver, Stourbridge | £ 250,000 | BUY | Unknown | 0.05 KM |
| High Street, Kinver, Stourbridge, West Midlands, DY7 6HF | £ 415,000 | BUY | 8 / 10 | 0.10 KM |
| The Acre, Kinver | £ 259,950 | BUY | 5 / 10 | 0.12 KM |
| High Street, Kinver, DY7 6HG | £ 525,000 | BUY | Unknown | 0.14 KM |
Nearby Properties
| Address | Price | Distance |
|---|---|---|
| Birmingham House | £ 240,000 | 0.06 KM |
| Clifton House | £ 64,000 | 0.06 KM |
| 41a High Street | £ 320,000 | 0.10 KM |
| 124 High Street | £ 189,950 | 0.12 KM |
| 128 High Street | £ 250,000 | 0.12 KM |