Strathyre Avenue, Norbury, London, SW16
By Foxtons
£ 575,000
Reviews
3 out of 5 stars
Foxtons says ..
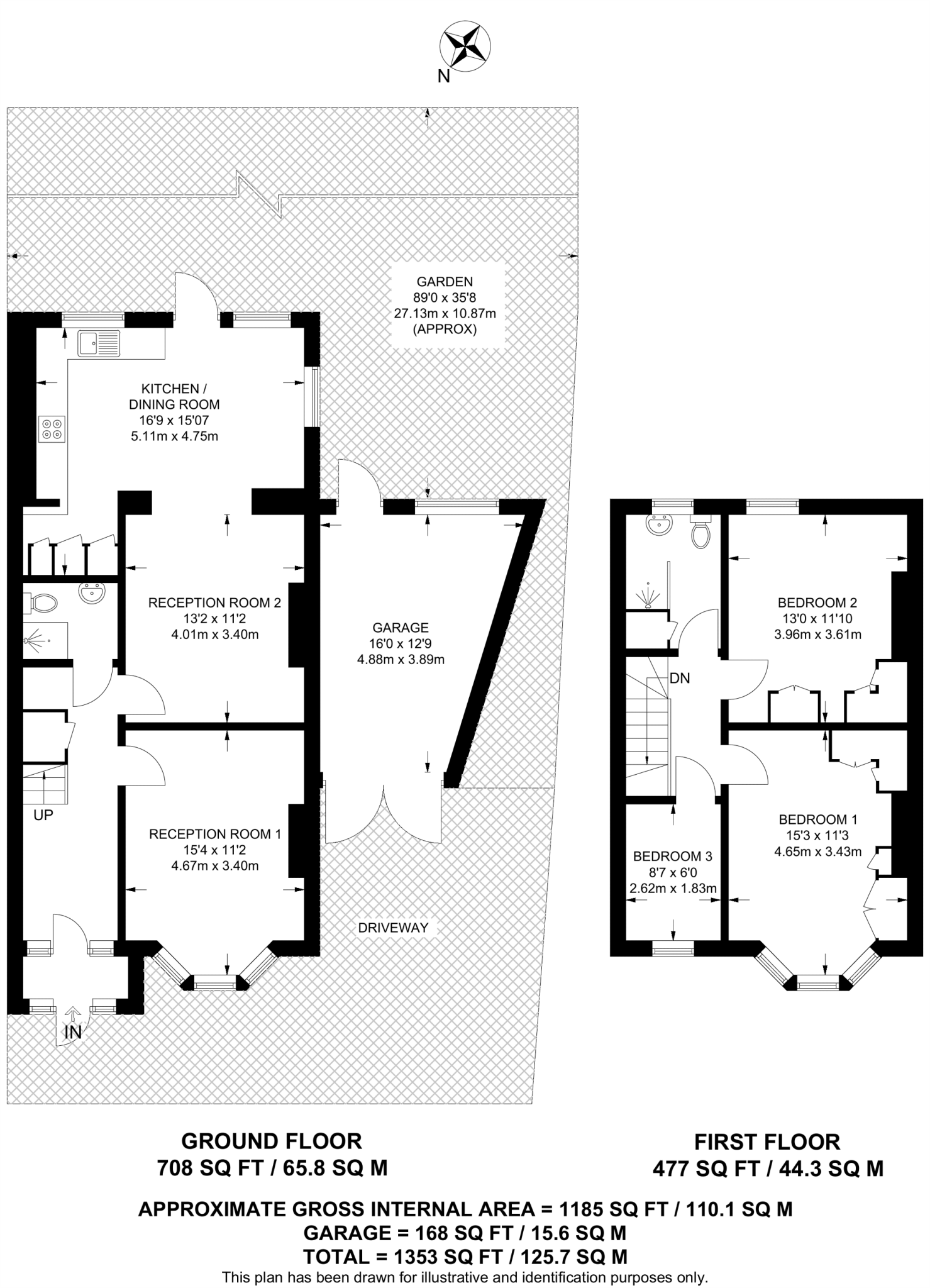
Offering ample living throughout, this wonderful 3 bedroom semi-detached house boast bright and spacious front reception room, separate dining room with modern kitchen, 2 bathrooms and a large well-maintained garden.
Property Oracle says ..
This is a three-bedroom end-of-terrace house located on Strathyre Avenue in Norbury, London. The property is in a suburban area with good access to transportation and local amenities. The property is located 1.38 KM from Norbury station and 1.43 KM from Thornton Heath station. The property is also located near several schools, including St James The Great Rc Primary And Nursery School which is rated as outstanding. The property has a large garden, which is a desirable feature for many buyers. The garden is well-maintained and provides plenty of space for outdoor activities. The property appears to be in reasonable condition, but it could benefit from some modernisation. The kitchen and bathrooms appear dated, and some of the rooms could use redecorating. The property is listed for sale at £575,000, which is slightly above the average price for similar properties in the area. The average price for properties on Strathyre Avenue is £520,556. However, the property has a large garden and is in reasonable condition, which justifies the higher price.
Therefore, we give this property 6 / 10. *Disclaimer: This is our option and does constitute a recommendation or financial advice. Do your own research. *
- Price
- 7
- Condition
- 5
- Location
- 7
- Land
- 8
- Bedrooms
- 3
- Bathrooms
- 2
- Sqft (est)
- 1,185.11
The heatmap indicates the level of crime in the area. The color of the heatmap indicates the crime severity and recency.
Metrics Year-on-Year
- Average area value
- 520,556.00 £Increased by 29.09 %
- Est sale value
- 511,967.52 £Increased by 6.14 %
- Average area rental value
- 1,851.00 £/moIncreased by 6.14 %
- Est letting value
- 1,185.11 £/moUnchanged by 0.00 %
- Est rental Yield
- 4.27 %Decreased by 17.73 %
- Crime Rate
- 4.00 %Unchanged by 0.00 %
Agent Activity
Foxtons created the listing.
Nearby Schools
| Name | Type | Ofsted | Distance |
|---|---|---|---|
| Winterbourne Children'S Centre | Children's Centre Linked Site | 0.53 KM | |
| Winterbourne Nursery And Infants' School | Community School | Requires improvement | 0.53 KM |
| Winterbourne Junior Girls' School | Community School | Good | 0.53 KM |
| Winterbourne Boys' Academy | Academy Sponsor Led | Good | 0.53 KM |
| St James The Great Rc Primary And Nursery School | Academy Converter | Outstanding | 0.80 KM |
Images
Nearby Streets
| Name | Average Price | Average Sqft | Distance |
|---|---|---|---|
| St Christopher's Gardens | £ 0 | 0 | 0.00 KM |
| Oaklands Avenue | £ 352,500 | 0 | 0.00 KM |
| Buckingham Gardens | £ 0 | 0 | 0.00 KM |
| Manor Farm Road | £ 550,000 | 0 | 0.00 KM |
| Malvern Road | £ 0 | 0 | 0.00 KM |
Nearby Transport
| Name | NLC | TLC | Distance |
|---|---|---|---|
| Norbury | 5428 | NRB | 1.38 KM |
| Thornton Heath | 5388 | TTH | 1.43 KM |
| Selhurst | 5434 | SRS | 2.95 KM |
| West Croydon | 5411 | WCY | 2.98 KM |
| Streatham Common | 5384 | SRC | 3.12 KM |
Nearby Listings
| Address | Price | Type | Score | Distance |
|---|---|---|---|---|
| Strathyre Avenue, Norbury, London, SW16 | £ 675,000 | BUY | 6 / 10 | 0.00 KM |
| Strathyre Avenue, Norbury, London, SW16 | £ 575,000 | BUY | 6 / 10 | 0.00 KM |
| Strathyre Avenue, Norbury, London, SW16 | £ 575,000 | BUY | Unknown | 0.00 KM |
| Strathyre Avenue, LONDON, London, SW16 | £ 600,000 | BUY | 7 / 10 | 0.04 KM |
| Strathyre Avenue, Norbury, SW16 | £ 650,000 | BUY | 7 / 10 | 0.07 KM |
Nearby Properties
| Address | Price | Distance |
|---|---|---|
| 116 Strathyre Avenue | £ 265,000 | 0.02 KM |
| 102 Strathyre Avenue | £ 273,000 | 0.02 KM |
| 122 Strathyre Avenue | £ 390,000 | 0.02 KM |
| 172 Strathyre Avenue | £ 650,000 | 0.02 KM |
| 182 Strathyre Avenue | £ 350,000 | 0.02 KM |