Plot 8, The Pastures, Medburn, Northumberland
By Finest Properties
£ 925,000
Reviews
3 out of 5 stars
Finest Properties says ..
An exceptional contemporary home on a generous plot, built to a high specification in the desirable hamlet of Medburn
Property Oracle says ..
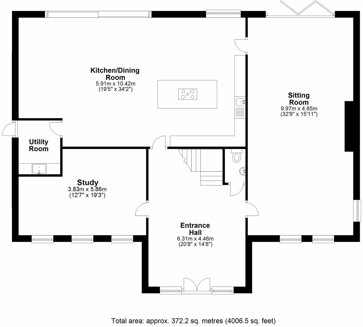
The property is a modern 5-bedroom, 4-bathroom house in Medburn, Northumberland. The images suggest it is in excellent condition and has a good-sized garden. The location is seemingly desirable, with proximity to schools and a train station, although further information on local amenities and school quality is needed. The list price of £925,000 requires further analysis and comparison with similar properties to ascertain its reasonableness. More complete data on nearby properties, including sqft, is necessary for a thorough valuation.
Therefore, we give this property 7 / 10. *Disclaimer: This is our option and does constitute a recommendation or financial advice. Do your own research. *
- Price
- 6
- Condition
- 9
- Location
- 7
- Land
- 7
- Bedrooms
- 5
- Bathrooms
- 4
- Sqft (est)
- 1,726.22
- Lot (est)
- 4,006.50
The heatmap indicates the level of crime in the area. The color of the heatmap indicates the crime severity and recency.
Metrics Year-on-Year
- Average area value
- 625,000.00 £Increased by 9.15 %
- Est sale value
- 1,142,757.64 £Increased by 24.67 %
- Average area rental value
- 1,525.00 £/moIncreased by 1.26 %
- Est letting value
- 1,726.22 £/moUnchanged by 0.00 %
- Est rental Yield
- 2.93 %Decreased by 7.28 %
- Crime Rate
- 30.00 %Unchanged by 0.00 %
Agent Activity
Finest Properties created the listing.
Nearby Schools
| Name | Type | Ofsted | Distance |
|---|---|---|---|
| Darras Hall Primary School | Academy Converter | 3.37 KM | |
| Heddon-On-The-Wall, St Andrew'S Church Of England Primary School | Academy Converter | 3.69 KM | |
| Throckley Primary School | Foundation School | Outstanding | 4.97 KM |
| Ponteland Primary School | Academy Converter | 5.50 KM | |
| Ponteland Children'S Centre | Children's Centre Linked Site | 5.50 KM |
Images
Nearby Streets
| Name | Average Price | Average Sqft | Distance |
|---|---|---|---|
| Dalton Close | £ 0 | 0 | 0.00 KM |
| South Dissington Farm Cottages | £ 0 | 0 | 0.00 KM |
| The Crescent | £ 495,000 | 0 | 0.00 KM |
Nearby Transport
| Name | NLC | TLC | Distance |
|---|---|---|---|
| Wylam | 7514 | WYM | 6.55 KM |
Nearby Listings
| Address | Price | Type | Score | Distance |
|---|---|---|---|---|
| Plot 8, The Pastures, Medburn, Northumberland | £ 925,000 | BUY | 7 / 10 | 0.00 KM |
| Plot 3, The Pastures, Medburn, Northumberland | £ 925,000 | BUY | 8 / 10 | 0.00 KM |
| Plot 9, The Pastures, Medburn, Newcastle Upon Tyne | £ 925,000 | BUY | 7 / 10 | 0.00 KM |
| The Avenue,Medburn,Newcastle Upon Tyne,NE20 0JD | £ 1,395,000 | BUY | 8 / 10 | 0.02 KM |
| Rutland, The Avenue, Medburn, Newcastle upon Tyne | £ 2,000,000 | BUY | 6 / 10 | 0.02 KM |
Nearby Properties
| Address | Price | Distance |
|---|---|---|
| Beechwood | £ 175,000 | 0.03 KM |
| Medburn Lodge | £ 680,000 | 0.03 KM |
| Delaware House | £ 625,000 | 0.04 KM |
| Windyridge | £ 74,500 | 0.06 KM |
| Alderview | £ 695,000 | 0.06 KM |