Langford Russell says ..
Langford Russell are exceptionally excited to welcome this three-bedroom extended semi-detached family home to the sales market. Located on the popular “High Firs” development within great proximity for the Swanley mainline train station, shops, and within a short distance...
Property Oracle says ..
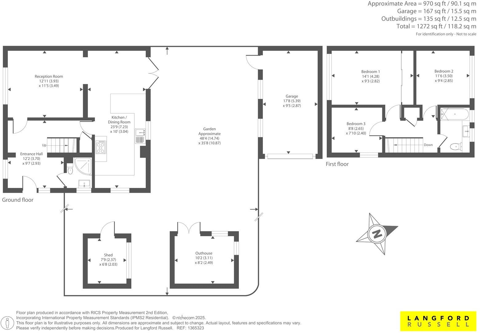
This is a well-presented three-bedroom semi-detached house located on Cranleigh Drive in Swanley. The property benefits from its proximity to local schools and transport links, making it an attractive option for families and commuters. The interior is in good condition, with modern fixtures and fittings throughout. The property also boasts a decent-sized garden with a patio area and a shed. Overall, this property offers a comfortable and convenient living space in a desirable location.
Therefore, we give this property 7 / 10. *Disclaimer: This is our option and does constitute a recommendation or financial advice. Do your own research. *
- Price
- 7
- Condition
- 8
- Location
- 7
- Land
- 7
- Bedrooms
- 3
- Bathrooms
- 2
- Sqft (est)
- 1,272.29
- Lot (est)
- 5,361.93
The heatmap indicates the level of crime in the area. The color of the heatmap indicates the crime severity and recency.
Metrics Year-on-Year
- Average area value
- 1,145,000.00 £Increased by 51.85 %
- Est sale value
- 1,015,287.42 £Increased by 52.58 %
- Average area rental value
- 1,717.00 £/moDecreased by 6.07 %
- Est letting value
- 1,272.29 £/moUnchanged by 0.00 %
- Est rental Yield
- 1.80 %Decreased by 38.14 %
- Crime Rate
- 3.00 %Unchanged by 0.00 %
Agent Activity
Langford Russell created the listing.
Nearby Schools
| Name | Type | Ofsted | Distance |
|---|---|---|---|
| High Firs Primary School | Community School | Good | 0.10 KM |
| Supajam Education In Music And Media | Special Post 16 Institution | Good | 0.78 KM |
| Orchards Academy | Academy Converter | Good | 0.78 KM |
| St Bartholomew'S Catholic Primary School, Swanley | Voluntary Aided School | Good | 0.85 KM |
| St Mary'S Church Of England Voluntary Aided Primary School | Voluntary Aided School | Good | 0.87 KM |
Images
Nearby Streets
| Name | Average Price | Average Sqft | Distance |
|---|---|---|---|
| Montague Place | £ 425,000 | 0 | 0.00 KM |
| Pemberton Gardens | £ 400,000 | 0 | 0.00 KM |
| Sycamore Drive | £ 0 | 0 | 0.00 KM |
| Alexandra Close | £ 350,000 | 0 | 0.00 KM |
| Pear Tree Close | £ 0 | 0 | 0.00 KM |
Nearby Transport
| Name | NLC | TLC | Distance |
|---|---|---|---|
| Swanley | 5075 | SAY | 0.66 KM |
| Eynsford | 5065 | EYN | 4.55 KM |
| Bexley | 5093 | BXY | 6.22 KM |
| Crayford | 5100 | CRY | 6.38 KM |
| Shoreham (Kent) | 5074 | SEH | 6.74 KM |
Nearby Listings
| Address | Price | Type | Score | Distance |
|---|---|---|---|---|
| Cranleigh Drive, Swanley | £ 499,995 | BUY | 7 / 10 | 0.00 KM |
| Cranleigh Drive, Swanley, Kent, BR8 | £ 475,000 | BUY | Unknown | 0.01 KM |
| Cranleigh Drive, Swanley, Kent, BR8 | £ 375,000 | BUY | Unknown | 0.05 KM |
| Cranleigh Drive, Swanley, Kent, BR8 | £ 450,000 | BUY | 7 / 10 | 0.09 KM |
| Cranleigh Drive, Swanley, Kent, BR8 | £ 450,000 | BUY | 7 / 10 | 0.10 KM |
Nearby Properties
| Address | Price | Distance |
|---|---|---|
| 44 Cranleigh Drive | £ 305,000 | 0.04 KM |
| 42 Cranleigh Drive | £ 225,000 | 0.04 KM |
| 76 Cranleigh Drive | £ 345,000 | 0.04 KM |
| 20 Cranleigh Drive | £ 415,000 | 0.04 KM |
| 70 Cranleigh Drive | £ 450,000 | 0.04 KM |