FO
Melrose Avenue, Willesden Green, London, NW2
By Foxtons
£ 725,000
Reviews
3 out of 5 stars
Foxtons says ..
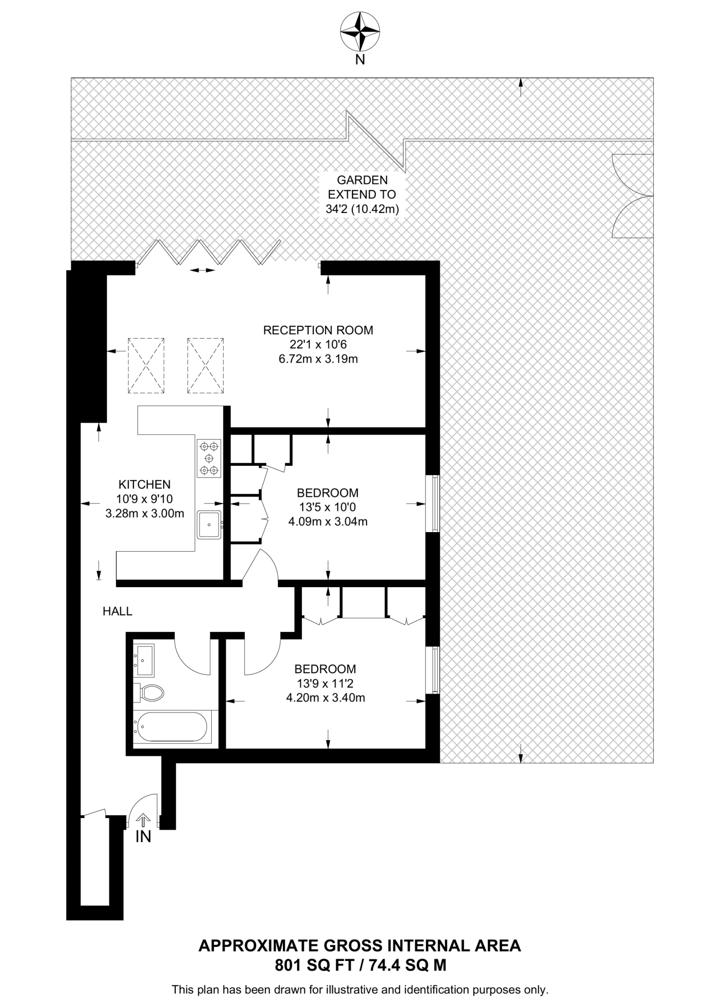
Located within a superb period conversion, this fabulous extended 2 bedroom ground floor flat features a stunning private garden, open plan living and a fantastic location on a sought after residential address.
Property Oracle says ..
Therefore, we give this property 6 / 10. *Disclaimer: This is our option and does constitute a recommendation or financial advice. Do your own research. *
- Price
- 4
- Condition
- 8
- Location
- 8
- Land
- 7
- Bedrooms
- 2
- Bathrooms
- 1
- Sqft (est)
- 800.83
The heatmap indicates the level of crime in the area. The color of the heatmap indicates the crime severity and recency.
Metrics Year-on-Year
- Average area value
- 601,250.00 £Decreased by 12.11 %
- Est sale value
- 334,746.94 £Decreased by 27.18 %
- Average area rental value
- 2,507.00 £/moIncreased by 10.78 %
- Est letting value
- 800.83 £/moUnchanged by 0.00 %
- Est rental Yield
- 5.00 %Increased by 25.94 %
- Crime Rate
- 5.00 %Unchanged by 0.00 %
from 684,061.00 £
from 459,676.42 £
from 2,263.00 £/mo
from 800.83 £/mo
from 3.97 %
from 5.00 %
Agent Activity
Foxtons created the listing.
Nearby Schools
| Name | Type | Ofsted | Distance |
|---|---|---|---|
| Anson Primary School | Community School | Good | 0.22 KM |
| Mora Primary School | Community School | Good | 0.83 KM |
| Convent Of Jesus And Mary Rc Infant School | Voluntary Aided School | Outstanding | 0.86 KM |
| St Mary Magdalen'S Catholic Junior School | Voluntary Aided School | Good | 0.99 KM |
| Gladstone Park Primary School | Academy Sponsor Led | Good | 1.12 KM |
Images
Nearby Streets
| Name | Average Price | Average Sqft | Distance |
|---|---|---|---|
| Clovelly Court | £ 0 | 0 | 0.00 KM |
| Gardiner Avenue | £ 0 | 0 | 0.00 KM |
| Brondesbury Park | £ 2,583,333 | 0 | 0.00 KM |
| Sylvan Grove | £ 0 | 0 | 0.00 KM |
| Stoll Close | £ 0 | 0 | 0.00 KM |
Nearby Transport
| Name | NLC | TLC | Distance |
|---|---|---|---|
| Cricklewood | 1519 | CRI | 1.13 KM |
| Brondesbury Park | 1438 | BSP | 1.79 KM |
| Kensal Rise | 1448 | KNR | 2.01 KM |
| Brondesbury | 1437 | BSY | 2.23 KM |
| Kensal Green | 1447 | KNL | 2.49 KM |
Nearby Listings
| Address | Price | Type | Score | Distance |
|---|---|---|---|---|
| Melrose Avenue, Willesden Green, London, NW2 | £ 725,000 | BUY | 6 / 10 | 0.00 KM |
| Melrose Avenue, NW2, Willesden Green, London, NW2 | £ 650,000 | BUY | 5 / 10 | 0.01 KM |
| Melrose Avenue, Willesden, London, NW2 | £ 550,000 | BUY | 7 / 10 | 0.01 KM |
| Melrose Avenue, Willesden Green, London, NW2 | £ 800,000 | BUY | 7 / 10 | 0.01 KM |
| Melrose Avenue, London, NW2 | £ 625,000 | BUY | 6 / 10 | 0.03 KM |
Nearby Properties
| Address | Price | Distance |
|---|---|---|
| 9a Melrose Avenue | £ 76,000 | 0.02 KM |
| 55 Melrose Avenue | £ 1,450,000 | 0.02 KM |
| 59 Melrose Avenue | £ 307,000 | 0.02 KM |
| 39 Melrose Avenue | £ 699,950 | 0.02 KM |
| 75 Melrose Avenue | £ 250,000 | 0.02 KM |