Belmont Road, South Norwood
MA

Belmont Road, South Norwood

By Martin & Co

£ 600,000

Reviews

3 out of 5 stars

Martin & Co says ..

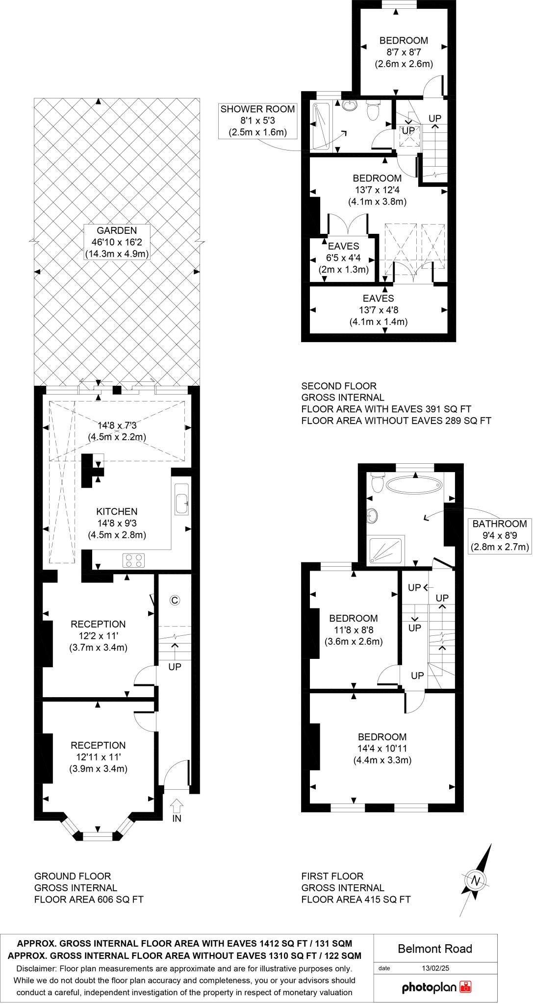
Four Bedroom Family Home. Well Presented Throughout and Extended to the Rear. Two Reception Rooms. Kitchen Diner with Direct Garden Access. Two Bathrooms. Four Bedrooms. Low Maintenance Rear Garden. Double Glazed Throughout. Gas Central Heating. Call to View. Please note that the v...

Property Oracle says ..

This property is located on Belmont Road in South Norwood, Croydon, which is in the London Borough of Croydon. The area benefits from good transport links, with Norwood Junction station being approximately 1.38km away, providing access to the London Overground. There are also several primary schools within a short distance, including Oasis Academy Ryelands (rated “Good” by Ofsted) and Oasis Academy Arena. The property itself is a four-bedroom house with two bathrooms. Based on the photos, the property appears to be in good condition and has undergone some renovations, including a modern kitchen and extension. There is a garden, which is a desirable feature in this area. The list price of £600,000 seems high compared to some other properties in the area, however, the size of the property and the recent renovations may justify this price. More information on the size of comparable properties would be needed to make a definitive judgment on the value for money.

Therefore, we give this property 7 / 10. *Disclaimer: This is our option and does constitute a recommendation or financial advice. Do your own research. *

Price
6
Condition
8
Location
7
Land
7
Bedrooms
4
Bathrooms
2
Sqft (est)
7,330.22

The heatmap indicates the level of crime in the area. The color of the heatmap indicates the crime severity and recency.

Metrics Year-on-Year

Average area value
489,165.00 £
Increased by 16.57 %
from 419,649.00 £
Est sale value
4,566,727.06 £
Increased by 28.45 %
from 3,555,156.70 £
Average area rental value
1,679.00 £/mo
Decreased by 8.30 %
from 1,831.00 £/mo
Est letting value
14,660.44 £/mo
Unchanged by 0.00 %
from 14,660.44 £/mo
Est rental Yield
4.12 %
Decreased by 21.37 %
from 5.24 %
Crime Rate
5.00 %
Unchanged by 0.00 %
from 5.00 %

Agent Activity

  • Martin & Co created the listing.

Nearby Schools

NameTypeOfstedDistance
Oasis Academy RyelandsAcademy Sponsor LedGood0.23 KM
Oasis Academy ArenaAcademy Sponsor LedRequires improvement0.24 KM
Malling Close Children'S CentreChildren's Centre Linked Site0.55 KM
St Thomas Becket Catholic Primary SchoolAcademy Converter0.79 KM
Crosfield Nursery School And Children'S CentreChildren's Centre0.83 KM

Images

10-294bJHHGLL - 6... 15-ffa2JHHGLL - 6... 11-3a23JHHGLL - 6... 12-84b1JHHGLL - 6... 13-b4b4JHHGLL - 6... 09-19a8JHHGLL - 6... 08-32bcJHHGLL - 6... 14-5a3fJHHGLL - 6... 04-d096JHHGLL - 6... 05-6c8bJHHGLL - 6... 06-edfeJHHGLL - 6... 03-60b9JHHGLL - 6... 01-f46cJHHGLL - 6... 07-7a0dJHHGLL - 6... 02-e2e2JHHGLL - 6...

Nearby Streets

NameAverage PriceAverage SqftDistance
Foot Path 800 £ 407,50000.00 KM
Foot Path 801 £ 000.00 KM
Foot Path 726 £ 200,00000.00 KM
Woodside £ 000.00 KM
Foot Path 657 £ 000.00 KM

Nearby Transport

NameNLCTLCDistance
Norwood Junction5376NWD1.38 KM
Birkbeck5401BIK1.62 KM
Elmers End5049ELE1.75 KM
Anerley5397ANZ2.28 KM
Selhurst5434SRS2.69 KM

Nearby Listings

AddressPriceTypeScoreDistance
Belmont Road, South Norwood £ 600,000BUY7 / 100.00 KM
Belmont Road, South Norwood £ 535,000BUY6 / 100.03 KM
Belmont Road, South Norwood £ 475,000BUY6 / 100.05 KM
Belmont Road, London £ 450,000BUY5 / 100.07 KM
Belmont Road, SE25 £ 435,000BUY6 / 100.07 KM

Nearby Properties

AddressPriceDistance
69 Belmont Road £ 350,0000.00 KM
3a Belmont Road £ 525,0000.00 KM
21 Belmont Road £ 413,5000.00 KM
1a Belmont Road £ 220,0000.00 KM
1 Belmont Road £ 400,0000.00 KM