1, Blair Road, Dalry, KA244DE
By Future Property Auctions
£ 315,000
Reviews
1 out of 5 stars
Future Property Auctions says ..
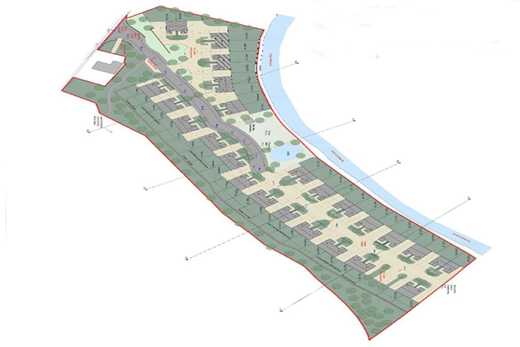
** Timed Online Auction - 30 January 2025 ** 2.38 hectares (5.88 acres) of land with full planning consents to allow the construction of 48 residential units. The site is bounded by the River Garnock and access to the site is via Blair Road..
Property Oracle says ..
This listing from Future Property Auctions presents a development opportunity in Dalry, North Ayrshire. The property is a vacant plot of land located at 1 Blair Road, Dalry, KA24 4DX. The site appears to be undergoing or has recently completed some groundwork, though photos show a largely undeveloped plot of land. The images reveal a sizable area. However, crucial details are missing for a comprehensive assessment. Information on the plot’s exact dimensions in square footage is absent. The number of bedrooms and bathrooms is listed as 0, as is the total square footage of any building. Furthermore, there’s no indication of planning permission or any existing plans for the property development. The absence of these crucial aspects severely hinders a proper evaluation of the property’s value. The nearby properties listed show prices ranging from £15,000 to £310,000, however, these are existing developed properties and are therefore not comparable given the lack of information about this property’s exact plans and size. The proximity to Dalry railway station is advantageous, potentially attracting buyers interested in convenient commutes. However, the lack of nearby schools mentioned in the information supplied could be a drawback for families. Overall, the property presents a high-risk, high-reward proposition. Potential buyers need to diligently investigate the plot’s dimensions, planning permissions and development feasibility before making an offer. The current price seems high in relation to nearby properties and the current condition of the land; however, the potential for a new build is significant.
Therefore, we give this property 3 / 10. *Disclaimer: This is our option and does constitute a recommendation or financial advice. Do your own research. *
- Price
- 3
- Condition
- 1
- Location
- 4
- Land
- 7
- Bedrooms
- 0
- Bathrooms
- 0
The heatmap indicates the level of crime in the area. The color of the heatmap indicates the crime severity and recency.
Metrics Year-on-Year
- Average area value
- 327,363.00 £Increased by 26.97 %
- Average area rental value
- 1,112.00 £/moIncreased by 23.69 %
- Est rental Yield
- 4.08 %Decreased by 2.39 %
- Crime Rate
- 0.00 %
Agent Activity
Future Property Auctions created the listing.
Images
Nearby Streets
| Name | Average Price | Average Sqft | Distance |
|---|---|---|---|
| Bridgend Lane | £ 0 | 0 | 0.00 KM |
| Douglas Avenue | £ 0 | 0 | 0.00 KM |
| Russell Drive | £ 0 | 0 | 0.00 KM |
| Mill Park | £ 0 | 0 | 0.00 KM |
| Townend Lane | £ 0 | 0 | 0.00 KM |
Nearby Transport
| Name | NLC | TLC | Distance |
|---|---|---|---|
| Dalry | 9483 | DLY | 0.15 KM |
| Glengarnock | 9503 | GLG | 5.31 KM |
| Kilwinning | 9517 | KWN | 5.58 KM |
| Stevenston | 9553 | STV | 9.19 KM |
Nearby Listings
| Address | Price | Type | Score | Distance |
|---|---|---|---|---|
| 1, Blair Road, Dalry, KA244DE | £ 315,000 | BUY | 3 / 10 | 0.00 KM |
| Mair Avenue, Dalry, KA24 | £ 100,000 | BUY | 7 / 10 | 0.29 KM |
| Mill Park, Dalry, North Ayrshire, KA24 | £ 165,000 | BUY | 6 / 10 | 0.35 KM |
| Douglas Avenue, Dalry, Ayrshire, KA24 | £ 107,500 | BUY | 6 / 10 | 0.36 KM |
| Tofts, Dalry, Ayrshire, KA24 | £ 170,000 | BUY | Unknown | 0.39 KM |