Hillcote Avenue, Norbury, London, SW16
By Foxtons
£ 885,000
Reviews
3 out of 5 stars
Foxtons says ..
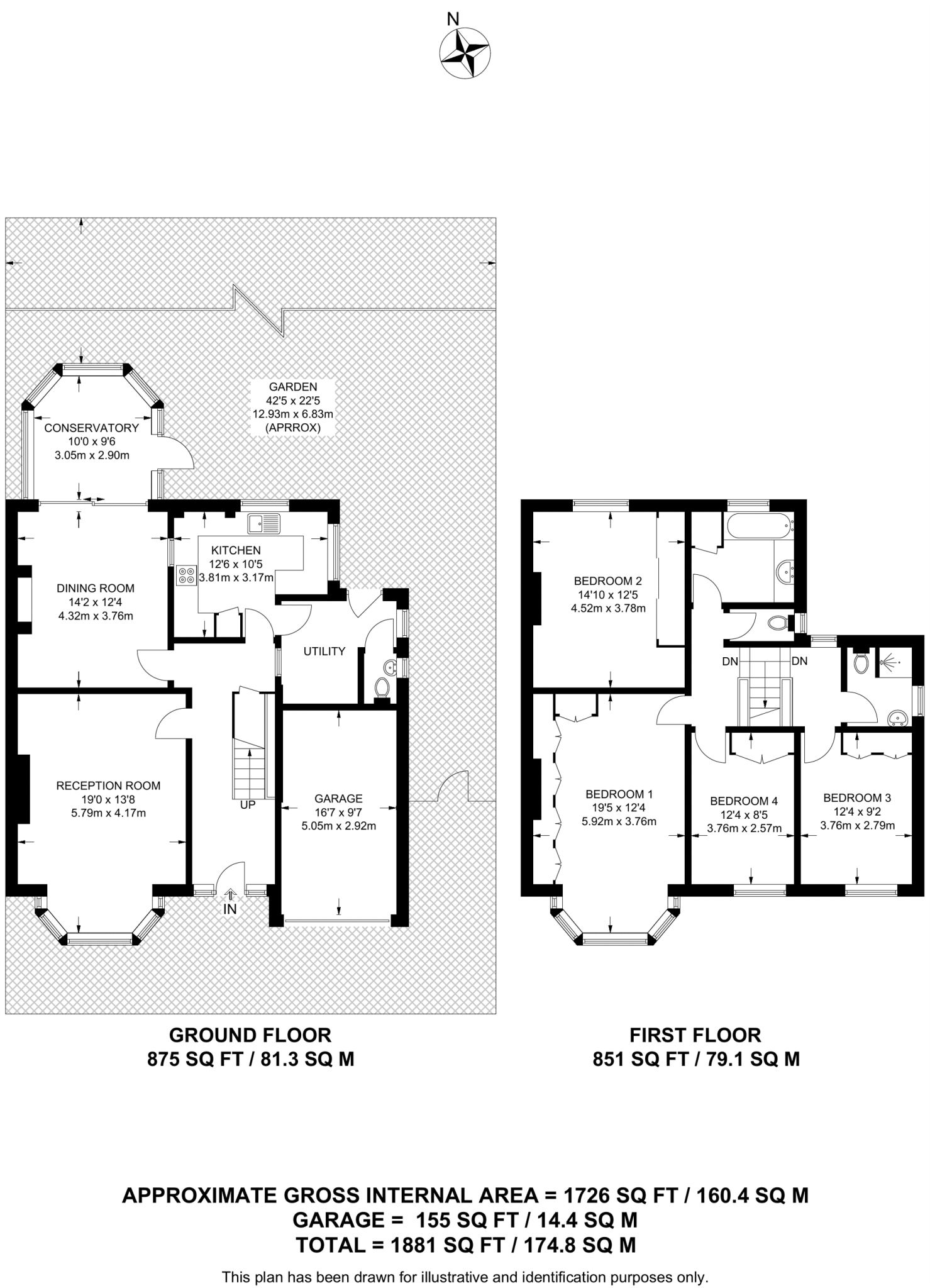
Boasting elegant interiors throughout, this delightful 4 bedroom house offers ample reception room, spacious dining room with conservatory, well-equipped kitchen, private garden and a garage.
Property Oracle says ..
This four bedroom semi-detached property is situated on Hillcote Avenue, Norbury, London. The property benefits from a great location with nearby schools and transport links. The property is in good condition, and benefits from a conservatory and a garden. While the property is on the higher end of the price range for the area, it is a spacious property and is well presented. The property is likely to appeal to families.
Therefore, we give this property 7 / 10. *Disclaimer: This is our option and does constitute a recommendation or financial advice. Do your own research. *
- Price
- 7
- Condition
- 8
- Location
- 9
- Land
- 7
- Bedrooms
- 4
- Bathrooms
- 2
- Sqft (est)
- 1,726.00
The heatmap indicates the level of crime in the area. The color of the heatmap indicates the crime severity and recency.
Metrics Year-on-Year
- Average area value
- 842,222.00 £Increased by 24.46 %
- Est sale value
- 780,152.00 £Decreased by 9.78 %
- Average area rental value
- 2,715.00 £/moIncreased by 13.12 %
- Est letting value
- 1,726.00 £/moUnchanged by 0.00 %
- Est rental Yield
- 3.87 %Decreased by 9.15 %
- Crime Rate
- 3.00 %Unchanged by 0.00 %
Agent Activity
Foxtons created the listing.
Nearby Schools
| Name | Type | Ofsted | Distance |
|---|---|---|---|
| Norbury High School For Girls | Academy Converter | Good | 0.59 KM |
| Kensington Avenue Primary School | Academy Converter | 0.72 KM | |
| Kensington Avenue Children'S Centre | Children's Centre | 0.72 KM | |
| Silburn Reid | Miscellaneous | 0.89 KM | |
| Bishop Thomas Grant Catholic Secondary School | Voluntary Aided School | Outstanding | 1.02 KM |
Images
Nearby Streets
| Name | Average Price | Average Sqft | Distance |
|---|---|---|---|
| Briar Avenue | £ 1,050,000 | 0 | 0.00 KM |
| Strathbrook Road | £ 1,000,000 | 0 | 0.00 KM |
| Hermitage Lane | £ 0 | 0 | 0.00 KM |
| Aston Place | £ 0 | 0 | 0.00 KM |
| Buckingham Gardens | £ 0 | 0 | 0.00 KM |
Nearby Transport
| Name | NLC | TLC | Distance |
|---|---|---|---|
| Norbury | 5428 | NRB | 0.88 KM |
| Streatham | 5383 | STE | 2.05 KM |
| West Norwood | 5438 | WNW | 2.16 KM |
| Streatham Common | 5384 | SRC | 2.27 KM |
| Thornton Heath | 5388 | TTH | 2.59 KM |
Nearby Listings
| Address | Price | Type | Score | Distance |
|---|---|---|---|---|
| Hillcote Avenue, Norbury, London, SW16 | £ 885,000 | BUY | 7 / 10 | 0.00 KM |
| Hillcote Avenue, LONDON | £ 850,000 | BUY | 7 / 10 | 0.07 KM |
| Hillcote Avenue, London, SW16 | £ 850,000 | BUY | 7 / 10 | 0.10 KM |
| Hillcote Avenue, Streatham | £ 1,050,000 | BUY | 7 / 10 | 0.10 KM |
| Crescent Way, London | £ 750,000 | BUY | 6 / 10 | 0.11 KM |
Nearby Properties
| Address | Price | Distance |
|---|---|---|
| 29 Hillcote Avenue | £ 299,950 | 0.02 KM |
| 41 Hillcote Avenue | £ 835,000 | 0.02 KM |
| 35 Hillcote Avenue | £ 465,000 | 0.02 KM |
| 25 Hillcote Avenue | £ 435,000 | 0.02 KM |
| 14 Gibsons Hill | £ 460,000 | 0.15 KM |