Chopin Road, Basingstoke, Hampshire, RG22
By Bridges Estate Agents
£ 325,000
Reviews
3 out of 5 stars
Bridges Estate Agents says ..
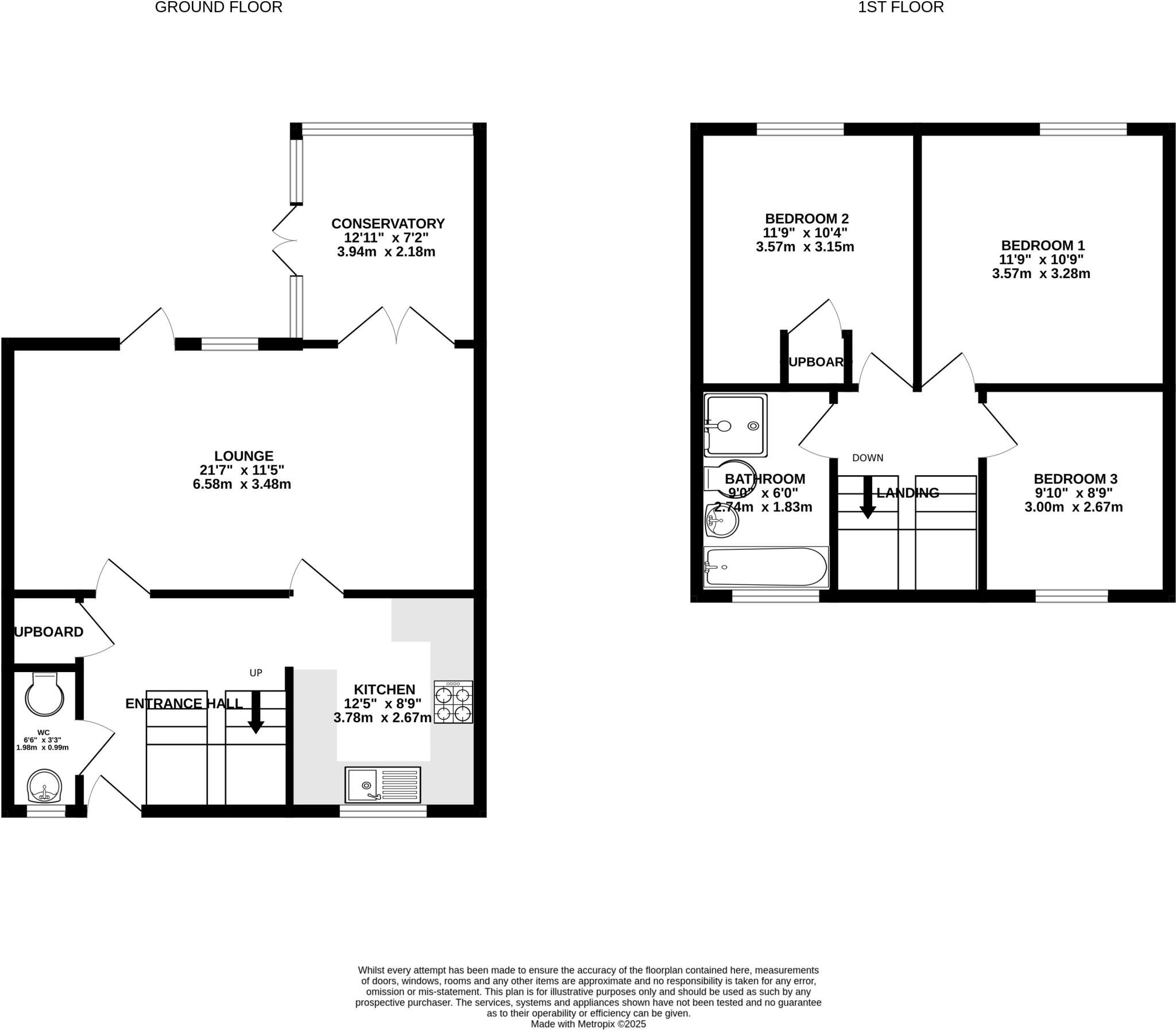
Offered to the market is this three bedroom end of terrace property, located in the ever popular Brighton Hill area. The property benefits from having a downstairs cloakroom and a conservatory with warm roof - alongside a kitchen and lounge/diner on the ground floor. Upstairs there are three doub...
Property Oracle says ..
This 3-bedroom, 1-bathroom house located on Chopin Road in Basingstoke’s Brighton Hill offers a comfortable family home. The property is conveniently located near highly-rated primary and secondary schools, making it attractive to families. The interior of the property features a modern kitchen and well-presented living spaces, evidenced by the provided photographs. The exterior of the property shows average curb appeal; it is in need of some external TLC. The rear garden has a patio area, conservatory and a hot tub and is a decent size, but could benefit from some tidying and landscaping. The absence of precise square footage data for comparable properties makes a definitive assessment of value challenging. However, based on the available information regarding nearby property sales in Brighton Hill, the list price appears reasonable, although not exceptionally competitive. The property’s strengths lie in its convenient location and good family amenities. Potential buyers should consider the minor exterior landscaping requirements and conduct a thorough property survey to ascertain the condition of the property’s structure and systems.
Therefore, we give this property 6 / 10. *Disclaimer: This is our option and does constitute a recommendation or financial advice. Do your own research. *
- Price
- 7
- Condition
- 6
- Location
- 7
- Land
- 4
- Bedrooms
- 3
- Bathrooms
- 1
- Sqft (est)
- 913.53
The heatmap indicates the level of crime in the area. The color of the heatmap indicates the crime severity and recency.
Metrics Year-on-Year
- Average area value
- 1,258,750.00 £Increased by 38.62 %
- Est sale value
- 538,069.17 £Decreased by 3.12 %
- Average area rental value
- 2,017.00 £/moDecreased by 42.17 %
- Est letting value
- 0.00 £/moDecreased by 100.00 %
- Est rental Yield
- 1.92 %Decreased by 58.35 %
- Crime Rate
- 12.00 %Unchanged by 0.00 %
Agent Activity
Bridges Estate Agents marked this listing as sold.
Bridges Estate Agents created the listing.
Nearby Schools
| Name | Type | Ofsted | Distance |
|---|---|---|---|
| Manor Field Junior School | Community School | Good | 0.16 KM |
| Manor Field Infant School | Community School | Good | 0.16 KM |
| Buttercups And Bunnies Children'S Centre | Children's Centre | 0.17 KM | |
| Brighton Hill Community School | Community School | Good | 0.58 KM |
| Chalk Ridge Primary School | Community School | Good | 1.04 KM |
Images
Nearby Streets
| Name | Average Price | Average Sqft | Distance |
|---|---|---|---|
| Brighton Hill | £ 325,000 | 0 | 0.00 KM |
| Hatchwarren Lane | £ 0 | 0 | 0.00 KM |
| Ellington Drive | £ 0 | 0 | 0.00 KM |
| Winchester Road | £ 375,000 | 0 | 0.00 KM |
| Mitchell Gardens | £ 320,000 | 0 | 0.00 KM |
Nearby Transport
| Name | NLC | TLC | Distance |
|---|---|---|---|
| Basingstoke | 5520 | BSK | 4.13 KM |
Nearby Listings
| Address | Price | Type | Score | Distance |
|---|---|---|---|---|
| Chopin Road, Basingstoke, Hampshire, RG22 | £ 325,000 | BUY | 6 / 10 | 0.00 KM |
| Chopin Road, Basingstoke | £ 325,000 | BUY | Unknown | 0.10 KM |
| Chopin Road, Basingstoke, RG22 | £ 340,000 | BUY | 7 / 10 | 0.15 KM |
| Verdi Close, Basingstoke, Hampshire | £ 325,000 | BUY | 5 / 10 | 0.23 KM |
| Verdi Close, Basingstoke | £ 325,000 | BUY | 6 / 10 | 0.24 KM |
Nearby Properties
| Address | Price | Distance |
|---|---|---|
| 23 Chopin Road | £ 113,500 | 0.05 KM |
| 43 Chopin Road | £ 185,000 | 0.05 KM |
| 28 Chopin Road | £ 88,500 | 0.05 KM |
| 27 Chopin Road | £ 275,000 | 0.05 KM |
| 17 Chopin Road | £ 221,000 | 0.05 KM |