Millholme Walk, Camberley, Surrey, GU15
By Orchard
£ 375,000
Reviews
2 out of 5 stars
Orchard says ..
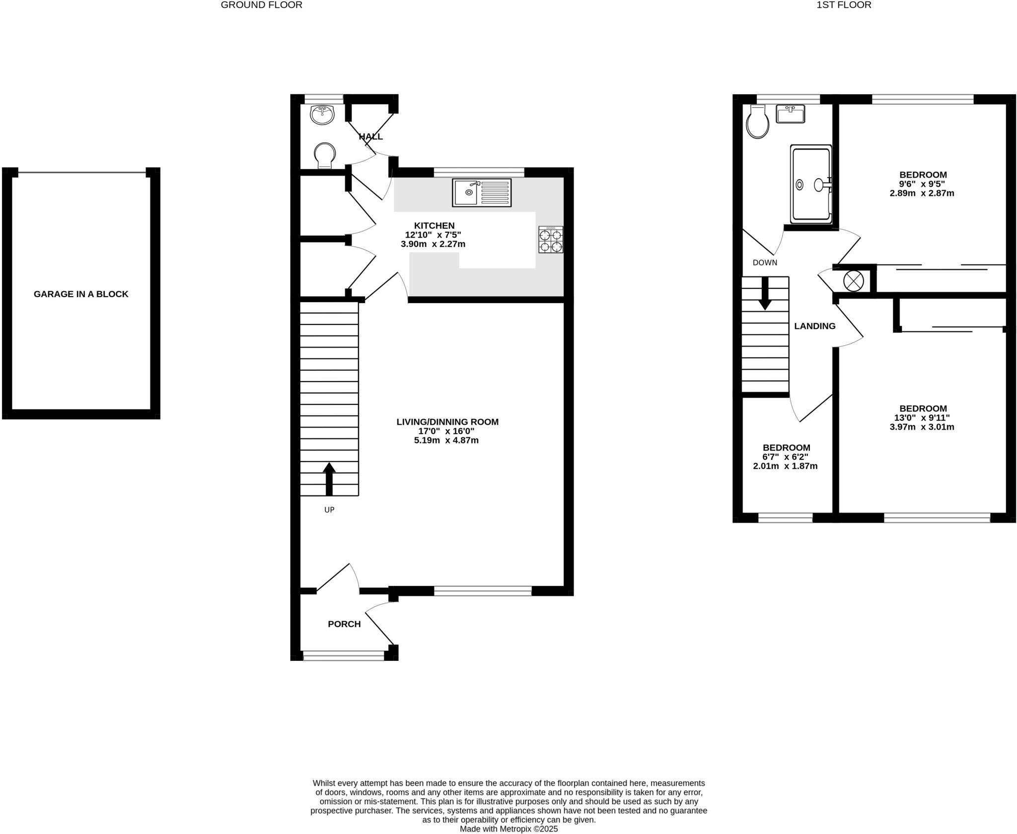
A well presented three bedroom semi-detached home located in a quiet location within the sought after Heatherside development in Camberley. The property benefits from a refitted kitchen and bathroom as well as being offered to the market with no onward chain. The accommodation comprises of a...
Property Oracle says ..
The property is located in Camberley, Surrey, a town with a mix of residential areas and good transport links. The nearby Heather Ridge Infant School has an ‘Outstanding’ Ofsted rating, suggesting good local schooling options. Several other schools are within a reasonable distance. Train stations are within a few kilometers, providing access to other parts of the UK. While the provided data doesn’t offer details on the immediate vicinity’s amenities, the presence of nearby schools and transport links suggests a relatively convenient location.
Based on the images, the property appears to be in reasonable condition. While it doesn’t look brand new, there’s no obvious sign of significant disrepair or damage. The decor is dated, but the property seems habitable and functional. A more thorough inspection would be needed for a definitive assessment.
The property has a small garden, which is a positive aspect, although its size is limited.
Considering the list price of £375,000, the average price in the area is considerably higher at £546,667. The average price per square foot is £320, while the property’s size is 870.26 sqft. However, the lack of plot size information and the absence of comparable properties with similar square footage makes it difficult to determine if the price is reasonable. The property is smaller than the average size in the area, and its condition is not top-tier. Therefore, while the price is below the average, more data is needed to accurately assess its value. Further investigation into local comparable properties is recommended.
Therefore, we give this property 5 / 10. *Disclaimer: This is our option and does constitute a recommendation or financial advice. Do your own research. *
- Price
- 6
- Condition
- 7
- Location
- 7
- Land
- 3
- Bedrooms
- 3
- Bathrooms
- 1
- Sqft (est)
- 870.26
The heatmap indicates the level of crime in the area. The color of the heatmap indicates the crime severity and recency.
Metrics Year-on-Year
- Average area value
- 568,571.00 £Decreased by 4.85 %
- Est sale value
- 467,329.62 £Increased by 10.95 %
- Average area rental value
- 2,275.00 £/moIncreased by 44.90 %
- Est letting value
- 1,740.52 £/moIncreased by 100.00 %
- Est rental Yield
- 4.80 %Increased by 52.38 %
- Crime Rate
- 29.00 %Unchanged by 0.00 %
Agent Activity
Orchard created the listing.
Nearby Schools
| Name | Type | Ofsted | Distance |
|---|---|---|---|
| Heather Ridge Infant School | Community School | Outstanding | 0.43 KM |
| Carwarden House Community School | Academy Special Converter | Good | 1.65 KM |
| Prior Heath Infant School | Community School | Good | 1.78 KM |
| Ravenscote Junior School | Academy Converter | 1.98 KM | |
| St Augustine'S Catholic Primary School | Academy Converter | 2.46 KM |
Images
Nearby Streets
| Name | Average Price | Average Sqft | Distance |
|---|---|---|---|
| Langdon Close | £ 0 | 0 | 0.00 KM |
| The Spinney | £ 0 | 0 | 0.00 KM |
| Ridgewood Drive | £ 895,000 | 0 | 0.00 KM |
| Lincoln Close | £ 1,025,000 | 0 | 0.00 KM |
| Marshall Close | £ 0 | 0 | 0.00 KM |
Nearby Transport
| Name | NLC | TLC | Distance |
|---|---|---|---|
| Bagshot | 5681 | BAG | 4.08 KM |
| Camberley | 5682 | CAM | 4.49 KM |
| Frimley | 5683 | FML | 5.21 KM |
| Farnborough North | 5688 | FNN | 5.39 KM |
| Ash Vale | 5547 | AHV | 6.83 KM |
Nearby Listings
| Address | Price | Type | Score | Distance |
|---|---|---|---|---|
| Millholme Walk, Camberley, Surrey, GU15 | £ 375,000 | BUY | 5 / 10 | 0.00 KM |
| Millholme Walk, CAMBERLEY, GU15 | £ 350,000 | BUY | 7 / 10 | 0.04 KM |
| Millholme Walk, CAMBERLEY, GU15 | £ 375,000 | BUY | 6 / 10 | 0.04 KM |
| Cumberland Road, CAMBERLEY, GU15 | £ 375,000 | BUY | 7 / 10 | 0.10 KM |
| Cumberland Road, Camberley | £ 400,000 | BUY | 6 / 10 | 0.12 KM |
Nearby Properties
| Address | Price | Distance |
|---|---|---|
| 14 Millholme Walk | £ 74,000 | 0.02 KM |
| 9 Millholme Walk | £ 172,500 | 0.02 KM |
| 16 Millholme Walk | £ 375,000 | 0.02 KM |
| 12 Millholme Walk | £ 330,000 | 0.02 KM |
| 10 Millholme Walk | £ 320,000 | 0.02 KM |