Chancellors says ..
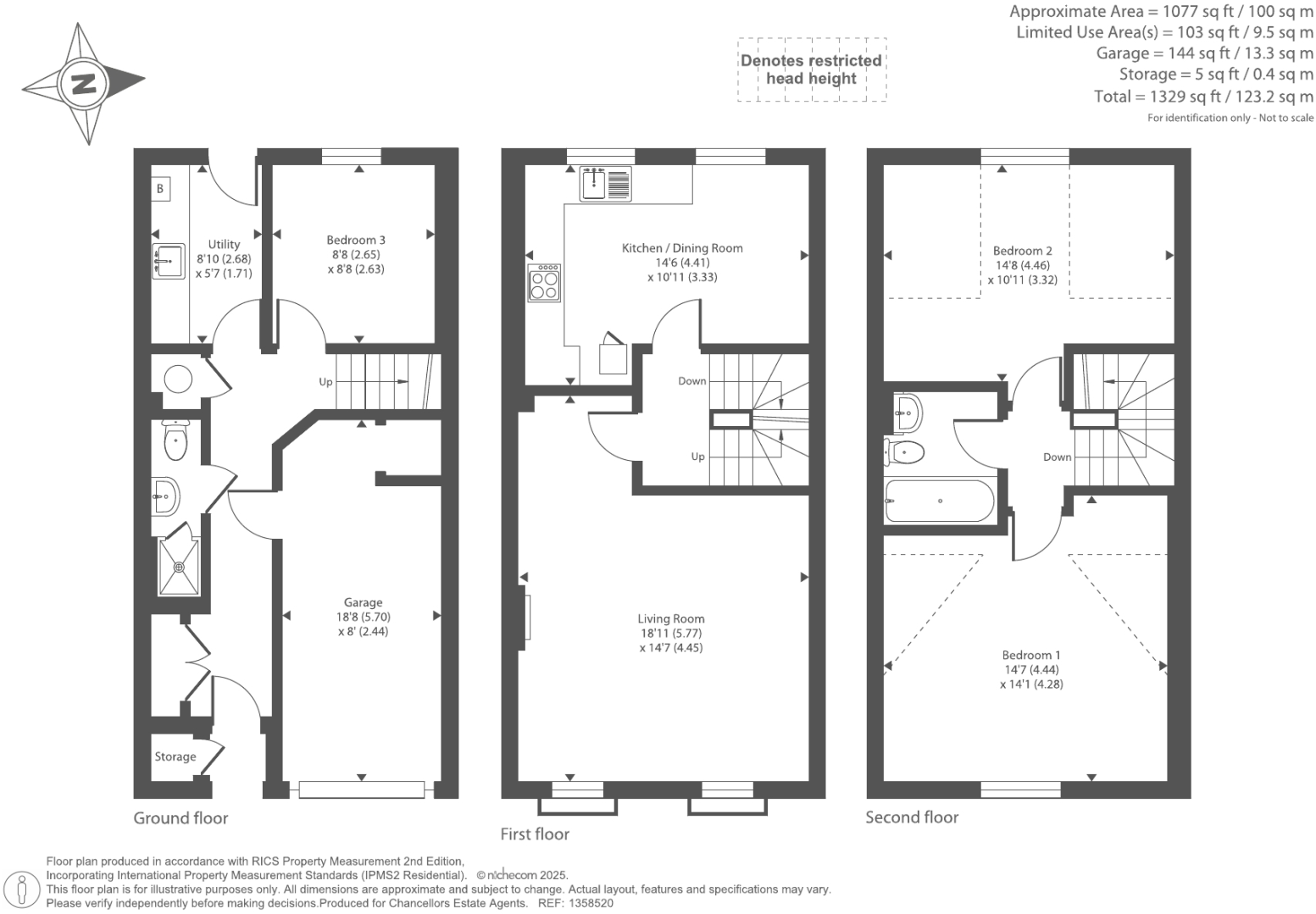
This three-bedroom townhouse is ideally located close to Slough town centre, offering a fantastic balance of space, convenience, and modern living. Set across three floors, the property is presented in good condition and comes with the added benefit of its own garage and parking.
Property Oracle says ..
This terraced property on Gray’s Road, Slough, presents a solid opportunity for buyers. The house includes three bedrooms and two bathrooms, making it suitable for families or couples. The property is located conveniently close to Slough train station and several schools, enhancing its appeal for commuters and families. While the property is generally in good order, there is scope for modernisation, particularly in the kitchen and bathrooms, allowing new owners to add their personal touch and potentially increase the property’s value. The garden, while currently functional, would benefit from some landscaping to maximize its potential. Overall, this property offers a blend of good location, reasonable space, and the opportunity for further enhancement, making it a worthwhile consideration for prospective buyers in the Slough area.
Therefore, we give this property 6 / 10. *Disclaimer: This is our option and does constitute a recommendation or financial advice. Do your own research. *
- Price
- 7
- Condition
- 6
- Location
- 7
- Land
- 5
- Bedrooms
- 3
- Bathrooms
- 2
- Sqft (est)
- 1,115.57
The heatmap indicates the level of crime in the area. The color of the heatmap indicates the crime severity and recency.
Metrics Year-on-Year
- Average area value
- 502,500.00 £Increased by 49.31 %
- Est sale value
- 790,939.13 £Increased by 458.27 %
- Average area rental value
- 1,786.00 £/moIncreased by 36.02 %
- Est letting value
- 2,231.14 £/mo
- Est rental Yield
- 4.27 %Decreased by 8.76 %
- Crime Rate
- 6.00 %Unchanged by 0.00 %
Agent Activity
Chancellors created the listing.
Nearby Schools
| Name | Type | Ofsted | Distance |
|---|---|---|---|
| Littledown School | Academy Special Converter | Good | 0.17 KM |
| James Elliman Academy | Academy Sponsor Led | Good | 0.59 KM |
| Elliman Avenue Children'S Centre | Children's Centre | 0.63 KM | |
| Lynch Hill Enterprise Academy | Free Schools | 1.05 KM | |
| St Joseph'S Catholic High School | Academy Converter | Good | 1.11 KM |
Images
Nearby Streets
| Name | Average Price | Average Sqft | Distance |
|---|---|---|---|
| Heritage Walk | £ 0 | 0 | 0.00 KM |
| Mill Street | £ 0 | 0 | 0.00 KM |
| Charlotte Avenue | £ 0 | 0 | 0.00 KM |
| Leith Close | £ 282,500 | 0 | 0.00 KM |
| Chapel Street | £ 0 | 0 | 0.00 KM |
Nearby Transport
| Name | NLC | TLC | Distance |
|---|---|---|---|
| Slough | 3172 | SLO | 0.45 KM |
| Windsor And Eton Riverside | 5672 | WNR | 3.40 KM |
| Windsor And Eton Central | 3175 | WNC | 3.82 KM |
| Datchet | 5668 | DAT | 3.85 KM |
| Burnham | 3176 | BNM | 5.78 KM |
Nearby Listings
| Address | Price | Type | Score | Distance |
|---|---|---|---|---|
| Slough, Berkshire, SL1 | £ 450,000 | BUY | 6 / 10 | 0.00 KM |
| Grays Road, Slough | £ 425,000 | BUY | 7 / 10 | 0.06 KM |
| Grays Road, Slough | £ 400,000 | BUY | 6 / 10 | 0.06 KM |
| Grays Road, Slough SL1 3QG | £ 400,000 | BUY | 6 / 10 | 0.07 KM |
| Grays Road, Slough | £ 400,000 | BUY | 6 / 10 | 0.07 KM |
Nearby Properties
| Address | Price | Distance |
|---|---|---|
| 57 Grays Road | £ 109,000 | 0.06 KM |
| 15 Grays Road | £ 319,000 | 0.06 KM |
| 10 Grays Road | £ 150,000 | 0.06 KM |
| 71a Grays Road | £ 107,000 | 0.06 KM |
| 24 Grays Road | £ 208,500 | 0.06 KM |