Old Lane, Hirst Courtney, Selby
By Stephensons
£ 170,000
Reviews
3 out of 5 stars
Stephensons says ..
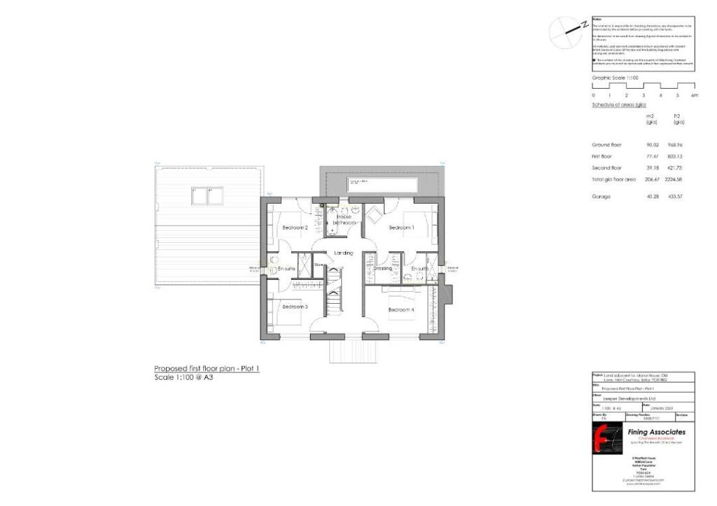
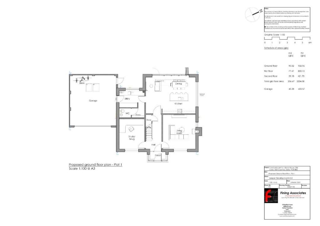
Plot 1- a residential development opportunity with full detailed planning permission for a luxury detached home overlooking the village cricket field.
Property Oracle says ..
This property in Hirst Courtney, Selby, North Yorkshire, is a newly built or soon-to-be completed house. The architectural plans indicate a substantial home with a three-story design, encompassing a garage and a reasonably sized garden. The property is situated in a seemingly quiet residential area and has the benefit of being close to several well-regarded primary schools. However, the considerable distance to those schools and train stations is a key factor to consider. The images suggest a modern design and high-quality construction, though a physical viewing is crucial before confirming these visual impressions. The listed price may or may not reflect excellent value, depending on the final build quality and the size of the property once it’s completed. The lack of comparable sales data in the immediate vicinity makes a definitive assessment of pricing challenging. Prospective buyers should thoroughly investigate the immediate vicinity for local amenities and potential downsides of the location. The overall appeal would be greatly increased if detailed square footage and plot sizes were available.
Therefore, we give this property 6 / 10. *Disclaimer: This is our option and does constitute a recommendation or financial advice. Do your own research. *
- Price
- 7
- Condition
- 7
- Location
- 5
- Land
- 6
- Bedrooms
- 0
- Bathrooms
- 0
The heatmap indicates the level of crime in the area. The color of the heatmap indicates the crime severity and recency.
Metrics Year-on-Year
- Average area value
- 227,143.00 £Decreased by 21.02 %
- Average area rental value
- 1,237.00 £/moIncreased by 11.34 %
- Est rental Yield
- 6.54 %Increased by 40.95 %
- Crime Rate
- 0.00 %
Agent Activity
Stephensons created the listing.
Nearby Schools
| Name | Type | Ofsted | Distance |
|---|---|---|---|
| The Snaith School | Academy Converter | Good | 4.67 KM |
| Snaith Primary School | Community School | Outstanding | 5.15 KM |
| Pollington-Balne Church Of England Primary School | Voluntary Aided School | Outstanding | 5.51 KM |
| Hensall Community Primary School | Community School | Good | 5.75 KM |
| Carlton Primary School | Academy Converter | 5.81 KM |
Images
Nearby Transport
| Name | NLC | TLC | Distance |
|---|---|---|---|
| Hensall | 8129 | HEL | 5.20 KM |
| Snaith | 8036 | SNI | 5.23 KM |
| Selby | 8201 | SBY | 7.60 KM |
| Whitley Bridge | 8130 | WBD | 9.87 KM |
Nearby Listings
| Address | Price | Type | Score | Distance |
|---|---|---|---|---|
| Old Lane, Hirst Courtney, Selby | £ 170,000 | BUY | 6 / 10 | 0.00 KM |
| Old Lane, Hirst Courtney, Selby | £ 170,000 | BUY | 7 / 10 | 0.00 KM |
| Old Lane, Hirst Courtney, Selby | £ 699,950 | BUY | 7 / 10 | 0.12 KM |
| Old Lane, Hirst Courtney, Selby | £ 699,950 | BUY | 7 / 10 | 0.12 KM |
| West View, Main Road, Hirst Courtney, Selby, North Yorkshire, YO8 8QT | £ 35,000 | BUY | 3 / 10 | 0.53 KM |
Nearby Properties
| Address | Price | Distance |
|---|---|---|
| The Bungalow | £ 275,000 | 0.30 KM |
| Hirst Lodge | £ 265,000 | 0.51 KM |
| The Old Post House | £ 94,000 | 0.51 KM |
| Orchard House | £ 290,000 | 0.51 KM |
| Angel Cottage | £ 240,000 | 0.51 KM |