RE
Norwood Close, Liden, Swindon
By Resides Swindon
£ 230,000
Reviews
3 out of 5 stars
Resides Swindon says ..
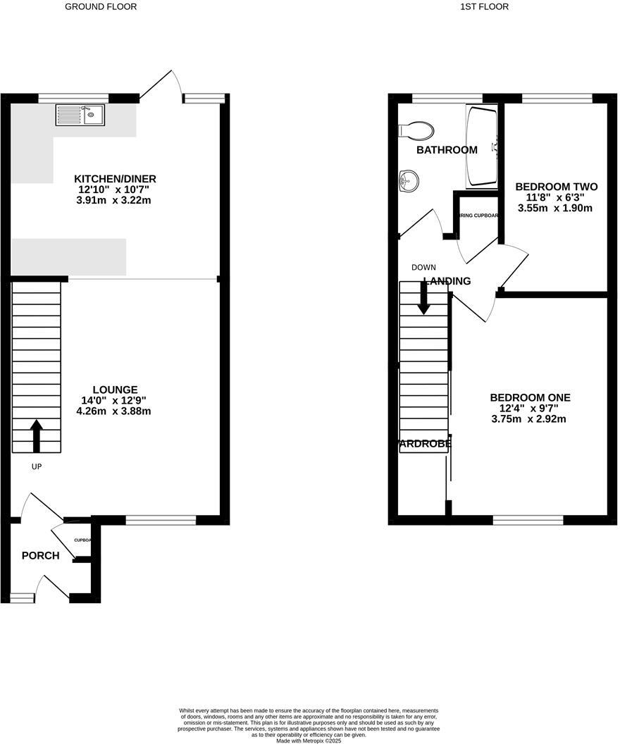
Resides Swindon are delighted to be marketing this good size two bedroom end terrace property situated in the sought after location of 'Liden'. The accommodation comprises, entrance porch, lounge/diner, open plan kitchen/breakfast. To the first floor is two bedrooms and family bathroom. To the re...
Property Oracle says ..
Therefore, we give this property 6 / 10. *Disclaimer: This is our option and does constitute a recommendation or financial advice. Do your own research. *
- Price
- 6
- Condition
- 6
- Location
- 7
- Land
- 7
- Bedrooms
- 2
- Bathrooms
- 1
- Sqft (est)
- 503.86
The heatmap indicates the level of crime in the area. The color of the heatmap indicates the crime severity and recency.
Metrics Year-on-Year
- Average area value
- 481,967.00 £Increased by 28.07 %
- Est sale value
- 201,544.00 £Decreased by 15.97 %
- Average area rental value
- 1,254.00 £/moIncreased by 10.97 %
- Est letting value
- 503.86 £/moUnchanged by 0.00 %
- Est rental Yield
- 3.12 %Decreased by 13.33 %
- Crime Rate
- 6.00 %Unchanged by 0.00 %
from 376,332.00 £
from 239,837.36 £
from 1,130.00 £/mo
from 503.86 £/mo
from 3.60 %
from 6.00 %
Agent Activity
Resides Swindon created the listing.
Nearby Schools
| Name | Type | Ofsted | Distance |
|---|---|---|---|
| Eldene Nursery And Primary School | Community School | Requires improvement | 0.55 KM |
| The Chalet School | Academy Special Sponsor Led | 0.62 KM | |
| Liden Academy | Academy Converter | 0.63 KM | |
| The Dorcan Academy | Academy Converter | Requires improvement | 0.92 KM |
| Holy Family Catholic Primary School | Academy Converter | Good | 1.47 KM |
Images
Nearby Streets
| Name | Average Price | Average Sqft | Distance |
|---|---|---|---|
| Grundys | £ 100,000 | 0 | 0.00 KM |
| Sutton Road | £ 270,000 | 0 | 0.00 KM |
| Liden Drive | £ 303,333 | 0 | 0.00 KM |
| Collingsmead | £ 240,000 | 0 | 0.00 KM |
| Acorn Close | £ 0 | 0 | 0.00 KM |
Nearby Transport
| Name | NLC | TLC | Distance |
|---|---|---|---|
| Swindon (Wilts) | 3333 | SWI | 6.06 KM |
Nearby Listings
| Address | Price | Type | Score | Distance |
|---|---|---|---|---|
| Norwood Close, Liden, Swindon | £ 230,000 | BUY | 6 / 10 | 0.00 KM |
| Carroll Close, Swindon | £ 300,000 | BUY | 6 / 10 | 0.07 KM |
| Bushton Close, Badbury Park, Swindon, SN3 | £ 260,000 | BUY | 7 / 10 | 0.08 KM |
| Austen Crescent, Swindon, SN3 | £ 325,000 | BUY | Unknown | 0.09 KM |
| Christie Close, Swindon | £ 245,000 | BUY | 5 / 10 | 0.14 KM |
Nearby Properties
| Address | Price | Distance |
|---|---|---|
| 7 Norwood Close | £ 155,000 | 0.02 KM |
| 2 Norwood Close | £ 230,000 | 0.02 KM |
| 5 Norwood Close | £ 191,500 | 0.02 KM |
| 10 Norwood Close | £ 140,000 | 0.02 KM |
| 3 Norwood Close | £ 180,000 | 0.02 KM |