Ash Grove, Hounslow, TW5 9DR
By Landmark Property Services
£ 695,000
Reviews
3 out of 5 stars
Landmark Property Services says ..
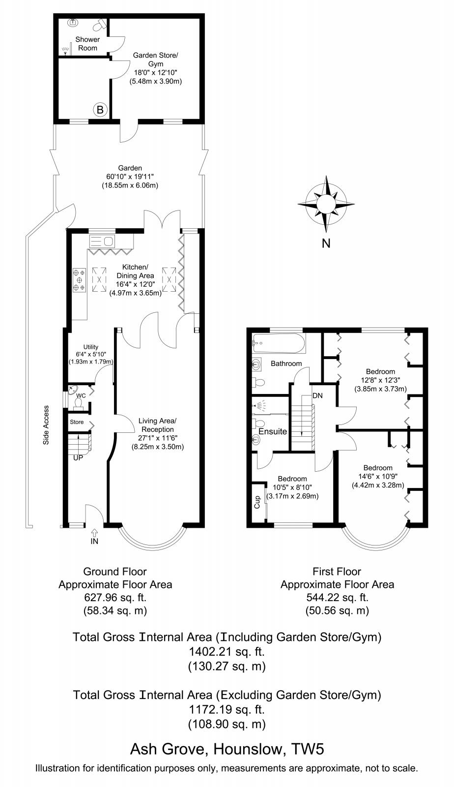
This spacious terraced house in Hounslow offers three bedrooms, four bathrooms, and two reception areas. The property features a modern kitchen-diner, off-road parking, and a garden. Additional highlights include an en-suite, open plan lounge, full double glazing, and gas central heating.
Property Oracle says ..
This is a terraced property located in Heston West, Hounslow. The property offers a substantial 2,377.10 sqft of living space, including three bedrooms and four bathrooms. The kitchen has been modernised. The property benefits from proximity to local schools and transportation links. The rear garden is paved. The property is listed at £695,000, which appears competitive given the size and location. While generally well-maintained, some areas could benefit from further modernisation. Overall, this property presents a good opportunity for families looking for a spacious home in a convenient location.
Therefore, we give this property 6 / 10. *Disclaimer: This is our option and does constitute a recommendation or financial advice. Do your own research. *
- Price
- 7
- Condition
- 6
- Location
- 7
- Land
- 5
- Bedrooms
- 3
- Bathrooms
- 4
- Sqft (est)
- 2,377.10
The heatmap indicates the level of crime in the area. The color of the heatmap indicates the crime severity and recency.
Metrics Year-on-Year
- Average area value
- 430,000.00 £Decreased by 18.92 %
- Est sale value
- 924,691.90 £Decreased by 11.19 %
- Average area rental value
- 2,467.00 £/moIncreased by 52.57 %
- Est letting value
- 4,754.20 £/moIncreased by 100.00 %
- Est rental Yield
- 6.88 %Increased by 87.98 %
- Crime Rate
- 5.00 %Unchanged by 0.00 %
Agent Activity
Landmark Property Services created the listing.
Nearby Schools
| Name | Type | Ofsted | Distance |
|---|---|---|---|
| Berkeley Academy | Academy Converter | 0.61 KM | |
| Springwell School | Community School | 0.68 KM | |
| Edison Primary School | Free Schools | Good | 1.13 KM |
| Beavers Children'S Centre | Children's Centre | 1.32 KM | |
| Hounslow Heath Infant And Nursery School | Community School | Outstanding | 1.51 KM |
Images
Nearby Streets
| Name | Average Price | Average Sqft | Distance |
|---|---|---|---|
| Oak Avenue | £ 0 | 0 | 0.00 KM |
| Blackthorn Court | £ 0 | 0 | 0.00 KM |
| Alcock Road | £ 0 | 0 | 0.00 KM |
| Bath Road | £ 0 | 0 | 0.00 KM |
| Poole Court Road Footpath | £ 0 | 0 | 0.00 KM |
Nearby Transport
| Name | NLC | TLC | Distance |
|---|---|---|---|
| Southall | 3187 | STL | 3.21 KM |
| Hounslow | 5563 | HOU | 3.75 KM |
| Feltham | 5559 | FEL | 4.13 KM |
| Hayes And Harlington | 3186 | HAY | 4.17 KM |
| Whitton | 5611 | WTN | 5.00 KM |
Nearby Listings
| Address | Price | Type | Score | Distance |
|---|---|---|---|---|
| Ash Grove, Hounslow, TW5 9DR | £ 695,000 | BUY | 6 / 10 | 0.00 KM |
| Ash Grove, Hounslow, Middlesex, TW5 | £ 650,000 | BUY | 6 / 10 | 0.05 KM |
| Ash Grove, Heston, Hounslow, TW5 | £ 600,000 | BUY | Unknown | 0.07 KM |
| Ash Grove, Heston | £ 649,950 | BUY | 6 / 10 | 0.07 KM |
| Browning Way, Heston | £ 660,000 | BUY | 6 / 10 | 0.10 KM |
Nearby Properties
| Address | Price | Distance |
|---|---|---|
| 252 Ash Grove | £ 80,000 | 0.05 KM |
| 262 Ash Grove | £ 320,000 | 0.05 KM |
| 246 Ash Grove | £ 465,000 | 0.05 KM |
| 276 Ash Grove | £ 270,000 | 0.05 KM |
| 256 Ash Grove | £ 300,000 | 0.05 KM |