Creffield Road, Ealing, W5
By Core London Property Advisors
£ 5,000,000
Reviews
3 out of 5 stars
Core London Property Advisors says ..
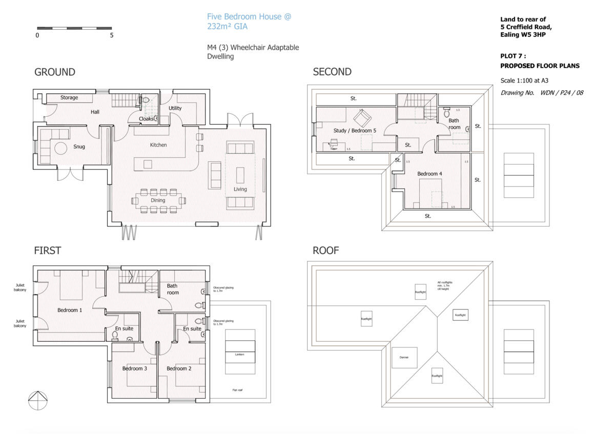
DEVELOPMENT OPPORTUNITY FOR SALE-LAND WITH PLANNING PERMISSION TO BUILD 7 BRAND NEW HOUSES WITHIN A GATED COMMUNITY
Property Oracle says ..
This property listing presents a new build house in the sought-after Ealing Common area of West London. The location is a major advantage, offering a good balance of tranquility (Ealing Common) and excellent connectivity to central London via Ealing Broadway station. The area is known for its good schools, adding to its family-friendly appeal. The architectural drawings suggest modern design, and the inclusion of a garden and off-street parking are significant plus points given space constraints typical of London properties. However, the absence of key details, such as the number of bedrooms and bathrooms, and reliance on artist’s impressions rather than photographic evidence of the finished property, limits a fully informed assessment. Also, a lack of precise comparable property price per square foot data makes a definitive judgment on value difficult. The asking price of £5,000,000 is high, and further information is needed to fully assess its reasonableness. Overall, the property presents as a promising new build in a prime location, though buyer due diligence will be vital to confirm all specifications and ultimately value.
Therefore, we give this property 6 / 10. *Disclaimer: This is our option and does constitute a recommendation or financial advice. Do your own research. *
- Price
- 6
- Condition
- 7
- Location
- 8
- Land
- 6
- Bedrooms
- 0
- Bathrooms
- 0
- Sqft (est)
- 1,550.00
The heatmap indicates the level of crime in the area. The color of the heatmap indicates the crime severity and recency.
Metrics Year-on-Year
- Average area value
- 683,580.00 £Decreased by 10.48 %
- Est sale value
- 1,213,650.00 £Increased by 44.46 %
- Average area rental value
- 2,333.00 £/moIncreased by 12.11 %
- Est letting value
- 3,100.00 £/moIncreased by 100.00 %
- Est rental Yield
- 4.10 %Increased by 25.38 %
- Crime Rate
- 15.00 %Unchanged by 0.00 %
Agent Activity
Core London Property Advisors created the listing.
Nearby Schools
| Name | Type | Ofsted | Distance |
|---|---|---|---|
| The Ellen Wilkinson School For Girls | Foundation School | Outstanding | 0.57 KM |
| Ada Lovelace Church Of England High School | Free Schools | 0.81 KM | |
| Blooming Tree Primary School | Other Independent Special School | 0.84 KM | |
| La Chouette School | Other Independent School | Good | 1.09 KM |
| The Japanese School | Other Independent School | Inadequate | 1.10 KM |
Images
Nearby Streets
| Name | Average Price | Average Sqft | Distance |
|---|---|---|---|
| Hamilton Court | £ 650,000 | 0 | 0.00 KM |
| Queens Drive | £ 475,000 | 0 | 0.00 KM |
| Station Road | £ 462,500 | 0 | 0.00 KM |
| Brook Close | £ 549,950 | 0 | 0.00 KM |
| Golf Road | £ 599,000 | 0 | 0.00 KM |
Nearby Transport
| Name | NLC | TLC | Distance |
|---|---|---|---|
| Ealing Broadway | 3190 | EAL | 1.32 KM |
| Kew Bridge | 5593 | KWB | 2.56 KM |
| South Acton | 1452 | SAT | 2.61 KM |
| Acton Main Line | 3000 | AML | 2.63 KM |
| Gunnersbury | 5588 | GUN | 2.82 KM |
Nearby Listings
| Address | Price | Type | Score | Distance |
|---|---|---|---|---|
| Creffield Road, Ealing, W5 | £ 5,000,000 | BUY | 6 / 10 | 0.00 KM |
| Creffield Road, Ealing | £ 5,250,000 | BUY | 6 / 10 | 0.00 KM |
| Creffield Road, London | £ 450,000 | BUY | 6 / 10 | 0.01 KM |
| Creffield Road, Ealing | £ 400,000 | BUY | 6 / 10 | 0.05 KM |
| Creffield Road, Ealing, W5 | £ 400,000 | BUY | 5 / 10 | 0.05 KM |
Nearby Properties
| Address | Price | Distance |
|---|---|---|
| 12 Creffield Road | £ 1,300,000 | 0.01 KM |
| 6 Creffield Road | £ 999,500 | 0.01 KM |
| 8 Creffield Road | £ 370,000 | 0.01 KM |
| 9 Creffield Road | £ 485,000 | 0.01 KM |
| 15 Freeland Road | £ 3,020,000 | 0.08 KM |