Acorn says ..
A highly sought after, one-bedroom first floor apartment located on a sought-after road in the heart of Hither Green. This beautiful period apartment has been decorated throughout by the current owners and offers the perfect family home. The apartment sits in a brick façade residence offer...
Property Oracle says ..
This property is a one-bedroom, one-bathroom apartment located in Lewisham, London. Based on the provided images, the property appears to be in good condition with a modern, updated kitchen and bathroom. The apartment is well-presented and seems ready to move into. The location is convenient, with nearby transportation links and schools. However, the lack of information regarding the size of the property and the absence of details about outdoor space (garden) makes it difficult to provide a complete assessment of the land aspect. The list price of £400,000 seems reasonable considering the comparable properties in the area, but more information on the square footage of those properties would be needed to make a definitive statement. More information is needed to provide a complete and accurate analysis.
Therefore, we give this property 6 / 10. *Disclaimer: This is our option and does constitute a recommendation or financial advice. Do your own research. *
- Price
- 6
- Condition
- 8
- Location
- 7
- Land
- 3
- Bedrooms
- 1
- Bathrooms
- 1
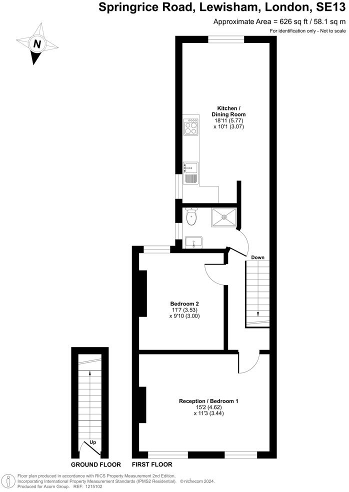
- Sqft (est)
- 460.30
- Lot (est)
- 626.00
The heatmap indicates the level of crime in the area. The color of the heatmap indicates the crime severity and recency.
Metrics Year-on-Year
- Average area value
- 474,750.00 £Increased by 4.39 %
- Est sale value
- 293,671.40 £Increased by 19.25 %
- Average area rental value
- 2,030.00 £/moIncreased by 10.33 %
- Est letting value
- 920.60 £/moUnchanged by 0.00 %
- Est rental Yield
- 5.13 %Increased by 5.77 %
- Crime Rate
- 6.00 %Unchanged by 0.00 %
Agent Activity
Acorn created the listing.
Nearby Schools
| Name | Type | Ofsted | Distance |
|---|---|---|---|
| Brindishe Green School | Community School | Outstanding | 0.39 KM |
| The Young Women'S Hub | Other Independent Special School | Requires improvement | 0.86 KM |
| Education-My Life Matters | Other Independent School | Requires improvement | 0.95 KM |
| St Mary'S Lewisham Church Of England Primary School | Voluntary Aided School | Good | 0.96 KM |
| The Family Learning School | Other Independent School | Requires improvement | 1.05 KM |
Images
Nearby Streets
| Name | Average Price | Average Sqft | Distance |
|---|---|---|---|
| Oakley Drive | £ 0 | 0 | 0.00 KM |
| Orchard Mews | £ 475,000 | 0 | 0.00 KM |
| Arlington Close | £ 0 | 0 | 0.00 KM |
| Plummer Court | £ 0 | 0 | 0.00 KM |
| Eastdown Park | £ 0 | 0 | 0.00 KM |
Nearby Transport
| Name | NLC | TLC | Distance |
|---|---|---|---|
| Hither Green | 5107 | HGR | 0.79 KM |
| Ladywell | 5057 | LAD | 1.39 KM |
| Lewisham | 5051 | LEW | 1.83 KM |
| Catford Bridge | 5047 | CFB | 1.97 KM |
| Catford | 5077 | CTF | 2.14 KM |
Nearby Listings
| Address | Price | Type | Score | Distance |
|---|---|---|---|---|
| Springrice Road, Hither Green, London, SE13 | £ 875,000 | BUY | Unknown | 0.05 KM |
| Radford Road, Hither Green, SE13 | £ 475,000 | BUY | 7 / 10 | 0.06 KM |
| Theodore Road, London, SE13 | £ 530,000 | BUY | 7 / 10 | 0.07 KM |
| Radford Road, London, SE13 | £ 500,000 | BUY | 6 / 10 | 0.07 KM |
| Springrice Road, London | £ 1,000,000 | BUY | 6 / 10 | 0.07 KM |
Nearby Properties
| Address | Price | Distance |
|---|---|---|
| 5 Springrice Road | £ 285,000 | 0.06 KM |
| 37 Springrice Road | £ 143,000 | 0.06 KM |
| 41 Springrice Road | £ 115,000 | 0.06 KM |
| 37b Springrice Road | £ 300,000 | 0.06 KM |
| 7b Springrice Road | £ 330,000 | 0.06 KM |