Joseph Scott says ..
ONE BEDROOM, CHAIN FREE, GROUND FLOOR PROPERTY!EXCLUSIVE TO JOSEPH SCOTT ESTATE AGENTS ONE BEDROOM GROUND FLOOR PARKINGCHAIN FREE - VACANT POSSESSION CLOSE TO KEY TRANSPORT LINKSCALL JOSEPH SCOTT ON TO ARRANGE YOUR VIEWING EMAIL TO ARRANGE YOUR VIEWING Tenure - ...
Property Oracle says ..
Therefore, we give this property 5 / 10. *Disclaimer: This is our option and does constitute a recommendation or financial advice. Do your own research. *
- Price
- 6
- Condition
- 8
- Location
- 7
- Land
- 1
- Bedrooms
- 1
- Bathrooms
- 1
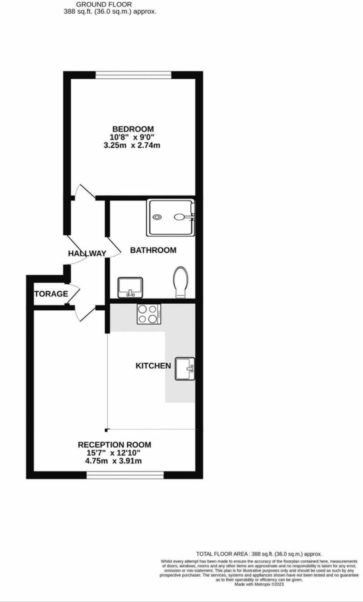
- Sqft (est)
- 387.50
The heatmap indicates the level of crime in the area. The color of the heatmap indicates the crime severity and recency.
Metrics Year-on-Year
- Average area value
- 425,000.00 £Increased by 10.51 %
- Est sale value
- 178,250.00 £Decreased by 11.88 %
- Average area rental value
- 1,646.00 £/moDecreased by 0.60 %
- Est letting value
- 387.50 £/moDecreased by 50.00 %
- Est rental Yield
- 4.65 %Decreased by 10.06 %
- Crime Rate
- 6.00 %Unchanged by 0.00 %
from 384,596.00 £
from 202,275.00 £
from 1,656.00 £/mo
from 775.00 £/mo
from 5.17 %
from 6.00 %
Agent Activity
Joseph Scott created the listing.
Nearby Schools
| Name | Type | Ofsted | Distance |
|---|---|---|---|
| Watling Park School | Free Schools | Good | 0.12 KM |
| The Northgate School | Miscellaneous | 0.40 KM | |
| Northgate School | Pupil Referral Unit | Outstanding | 0.40 KM |
| Shalom Noam Primary School | Voluntary Aided School | 0.50 KM | |
| Menorah Grammar School | Other Independent School | Inadequate | 0.51 KM |
Images
Nearby Streets
| Name | Average Price | Average Sqft | Distance |
|---|---|---|---|
| Compton Close | £ 339,000 | 0 | 0.00 KM |
| Barnfield Road | £ 0 | 0 | 0.00 KM |
| Columbia Avenue | £ 349,950 | 0 | 0.00 KM |
| Langham Road | £ 350,000 | 0 | 0.00 KM |
| A5 | £ 441,650 | 0 | 0.00 KM |
Nearby Transport
| Name | NLC | TLC | Distance |
|---|---|---|---|
| Mill Hill Broadway | 1527 | MIL | 2.23 KM |
| Hendon | 1522 | HEN | 4.44 KM |
| Elstree And Borehamwood | 1542 | ELS | 5.30 KM |
| South Kenton | 1453 | SOK | 6.02 KM |
| Kenton | 1399 | KNT | 6.05 KM |
Nearby Listings
| Address | Price | Type | Score | Distance |
|---|---|---|---|---|
| Pavilion Way, Edgware, HA8 | £ 225,000 | BUY | 5 / 10 | 0.00 KM |
| Pavilion Way, Edgware, HA8 | £ 399,950 | BUY | 6 / 10 | 0.03 KM |
| Pavilion Way, Edgware, HA8 | £ 170,000 | BUY | 5 / 10 | 0.04 KM |
| Grace Close, Pavilion Way, Edgware, London | £ 275,000 | BUY | 6 / 10 | 0.06 KM |
| Pavilion Way, Edgware, HA8 | £ 295,000 | BUY | Unknown | 0.07 KM |
Nearby Properties
| Address | Price | Distance |
|---|---|---|
| 31 Pavilion Way | £ 155,000 | 0.04 KM |
| 15 Pavilion Way | £ 310,000 | 0.04 KM |
| 13 Pavilion Way | £ 165,000 | 0.04 KM |
| 17 Pavilion Way | £ 229,950 | 0.04 KM |
| 9 Pavilion Way | £ 385,000 | 0.04 KM |