Beckfield Lane, York
Churchills Estate Agents logo

Beckfield Lane, York

By Churchills Estate Agents

£ 450,000

Reviews

3 out of 5 stars

Churchills Estate Agents says ..

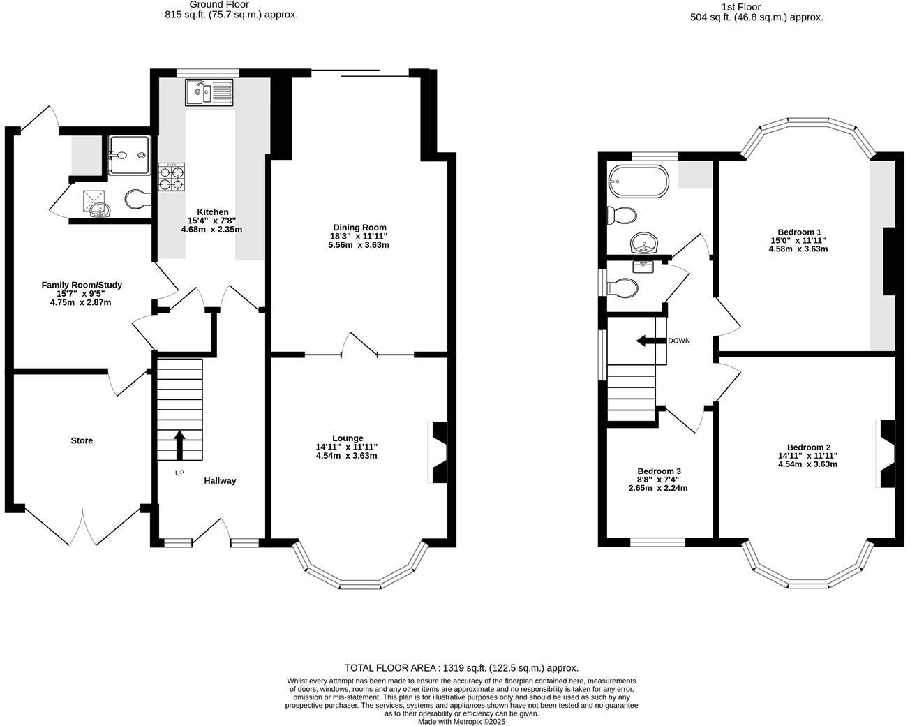
A larger than average traditional three bedroom semi-detached house, extended and updated to a fabulous standard throughout on this well known tree-lined street. Located to the west of York on Beckfield Lane, close to Acomb Green, popular schools and easy access to the City Centre and outer ring ...

Property Oracle says ..

This is a well-presented detached property in a popular residential area of York. The house benefits from a modern interior, a good-sized garden, and off-street parking. While the price is slightly above the average for the area, the condition and location make it an attractive family home. The proximity to local schools and amenities adds to its appeal.

Therefore, we give this property 7 / 10. *Disclaimer: This is our option and does constitute a recommendation or financial advice. Do your own research. *

Price
6
Condition
8
Location
7
Land
7
Bedrooms
3
Bathrooms
3
Sqft (est)
102.78

The heatmap indicates the level of crime in the area. The color of the heatmap indicates the crime severity and recency.

Metrics Year-on-Year

Average area value
591,875.00 £
Increased by 5.13 %
from 562,987.00 £
Est sale value
49,026.06 £
Decreased by 6.47 %
from 52,417.80 £
Average area rental value
1,194.00 £/mo
Decreased by 3.63 %
from 1,239.00 £/mo
Est letting value
0.00 £/mo
Decreased by 100.00 %
from 102.78 £/mo
Est rental Yield
2.42 %
Decreased by 8.33 %
from 2.64 %
Crime Rate
2.00 %
Unchanged by 0.00 %
from 2.00 %

Agent Activity

  • Churchills Estate Agents created the listing.

Nearby Schools

NameTypeOfstedDistance
Carr Infant SchoolCommunity SchoolGood0.80 KM
Carr Junior SchoolAcademy Converter0.91 KM
Carr Children'S CentreChildren's Centre0.91 KM
Westfield Children'S CentreChildren's Centre1.04 KM
Westfield Primary Community SchoolCommunity SchoolGood1.15 KM

Images

077_DSC_4058.jpg 079_DSC_4068.jpg 075_DSC_4048.jpg 073_DSC_4041.jpg 076_DSC_4053.jpg 065_DSC_3998.jpg 064_DSC_3993.jpg 091_DSC_4128.jpg 069_DSC_4018.jpg 068_DSC_4013.jpg 070_DSC_4023.jpg 071_DSC_4028.jpg 072_DSC_4033.jpg 063_DSC_3992.jpg 061_DSC_3978.jpg 051_DSC_3935.jpg 050_DSC_3932.jpg 049_DSC_3925.jpg 054_DSC_3955.jpg 055_DSC_3956.jpg 059_DSC_3971.jpg 087_DSC_4108.jpg 088_DSC_4117.jpg 081_DSC_4078.jpg 089_DSC_4118.jpg 084_DSC_4094.jpg 085_DSC_4098.jpg 053_DSC_3945.jpg 082_DSC_4083.jpg 086_DSC_4103.jpg 092_DSC_4135.jpg

Nearby Streets

NameAverage PriceAverage SqftDistance
Carnoustie Close £ 000.00 KM
Croft Way £ 000.00 KM
Meeting House Lane £ 000.00 KM
Vyner House £ 000.00 KM
Woodlea Grove £ 000.00 KM

Nearby Transport

NameNLCTLCDistance
Poppleton8254POP2.40 KM
York8263YRK4.61 KM

Nearby Listings

AddressPriceTypeScoreDistance
Beckfield Lane, York £ 450,000BUY7 / 100.00 KM
Beckfield Lane, York, North Yorkshire, YO26 £ 435,000BUY7 / 100.00 KM
Beckfield Lane, Acomb, York £ 400,000BUY7 / 100.01 KM
Beckfield Lane, Acomb £ 390,000BUY6 / 100.11 KM
Gresley Court, York £ 190,000BUY6 / 100.14 KM

Nearby Properties

AddressPriceDistance
1 Beckfield Lane £ 155,0000.05 KM
29 Beckfield Lane £ 205,0000.05 KM
63 Beckfield Lane £ 250,0000.05 KM
7 Beckfield Lane £ 242,5000.05 KM
75 Beckfield Lane £ 250,0000.05 KM