Winkworth says ..
Winkworth is delighted to offer to the market this absolutely gorgeous ground-floor maisonette superbly located close to Tooting station and amenities. The property has been beautifully decorated by the current owners and offers light and spacious accommodation throughout as well as a...
Property Oracle says ..
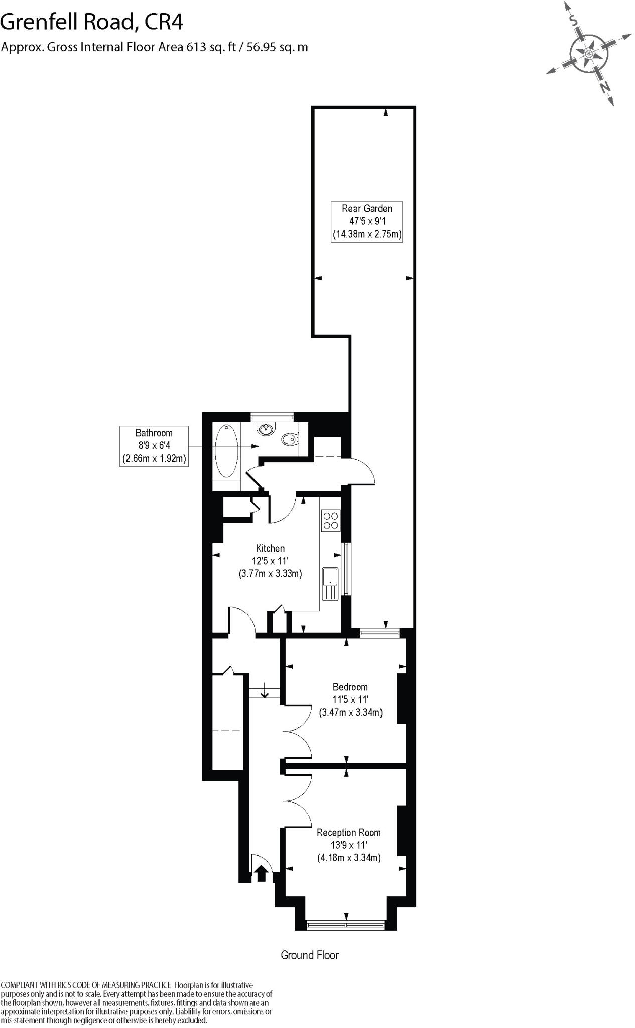
This is a ground floor flat in Mitcham, offering one bedroom and one bathroom. The property appears to be in good condition, with modern interiors. It benefits from a garden, which adds to its appeal. The location offers reasonable access to transportation and schools. The price is slightly above the average price per square foot for the area, but this may be justified by the property’s condition and features. Overall, it presents a potentially attractive opportunity for buyers.
Therefore, we give this property 7 / 10. *Disclaimer: This is our option and does constitute a recommendation or financial advice. Do your own research. *
- Price
- 7
- Condition
- 8
- Location
- 7
- Land
- 6
- Bedrooms
- 1
- Bathrooms
- 1
- Sqft (est)
- 613.00
The heatmap indicates the level of crime in the area. The color of the heatmap indicates the crime severity and recency.
Metrics Year-on-Year
- Average area value
- 685,278.00 £Increased by 17.39 %
- Est sale value
- 342,054.00 £Decreased by 18.30 %
- Average area rental value
- 2,413.00 £/moDecreased by 6.91 %
- Est letting value
- 613.00 £/moDecreased by 66.67 %
- Est rental Yield
- 4.23 %Decreased by 20.64 %
- Crime Rate
- 9.00 %Unchanged by 0.00 %
Agent Activity
Winkworth created the listing.
Nearby Schools
| Name | Type | Ofsted | Distance |
|---|---|---|---|
| Lavender Children'S Centre | Children's Centre Linked Site | 0.25 KM | |
| Links Primary School | Community School | Good | 0.60 KM |
| Francis Barber Pupil Referral Unit | Pupil Referral Unit | Good | 0.85 KM |
| Tooting Primary School | Free Schools | Outstanding | 0.87 KM |
| Gorringe Park Primary School | Community School | Good | 0.91 KM |
Images
Nearby Streets
| Name | Average Price | Average Sqft | Distance |
|---|---|---|---|
| London Road | £ 0 | 0 | 0.00 KM |
| Victoria Road | £ 608,333 | 0 | 0.00 KM |
| North Place | £ 0 | 0 | 0.00 KM |
| Watson Close | £ 375,000 | 0 | 0.00 KM |
| Saint Benedict's Close | £ 335,000 | 0 | 0.00 KM |
Nearby Transport
| Name | NLC | TLC | Distance |
|---|---|---|---|
| Tooting | 5389 | TOO | 0.10 KM |
| Mitcham Eastfields | 5069 | MTC | 1.44 KM |
| Streatham Common | 5384 | SRC | 2.74 KM |
| Balham | 5399 | BAL | 2.84 KM |
| Mitcham Junction | 5427 | MIJ | 2.93 KM |
Nearby Listings
| Address | Price | Type | Score | Distance |
|---|---|---|---|---|
| Grenfell Road, Mitcham, CR4 | £ 385,000 | BUY | 7 / 10 | 0.00 KM |
| Grenfell Road, Mitcham, Surrey, CR4 | £ 375,000 | BUY | Unknown | 0.01 KM |
| Grenfell Road, Mitcham, Surrey, CR4 | £ 375,000 | BUY | Unknown | 0.01 KM |
| Grenfell Road, Mitcham, CR4 | £ 450,000 | BUY | 5 / 10 | 0.01 KM |
| Grenfell Road, Mitcham, CR4 | £ 325,000 | BUY | Unknown | 0.01 KM |
Nearby Properties
| Address | Price | Distance |
|---|---|---|
| 30 Grenfell Road | £ 15,200 | 0.01 KM |
| 18a Grenfell Road | £ 322,000 | 0.01 KM |
| 4 Grenfell Road | £ 385,000 | 0.01 KM |
| 10a Grenfell Road | £ 172,000 | 0.01 KM |
| 30a Grenfell Road | £ 171,500 | 0.01 KM |