Ottery Saint Mary
By Wilkinson Grant & Co Land & Investment
£ 475,000
Reviews
2 out of 5 stars
Wilkinson Grant & Co Land & Investment says ..
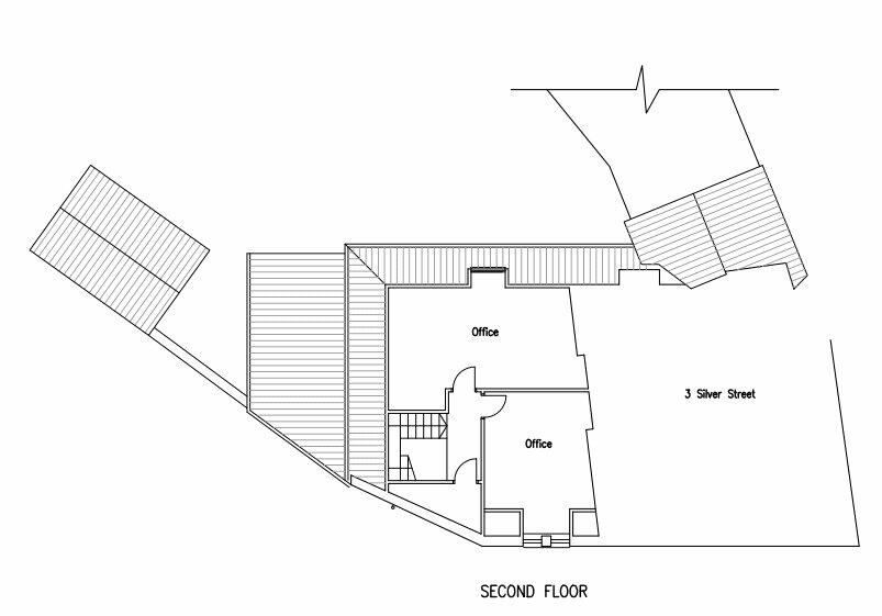
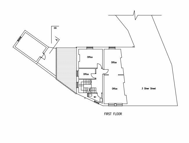
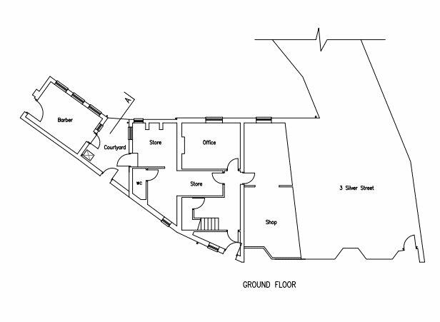
MIXED USE INVESTMENT & DEVELOPMENT. With an INCOME of c.£36,000. This commanding building offers COMMERCIAL CONVERSION OPPORTUNITY (STP) as well as an established mixed use INVESTMENT.
Property Oracle says ..
This property in Ottery St Mary presents a unique opportunity for an investor or an owner-occupier. It is a mixed-use building combining commercial space with residential accommodation on upper floors. The ground floor comprises commercial units, currently operating as a wine shop and a leather goods repair shop. The photos reveal what appears to be a functioning business. The residential units are upstairs with a layout that offers a mix of smaller and larger office spaces across multiple floors. The upper floor spaces would benefit from some updates and modernisation to bring them fully in line with current market standards. The property has a small courtyard garden at the rear. Whilst the price is somewhat high considering similar properties in the immediate vicinity, it’s likely influenced by the inclusion of the commercial units that generate income. The lack of specific square footage information for both the commercial and residential areas prevents a complete evaluation of the price per square foot and makes detailed comparisons with similar properties in the area difficult. A thorough survey would be crucial before a final decision. Investors should carefully analyze the income potential of the commercial spaces and potential tenant demand. For the owner-occupier, understanding renovation costs and determining the value of combining residential and commercial space would be important before deciding whether the price is reasonable.
Therefore, we give this property 5 / 10. *Disclaimer: This is our option and does constitute a recommendation or financial advice. Do your own research. *
- Price
- 7
- Condition
- 6
- Location
- 7
- Land
- 3
- Bedrooms
- 4
- Bathrooms
- 2
The heatmap indicates the level of crime in the area. The color of the heatmap indicates the crime severity and recency.
Metrics Year-on-Year
- Average area value
- 400,000.00 £Increased by 7.31 %
- Average area rental value
- 850.00 £/moDecreased by 13.00 %
- Est rental Yield
- 2.55 %Decreased by 19.05 %
- Crime Rate
- 134.00 %Unchanged by 0.00 %
Agent Activity
Wilkinson Grant & Co Land & Investment created the listing.
Nearby Schools
| Name | Type | Ofsted | Distance |
|---|---|---|---|
| Ottery St Mary Children'S Centre | Children's Centre | 0.14 KM | |
| Ottery St Mary Primary School | Foundation School | Good | 0.93 KM |
| The King'S School | Academy Converter | Outstanding | 1.49 KM |
| Tipton St John Church Of England Primary School | Voluntary Aided School | Good | 3.95 KM |
| Feniton Church Of England Primary School | Voluntary Aided School | Outstanding | 3.99 KM |
Images
Nearby Streets
| Name | Average Price | Average Sqft | Distance |
|---|---|---|---|
| Winter's Lane | £ 0 | 0 | 0.00 KM |
| New Lane | £ 0 | 0 | 0.00 KM |
| Coleridge Bridge | £ 220,000 | 0 | 0.00 KM |
| Furzebrook | £ 0 | 0 | 0.00 KM |
| Colebred Close | £ 0 | 0 | 0.00 KM |
Nearby Transport
| Name | NLC | TLC | Distance |
|---|---|---|---|
| Feniton | 5808 | FNT | 3.97 KM |
| Whimple | 5759 | WHM | 8.51 KM |
Nearby Listings
| Address | Price | Type | Score | Distance |
|---|---|---|---|---|
| Ottery Saint Mary | £ 325,000 | BUY | 5 / 10 | 0.00 KM |
| Ottery St Mary | £ 325,000 | BUY | 7 / 10 | 0.03 KM |
| Broad Street, Ottery St Mary | £ 145,000 | BUY | Unknown | 0.03 KM |
| Jesu Street, Ottery St Mary | £ 165,000 | BUY | 6 / 10 | 0.12 KM |
| Mill Street, Ottery St. Mary, Devon, EX11 | £ 100,000 | BUY | 4 / 10 | 0.13 KM |
Nearby Properties
| Address | Price | Distance |
|---|---|---|
| Trumps Lodge | £ 285,000 | 0.05 KM |
| 9a Silver Street | £ 90,000 | 0.05 KM |
| 15a Silver Street | £ 157,000 | 0.05 KM |
| 23 Silver Street | £ 300,000 | 0.05 KM |
| 7 Tip Hill | £ 150,000 | 0.14 KM |