PR
Kibble Green, Bracknell, Berkshire, RG12
By Prospect Estate Agency
£ 390,000
Reviews
3 out of 5 stars
Prospect Estate Agency says ..
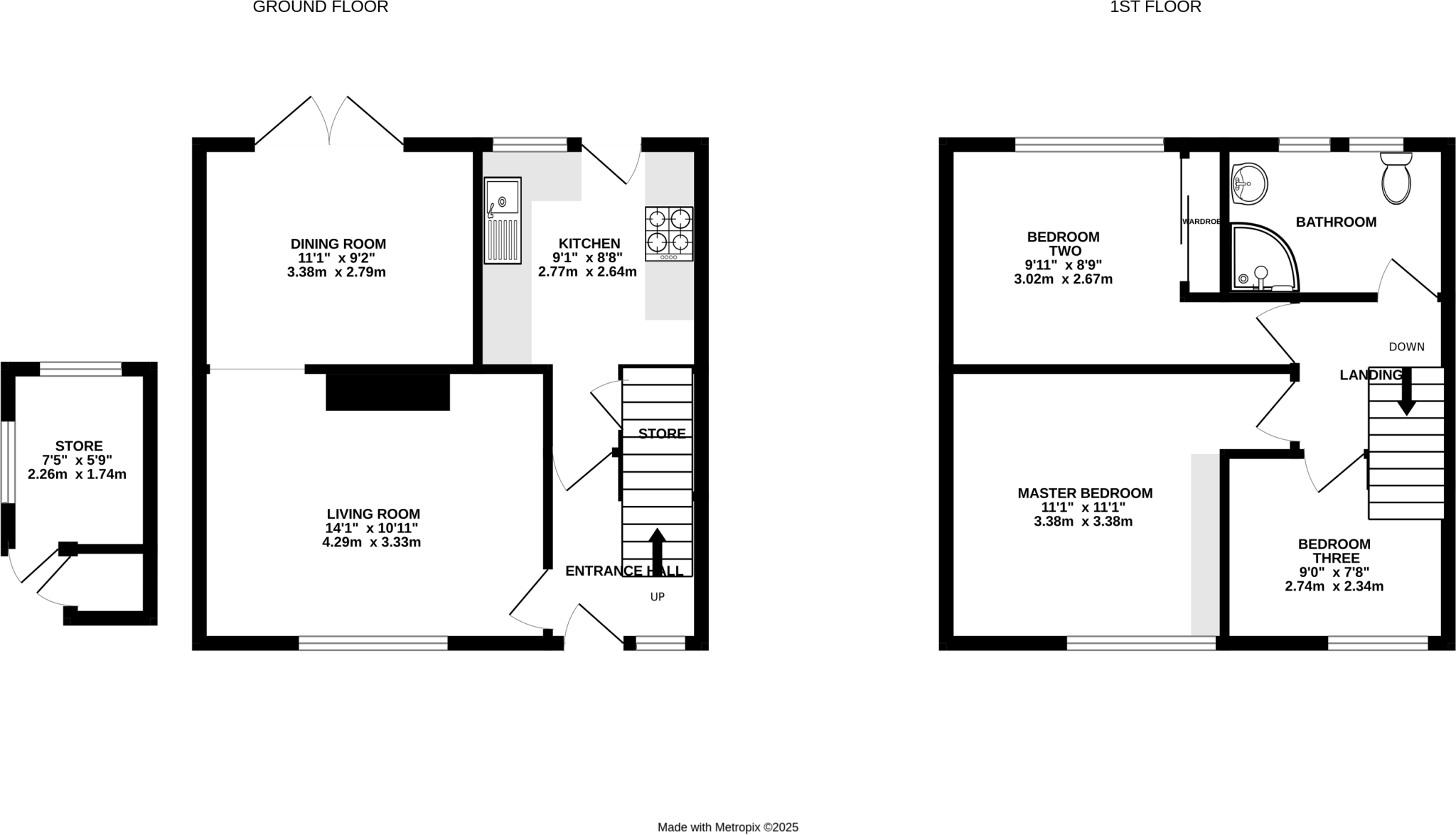
NO ONWARD CHAIN This terraced home is presented in good order throughout and is conveniently located near Bracknell’s town centre. The ground floor has an entrance hall with storage, living room, dining room with doors out to the rear garden, kitchen with doors out to...
Property Oracle says ..
Therefore, we give this property 6 / 10. *Disclaimer: This is our option and does constitute a recommendation or financial advice. Do your own research. *
- Price
- 6
- Condition
- 6
- Location
- 7
- Land
- 7
- Bedrooms
- 3
- Bathrooms
- 1
- Sqft (est)
- 654.88
The heatmap indicates the level of crime in the area. The color of the heatmap indicates the crime severity and recency.
Metrics Year-on-Year
- Average area value
- 260,000.00 £Decreased by 33.37 %
- Est sale value
- 325,475.36 £Increased by 19.47 %
- Average area rental value
- 1,598.00 £/moDecreased by 1.84 %
- Est letting value
- 1,964.64 £/moIncreased by 200.00 %
- Est rental Yield
- 7.38 %Increased by 47.31 %
- Crime Rate
- 4.00 %Unchanged by 0.00 %
from 390,213.00 £
from 272,430.08 £
from 1,628.00 £/mo
from 654.88 £/mo
from 5.01 %
from 4.00 %
Agent Activity
Prospect Estate Agency created the listing.
Nearby Schools
| Name | Type | Ofsted | Distance |
|---|---|---|---|
| Fox Hill Primary School | Community School | Good | 0.71 KM |
| Rowans And Sycamores Children'S Centre | Children's Centre | 0.78 KM | |
| The Brakenhale School | Academy Sponsor Led | Good | 1.01 KM |
| Birch Hill Primary School | Community School | Good | 1.12 KM |
| Crown Wood Primary School | Academy Converter | 1.24 KM |
Images
Nearby Streets
| Name | Average Price | Average Sqft | Distance |
|---|---|---|---|
| Sports Centre Roundabout | £ 0 | 0 | 0.00 KM |
| A322 | £ 0 | 0 | 0.00 KM |
| Bagshot Road | £ 296,000 | 0 | 0.00 KM |
| Bagshot Road | £ 0 | 0 | 0.00 KM |
| Harmanswater Road | £ 0 | 0 | 0.00 KM |
Nearby Transport
| Name | NLC | TLC | Distance |
|---|---|---|---|
| Bracknell | 5693 | BCE | 1.63 KM |
| Martins Heron | 5692 | MAO | 2.62 KM |
| Camberley | 5682 | CAM | 7.02 KM |
| Bagshot | 5681 | BAG | 7.50 KM |
| Ascot (Berks) | 5666 | ACT | 7.87 KM |
Nearby Listings
| Address | Price | Type | Score | Distance |
|---|---|---|---|---|
| Kibble Green, Bracknell, Berkshire, RG12 | £ 390,000 | BUY | 6 / 10 | 0.00 KM |
| Kibble Green, Bracknell, Berkshire, RG12 | £ 465,000 | BUY | 7 / 10 | 0.01 KM |
| Kibble Green, Bracknell, Berkshire, RG12 | £ 400,000 | BUY | 7 / 10 | 0.01 KM |
| Rickman Close, Bracknell, Berkshire, RG12 | £ 375,000 | BUY | 7 / 10 | 0.11 KM |
| Manston Drive, Bracknell, Berkshire | £ 450,000 | BUY | 7 / 10 | 0.15 KM |
Nearby Properties
| Address | Price | Distance |
|---|---|---|
| 17 Kibble Green | £ 219,000 | 0.01 KM |
| 11 Kibble Green | £ 295,000 | 0.01 KM |
| 16 Kibble Green | £ 198,500 | 0.01 KM |
| 10 Kibble Green | £ 320,000 | 0.01 KM |
| 3 Wagbullock Rise | £ 181,000 | 0.04 KM |