Holden Road, Woodside Park, N12
By Chancellors
£ 500,000
Reviews
3 out of 5 stars
Chancellors says ..
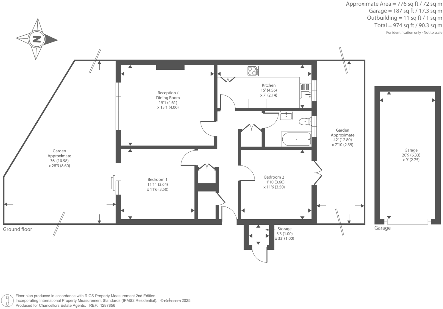
Located in the heart of Woodside Park and within 0.2 miles of Woodside Park tube station is this purpose-built ground floor garden maisonette.
Property Oracle says ..
This maisonette is located in Woodside Park, a suburb of Barnet in North London. The property itself is a two-bedroom, one-bathroom maisonette with a sizeable floor area of 1,785 sqft and a garden. The interior appears well-maintained and modern, with updated kitchen appliances and a pleasant living area. The location benefits from proximity to several well-regarded schools, including St Michael’s Catholic Grammar School (Outstanding Ofsted rating) and The Holmewood School (Good Ofsted rating), both within a short distance. Transport links may require further investigation to determine their suitability. The list price of £500,000 is lower than the average price for the area (£632,180), but the average sqft price in the area is higher than that of the property. More information on the surrounding properties would help determine a more accurate assessment of the price.
Therefore, we give this property 7 / 10. *Disclaimer: This is our option and does constitute a recommendation or financial advice. Do your own research. *
- Price
- 7
- Condition
- 8
- Location
- 7
- Land
- 7
- Bedrooms
- 2
- Bathrooms
- 1
- Sqft (est)
- 1,785.00
- Lot (est)
- 974.00
The heatmap indicates the level of crime in the area. The color of the heatmap indicates the crime severity and recency.
Metrics Year-on-Year
- Average area value
- 659,086.00 £Increased by 6.43 %
- Est sale value
- 1,479,765.00 £Increased by 20.49 %
- Average area rental value
- 2,352.00 £/moDecreased by 3.41 %
- Est letting value
- 3,570.00 £/moUnchanged by 0.00 %
- Est rental Yield
- 4.28 %Decreased by 9.32 %
- Crime Rate
- 7.00 %Unchanged by 0.00 %
Agent Activity
Chancellors created the listing.
Nearby Schools
| Name | Type | Ofsted | Distance |
|---|---|---|---|
| The Holmewood School | Other Independent Special School | Good | 0.21 KM |
| St Michael'S Catholic Grammar School | Voluntary Aided School | Outstanding | 0.54 KM |
| Moss Hall Nursery School | Local Authority Nursery School | Outstanding | 0.64 KM |
| Northside Primary School | Community School | Outstanding | 0.65 KM |
| Moss Hall Junior School | Community School | Requires improvement | 0.71 KM |
Images
Nearby Streets
| Name | Average Price | Average Sqft | Distance |
|---|---|---|---|
| Station Approach | £ 0 | 0 | 0.00 KM |
| Woodside Court | £ 850,000 | 0 | 0.00 KM |
| Coleridge Road | £ 0 | 0 | 0.00 KM |
| High Road | £ 0 | 0 | 0.00 KM |
| Finchley Court | £ 0 | 0 | 0.00 KM |
Nearby Transport
| Name | NLC | TLC | Distance |
|---|---|---|---|
| Oakleigh Park | 6020 | OKL | 3.18 KM |
| New Barnet | 6018 | NBA | 3.84 KM |
| New Southgate | 6019 | NSG | 4.67 KM |
| Hadley Wood | 6075 | HDW | 5.90 KM |
| Mill Hill Broadway | 1527 | MIL | 7.09 KM |
Nearby Listings
| Address | Price | Type | Score | Distance |
|---|---|---|---|---|
| Holden Road, Woodside Park, N12 | £ 500,000 | BUY | 7 / 10 | 0.00 KM |
| Holden Road, Woodside Park, N12 | £ 975,000 | BUY | 6 / 10 | 0.03 KM |
| Holmdene, Holden Road, London, N12 | £ 650,000 | BUY | 7 / 10 | 0.04 KM |
| Holden Road, London | £ 450,000 | BUY | 6 / 10 | 0.04 KM |
| Holden Avenue, London | £ 500,000 | BUY | 6 / 10 | 0.08 KM |
Nearby Properties
| Address | Price | Distance |
|---|---|---|
| 35 Holden Road | £ 2,000,000 | 0.04 KM |
| 27a Holden Road | £ 430,000 | 0.04 KM |
| 1a Holden Avenue | £ 215,000 | 0.07 KM |
| 29 Holden Road | £ 850,000 | 0.09 KM |
| 14a Avondale Avenue | £ 615,000 | 0.10 KM |