Logan Street, Market Harborough
By McCallum Marsh
£ 425,000
Reviews
3 out of 5 stars
McCallum Marsh says ..
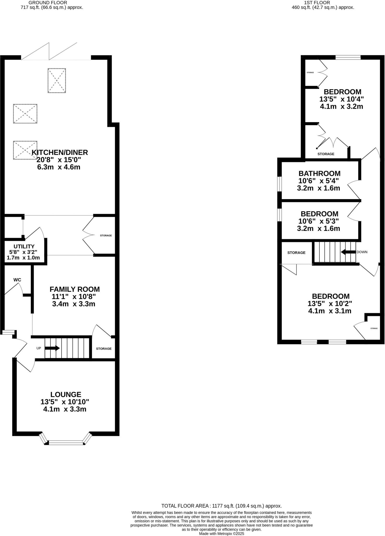
A stunning and extensively renovated semi-detached Victorian 3 bedroomed property finished to a very high specification in the very well sought after location of Logan Street. This exceptional family home presents a rare opportunity to acquire a spacious, open plan, stylish, and functional reside...
Property Oracle says ..
This is a well-presented, three-bedroom semi-detached property located on Logan Street in Market Harborough. The house benefits from a modern kitchen and bathroom, a well-maintained garden, and convenient access to local amenities. The property is in good condition and would make an ideal family home. While the price is slightly above some recent listings on the same street, the overall condition and desirable location justify the asking price.
Therefore, we give this property 7 / 10. *Disclaimer: This is our option and does constitute a recommendation or financial advice. Do your own research. *
- Price
- 6
- Condition
- 8
- Location
- 7
- Land
- 7
- Bedrooms
- 3
- Bathrooms
- 1
- Sqft (est)
- 1,177.00
The heatmap indicates the level of crime in the area. The color of the heatmap indicates the crime severity and recency.
Metrics Year-on-Year
- Average area value
- 593,306.00 £Increased by 37.78 %
- Est sale value
- 441,375.00 £Increased by 28.87 %
- Average area rental value
- 1,150.00 £/moDecreased by 17.56 %
- Est letting value
- 0.00 £/mo
- Est rental Yield
- 2.33 %Decreased by 40.10 %
- Crime Rate
- 5.00 %Unchanged by 0.00 %
Agent Activity
McCallum Marsh created the listing.
Nearby Schools
| Name | Type | Ofsted | Distance |
|---|---|---|---|
| Market Harborough Church Of England Academy | Academy Converter | Good | 0.45 KM |
| St Joseph'S Catholic Voluntary Academy | Academy Converter | Good | 0.53 KM |
| Market Harborough Sure Start Children'S Centre | Children's Centre | 0.68 KM | |
| Brooke House College | Other Independent School | 0.82 KM | |
| Welland Park Academy | Academy Converter | Good | 0.91 KM |
Images
Nearby Streets
| Name | Average Price | Average Sqft | Distance |
|---|---|---|---|
| Victoria Mews | £ 0 | 0 | 0.00 KM |
| Holly Close | £ 260,000 | 0 | 0.00 KM |
| Bowden Lane | £ 37,500 | 0 | 0.00 KM |
| Fleetwood Close | £ 0 | 0 | 0.00 KM |
| Montrose Close | £ 320,000 | 0 | 0.00 KM |
Nearby Transport
| Name | NLC | TLC | Distance |
|---|---|---|---|
| Market Harborough | 1909 | MHR | 2.39 KM |
Nearby Listings
| Address | Price | Type | Score | Distance |
|---|---|---|---|---|
| Logan Street, Market Harborough | £ 425,000 | BUY | 7 / 10 | 0.00 KM |
| Logan Street, Market Harborough | £ 240,000 | BUY | 7 / 10 | 0.01 KM |
| Logan Street | £ 195,000 | BUY | 6 / 10 | 0.02 KM |
| Clarke Street, Market Harborough, LE16 9AD | £ 360,000 | BUY | 7 / 10 | 0.08 KM |
| Clarke Street, Market Harborough | £ 300,000 | BUY | 7 / 10 | 0.10 KM |
Nearby Properties
| Address | Price | Distance |
|---|---|---|
| 71 Logan Street | £ 225,000 | 0.01 KM |
| 39 Logan Street | £ 47,500 | 0.01 KM |
| 59 Logan Street | £ 54,000 | 0.01 KM |
| 95 Logan Street | £ 365,000 | 0.01 KM |
| 61 Logan Street | £ 225,000 | 0.01 KM |