Ocean says ..
This well presented semi detached home with a large sunny garden is in a popular and sought after BS9 location.
Property Oracle says ..
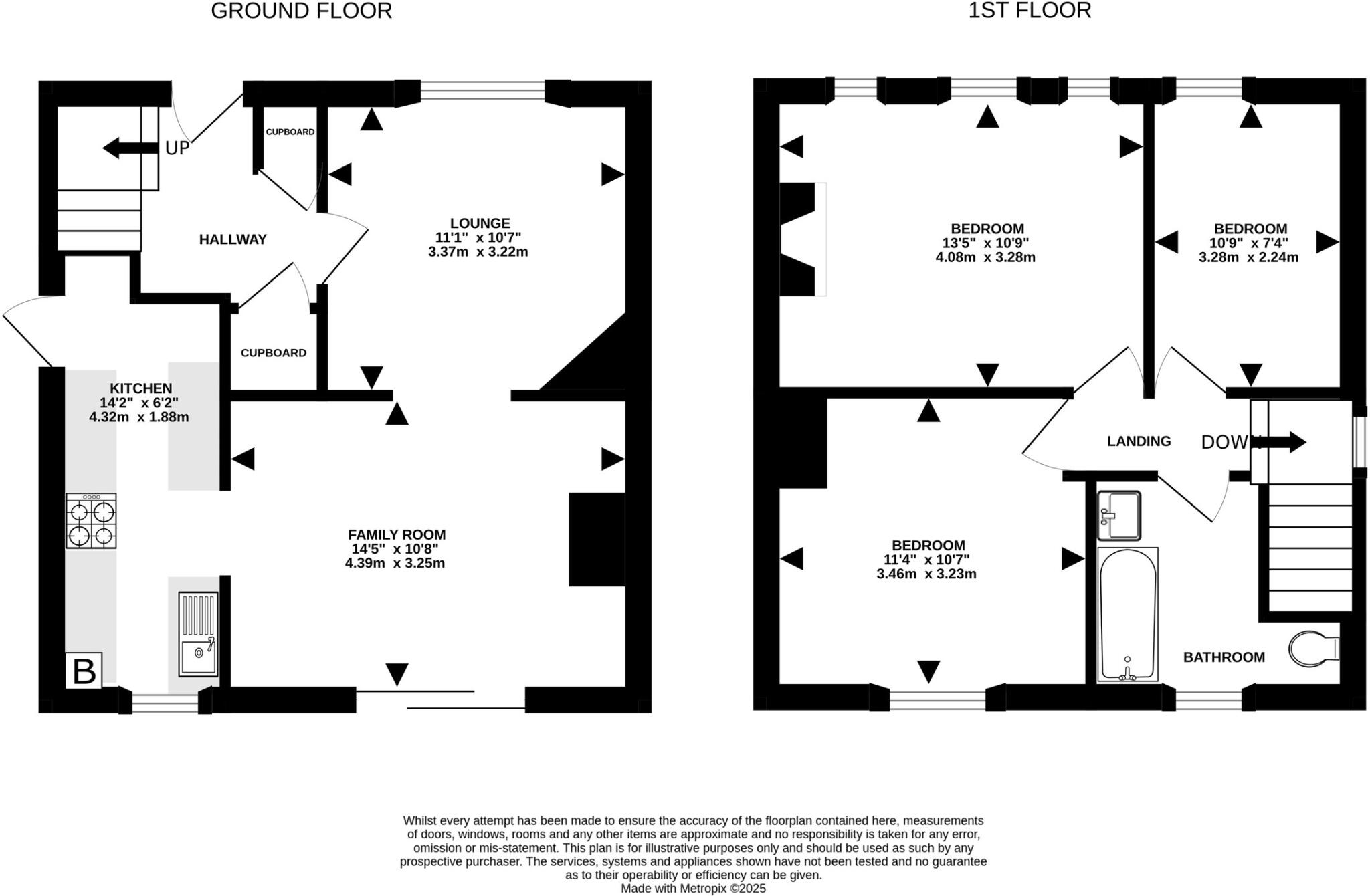
This property is a 3-bedroom semi-detached house located in Stoke Bishop, Bristol. The location benefits from being relatively close to Sea Mills train station and several well-regarded primary schools, including Sea Mills Primary School and Stoke Bishop Church of England Primary School. The property itself appears to be in good condition, with a recently updated interior and a well-maintained garden, including a patio area and a shed. The list price of £435,000 is slightly below the average price for the area (£559,998), and given the property’s condition and location, it could be considered good value for money, although more information on the plot size would be beneficial in making a more comprehensive assessment. The house has a modern feel, and the images suggest it is well-maintained and updated.
Therefore, we give this property 7 / 10. *Disclaimer: This is our option and does constitute a recommendation or financial advice. Do your own research. *
- Price
- 7
- Condition
- 8
- Location
- 8
- Land
- 7
- Bedrooms
- 3
- Bathrooms
- 1
- Sqft (est)
- 1,552.16
The heatmap indicates the level of crime in the area. The color of the heatmap indicates the crime severity and recency.
Metrics Year-on-Year
- Average area value
- 1,248,571.00 £Increased by 64.32 %
- Est sale value
- 1,299,157.92 £Increased by 81.17 %
- Average area rental value
- 1,599.00 £/moDecreased by 19.61 %
- Est letting value
- 1,552.16 £/moUnchanged by 0.00 %
- Est rental Yield
- 1.54 %Decreased by 50.96 %
- Crime Rate
- 23.00 %Unchanged by 0.00 %
Agent Activity
Ocean created the listing.
Nearby Schools
| Name | Type | Ofsted | Distance |
|---|---|---|---|
| Sea Mills Primary School And Children'S Centre | Children's Centre | 0.53 KM | |
| Sea Mills Primary School | Community School | Good | 0.85 KM |
| Stoke Bishop Church Of England Primary School | Academy Converter | Good | 1.20 KM |
| Kingsweston School | Community Special School | Good | 1.26 KM |
| Grace Garden School | Other Independent Special School | 1.64 KM |
Images
Nearby Streets
| Name | Average Price | Average Sqft | Distance |
|---|---|---|---|
| Ashcroft Road | £ 0 | 0 | 0.00 KM |
| West Parade | £ 0 | 0 | 0.00 KM |
| Sunny Hill | £ 375,000 | 0 | 0.00 KM |
| East Parade | £ 395,000 | 0 | 0.00 KM |
| Weston Close | £ 400,000 | 0 | 0.00 KM |
Nearby Transport
| Name | NLC | TLC | Distance |
|---|---|---|---|
| Sea Mills | 3254 | SML | 1.32 KM |
| Shirehampton | 3206 | SHH | 3.61 KM |
| Clifton Down | 3202 | CFN | 4.96 KM |
| Avonmouth | 3200 | AVN | 5.84 KM |
| St Andrews Road | 3252 | SAR | 5.90 KM |
Nearby Listings
| Address | Price | Type | Score | Distance |
|---|---|---|---|---|
| Sylvan Way, Bristol | £ 435,000 | BUY | 7 / 10 | 0.00 KM |
| Sylvan Way, Sea Mills | £ 425,000 | BUY | 7 / 10 | 0.01 KM |
| Sylvan Way, Bristol, BS9 | £ 535,000 | BUY | 7 / 10 | 0.09 KM |
| Sunny Hill, Sea Mills, Bristol | £ 399,950 | BUY | 7 / 10 | 0.10 KM |
| CASH BUYERS ONLY | SEA MILLS | £ 135,000 | BUY | 5 / 10 | 0.12 KM |
Nearby Properties
| Address | Price | Distance |
|---|---|---|
| 74 Sylvan Way | £ 321,000 | 0.05 KM |
| 84 Sylvan Way | £ 153,500 | 0.05 KM |
| 88 Sylvan Way | £ 322,000 | 0.05 KM |
| 6 Hallen Drive | £ 194,000 | 0.09 KM |
| 85 Sylvan Way | £ 175,000 | 0.09 KM |