BR
Gillian Avenue, Aldershot, Hampshire, GU12
By Bridges Estate Agents
£ 450,000
Reviews
3 out of 5 stars
Bridges Estate Agents says ..
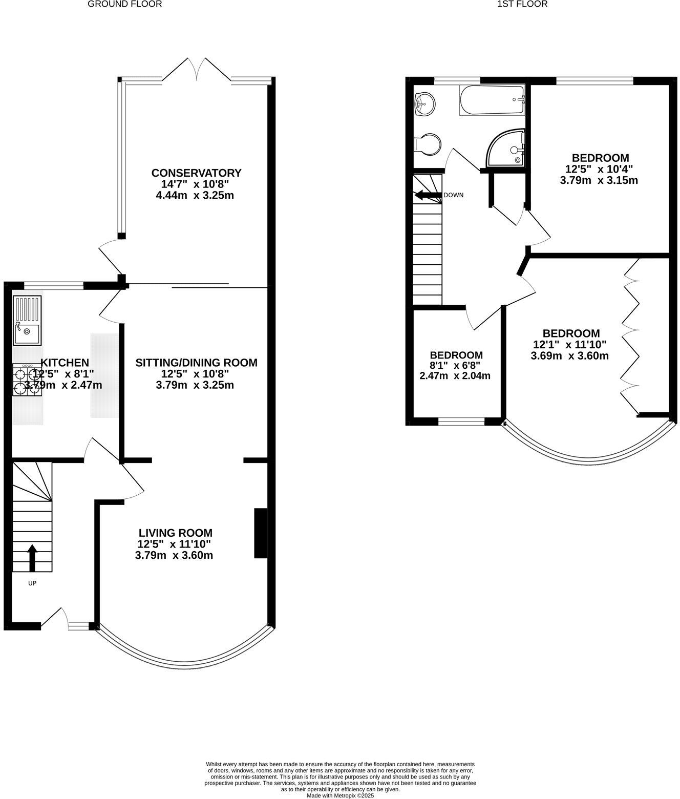
A semi-detached family home, positioned on a well regarded residential road. Set over two floors and with internal accommodation presented in good order throughout. The property benefits from three bedrooms and an open plan reception room - alongside a conservatory with underfloor heating and a d...
Property Oracle says ..
Therefore, we give this property 6 / 10. *Disclaimer: This is our option and does constitute a recommendation or financial advice. Do your own research. *
- Price
- 6
- Condition
- 7
- Location
- 7
- Land
- 7
- Bedrooms
- 3
- Bathrooms
- 1
- Sqft (est)
- 865.77
The heatmap indicates the level of crime in the area. The color of the heatmap indicates the crime severity and recency.
Metrics Year-on-Year
- Average area value
- 250,000.00 £Increased by 29.42 %
- Est sale value
- 258,865.23 £Increased by 32.89 %
- Average area rental value
- 833.00 £/moDecreased by 23.08 %
- Est letting value
- 0.00 £/moDecreased by 100.00 %
- Est rental Yield
- 4.00 %Decreased by 40.56 %
- Crime Rate
- 3.00 %Unchanged by 0.00 %
from 193,175.00 £
from 194,798.25 £
from 1,083.00 £/mo
from 865.77 £/mo
from 6.73 %
from 3.00 %
Agent Activity
Bridges Estate Agents created the listing.
Nearby Schools
| Name | Type | Ofsted | Distance |
|---|---|---|---|
| Park Primary School | Community School | Good | 0.61 KM |
| St Michael'S Church Of England Controlled Junior School | Voluntary Controlled School | Requires improvement | 0.72 KM |
| Sunflowers Children'S Centre | Children's Centre Linked Site | 0.77 KM | |
| St Michael'S Church Of England Controlled Infant School | Voluntary Controlled School | Outstanding | 0.94 KM |
| Maple Vue Children'S Centre | Children's Centre | 1.03 KM |
Images
Nearby Streets
| Name | Average Price | Average Sqft | Distance |
|---|---|---|---|
| Orchard Way | £ 400,000 | 0 | 0.00 KM |
| Church Road | £ 395,000 | 0 | 0.00 KM |
| Hop Kiln Villas | £ 0 | 0 | 0.00 KM |
| Newport Road | £ 307,778 | 0 | 0.00 KM |
| Churchill Avenue | £ 566,667 | 0 | 0.00 KM |
Nearby Transport
| Name | NLC | TLC | Distance |
|---|---|---|---|
| Aldershot | 5623 | AHT | 1.54 KM |
| Ash | 5641 | ASH | 4.02 KM |
| North Camp | 5636 | NCM | 4.43 KM |
| Ash Vale | 5547 | AHV | 4.64 KM |
| Farnham | 5545 | FNH | 5.82 KM |
Nearby Listings
| Address | Price | Type | Score | Distance |
|---|---|---|---|---|
| Gillian Avenue, Aldershot, Hampshire, GU12 | £ 450,000 | BUY | 6 / 10 | 0.00 KM |
| Gillian Avenue, Aldershot, Surrey, GU12 | £ 450,000 | BUY | 7 / 10 | 0.06 KM |
| Gillian Avenue, Aldershot, Hampshire, GU12 | £ 500,000 | BUY | 7 / 10 | 0.12 KM |
| Gillian Close, Aldershot | £ 350,000 | BUY | 6 / 10 | 0.12 KM |
| Lower Farnham Road, Aldershot, Hampshire | £ 450,000 | BUY | 7 / 10 | 0.13 KM |
Nearby Properties
| Address | Price | Distance |
|---|---|---|
| 41 Gillian Avenue | £ 327,500 | 0.05 KM |
| 7 Gillian Avenue | £ 425,000 | 0.05 KM |
| 35 Gillian Avenue | £ 425,000 | 0.05 KM |
| 33 Gillian Avenue | £ 370,000 | 0.05 KM |
| 66 Gillian Avenue | £ 225,000 | 0.05 KM |