BE
Cannock Walk, Fareham, Hampshire, PO14
By Beals
£ 150,000
Reviews
2 out of 5 stars
Beals says ..
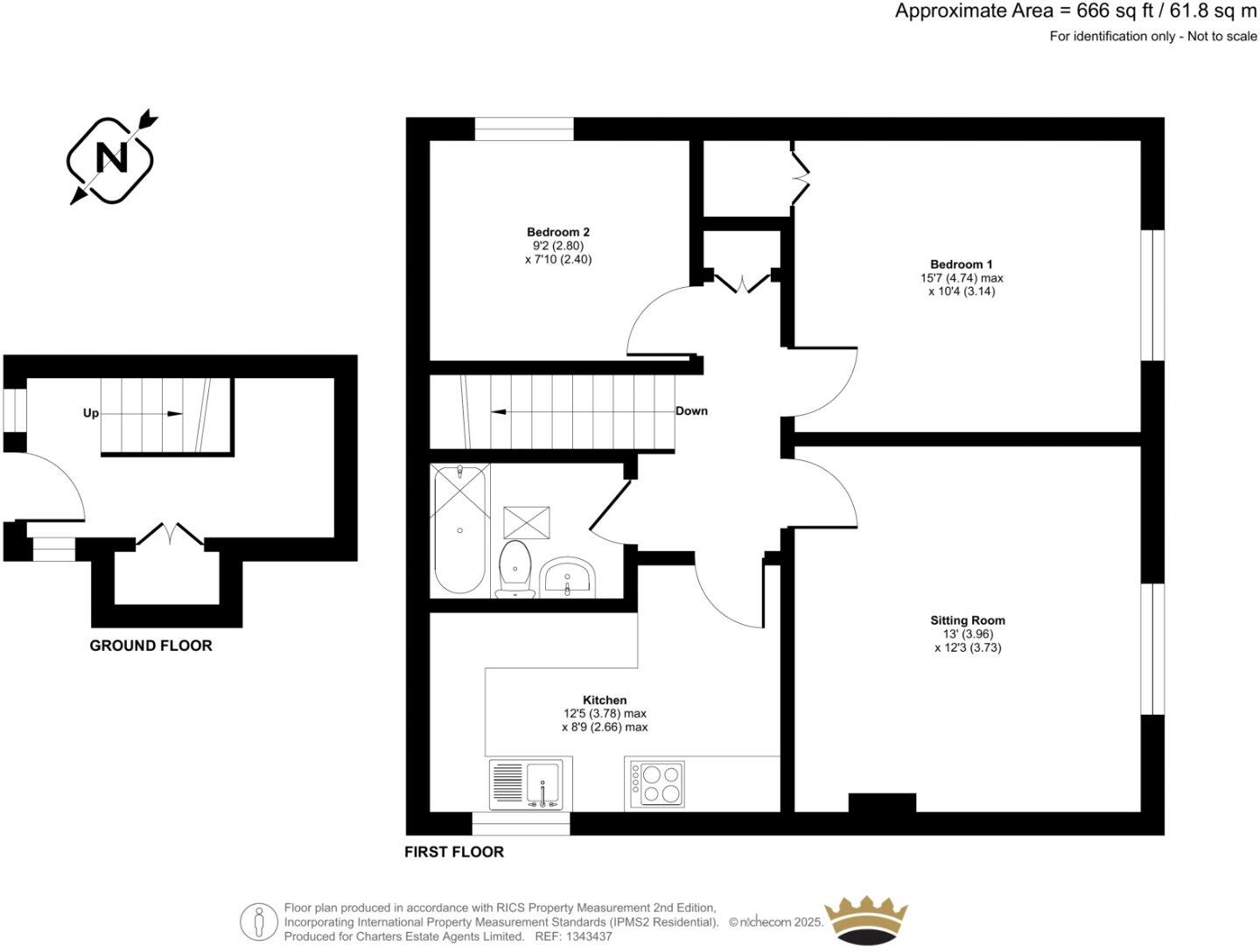
No forward chain, two-bedroom first-floor maisonette is an ideal opportunity for first-time buyers or buy-to-let investors low service and ground rent, long lease, 9% Gross Yield rental value circa £1,100 PCM.
Property Oracle says ..
Therefore, we give this property 5 / 10. *Disclaimer: This is our option and does constitute a recommendation or financial advice. Do your own research. *
- Price
- 8
- Condition
- 6
- Location
- 7
- Land
- 1
- Bedrooms
- 2
- Bathrooms
- 1
- Sqft (est)
- 666.00
The heatmap indicates the level of crime in the area. The color of the heatmap indicates the crime severity and recency.
Metrics Year-on-Year
- Average area value
- 326,999.00 £Increased by 18.52 %
- Est sale value
- 277,056.00 £Increased by 10.34 %
- Average area rental value
- 1,223.00 £/moIncreased by 7.00 %
- Est letting value
- 666.00 £/moUnchanged by 0.00 %
- Est rental Yield
- 4.49 %Decreased by 9.66 %
- Crime Rate
- 0.00 %
from 275,912.00 £
from 251,082.00 £
from 1,143.00 £/mo
from 666.00 £/mo
from 4.97 %
from 0.00 %
Agent Activity
Beals created the listing.
Nearby Schools
| Name | Type | Ofsted | Distance |
|---|---|---|---|
| Merryfields Children'S Centre | Children's Centre | 0.35 KM | |
| Fareham Academy | Academy Converter | Good | 0.39 KM |
| Wallisdean Junior School | Community School | Good | 0.47 KM |
| Wallisdean Infant School | Community School | Outstanding | 0.55 KM |
| Fareham College | Further Education | Outstanding | 0.75 KM |
Images
Nearby Streets
| Name | Average Price | Average Sqft | Distance |
|---|---|---|---|
| Cheviot Walk | £ 0 | 0 | 0.00 KM |
| New Broadlaw | £ 120,000 | 0 | 0.00 KM |
| Gold Close | £ 0 | 0 | 0.00 KM |
| Malus Close | £ 315,000 | 0 | 0.00 KM |
| Brendon Road | £ 269,950 | 0 | 0.00 KM |
Nearby Transport
| Name | NLC | TLC | Distance |
|---|---|---|---|
| Fareham | 5900 | FRM | 1.23 KM |
| Swanwick | 5920 | SNW | 8.17 KM |
| Portchester | 5928 | PTC | 8.28 KM |
Nearby Listings
| Address | Price | Type | Score | Distance |
|---|---|---|---|---|
| Cannock Walk, Fareham, Hampshire, PO14 | £ 150,000 | BUY | 5 / 10 | 0.00 KM |
| CANNOCK WALK, FAREHAM | £ 270,000 | BUY | 6 / 10 | 0.03 KM |
| Chiltern Walk, Fareham | £ 285,000 | BUY | 7 / 10 | 0.04 KM |
| Cranborne Walk, Fareham | £ 280,000 | BUY | Unknown | 0.10 KM |
| Fairfield Avenue, Fareham | £ 12,500 | BUY | 5 / 10 | 0.11 KM |
Nearby Properties
| Address | Price | Distance |
|---|---|---|
| 18 Chiltern Walk | £ 167,000 | 0.04 KM |
| 2 Chiltern Walk | £ 240,000 | 0.04 KM |
| 7 Chiltern Walk | £ 150,000 | 0.04 KM |
| 9 Chiltern Walk | £ 180,000 | 0.04 KM |
| 11 Cannock Walk | £ 135,450 | 0.05 KM |